Buscando la definición de casas aisladas en Gloogle.es, el buscador ofrece resultados que están relacionadas con casas construidas en un lugar apartado (aislado) y remoto. Se olvida del significado arquitectónico que nos interesa.
Una casa aislada es un edificio diseñado para vivir en él, y construido sin estar en contacto físico con ninguna otra edificación. Suele tener el tamaño y programa para ser habitado por una familia. Por eso también se suele utilizar el término de vivienda unifamiliar. Pero si está construida junto a otra casa o edificio, entonces ya no sería aislada1. Por tanto cuando leamos “casa aislada” debemos pensar en una vivienda que NO está adosada a ninguna otra construcción. Es así de sencillo, e implica que la casa tiene terreno despejado en todo su perímetro. Este espacio se puede distribuir de muchas maneras, y está relacionado con ciertas actividades domésticas al aire libre.
Introducción
Lo que viene a continuación hay que considerarlo producto de la experiencia como arquitecto de quien escribe esta página. Es decir, no tiene mucho que ver con lo aprendido en la Escuela de Arquitectura, sino más bien con lo vivido durante la práctica profesional.
Los proyectos de casas aisladas son de los más típicos que puede afrontar un arquitecto. Por eso no faltan trabajos de este tipo en los planes de estudio universitarios. Pero también es preciso aclarar que en determinados lugares las casas aisladas son una especie en extinción. Están seriamente amenazadas por las grandes promociones de viviendas adosadas (todas iguales); y también porque supone un modo de expansión urbana de muy baja densidad, algo poco rentable para los ayuntamientos.

Los proyectos de casas aisladas son perfectos para que un joven arquitecto vaya adquiriendo experiencia profesional. Dejando a un lado ciertos concursos de ideas, este tipo de trabajo es también uno de los más deseados por los estudios de arquitectura ya consolidados. No tanto por la repercusión económica, pues sigue siendo una obra pequeña, sino más bien por la libertad artística con la que muchos arquitectos consiguen expresarse.
Casas modernas
Antes de continuar con este apartado, hemos de realizar algunas advertencias sobre el contenido de nuestro blog de Arquitectura. En IS-ARQuitectura analizamos diseños de casas aisladas que son representativas de la arquitectura de nuestro tiempo. Seleccionamos obras contemporáneas de arquitectos de todo el mundo, aplicando un filtro que va más allá del típico “casas bonitas”.
Procuramos que todos los artículos que publicamos estén relacionados con diseños de calidad. Eso implica tener que descartar gran cantidad de proyectos. ¿Por qué hacemos eso? Actuamos así porque preferimos calidad a cantidad, y porque nuestro objetivo es ser una publicación digital de referencia para los profesionales que buscan buenos diseños de casas.
Dicho esto, es fácil comprender que en nuestro blog no se publique cualquier tipo de vivienda. Solo analizamos aquellas que tienen algo especial en su diseño, fueron bien ejecutadas, y más o menos bien decoradas. En realidad, todas las casas que aparecen en nuestra web se podrían calificar como MODERNAS, pero hemos preferido colocar en este apartado aquellas que destacaron por tener un diseño más atrevido.
Los siguientes ejemplos pueden servir de inspiración, tanto a propietarios como arquitectos. En los artículos que tratan sobre viviendas solemos incluir prácticamente toda la información gráfica que el arquitecto autor comparte. Por eso tienen gran cantidad de fotos, tanto del interior como del interior, además de los planos de planta. (Clic en la foto lleva al artículo de la casa en cuestión).
Villa A
La Villa A, situada en la colina de Pöstlingberg con vistas a Linz, Austria, ofrece un diseño integrado con su entorno natural. Destinada a un joven empresario, esta residencia de 650m² en un terreno de 5.000m², se extiende a lo largo de tres plantas. Incluye un semisótano con diversas instalaciones. La vivienda se caracteriza por sus lujosos acabados, estructuras voladas, y la utilización de materiales tanto en interior como exterior para difuminar límites. Con amplias áreas acristaladas protegidas por pérgolas, busca una mínima huella de carbono. Lo consigue con estrategias climáticas activas y pasivas, destacando una piscina de borde infinito que armoniza con la topografía del terreno.
Mosman House
Mosman House, diseñada por Popov Bass, reutiliza un barracón militar en Mosman, Sídney. Su techo abovedado es un vestigio de la estructura original. La casa moderna de tres niveles incluye una sala de estar amplia, cocina, dormitorio principal, biblioteca, y áreas para invitados y niños. Destacan los materiales sostenibles, el hormigón visto, y la madera. Sostenible y de bajo mantenimiento, es una casa que integra energía solar (térmica y fotovoltaica). Además recoge y almacena el agua de lluvia para utilizarla luego en riego y sanitarios. La organización inteligente de los espacios y la alta calidad de ejecución son notables, aunque la privacidad de los dormitorios es mejorable.
Casa Negra
La Casa Negra, ubicada en Buenos Aires, es un proyecto residencial moderno diseñado por Andrés Remy Arquitectos. Con una superficie de 330 m², esta vivienda se caracteriza por sus amplias fachadas de vidrio, que permiten una integración fluida con el entorno natural. Las láminas de agua que rodean la casa no solo embellecen el espacio, sino que también mejoran la iluminación interior al reflejar la luz solar. El diseño está dividido en dos volúmenes conectados, y responde a las necesidades de una pareja joven. También hay que decir que presenta desafíos en cuanto a privacidad y protección solar. La geometría del proyecto equilibra funcionalidad y estética.
View Hill House
La View Hill House, diseñada por Denton Corker Marshall, se sitúa en una colina del Valle del Yarra (Australia). Esta moderna vivienda ofrece amplias vistas panorámicas de los viñedos circundantes. Lo más interesante de este edificio es que se compone de dos paralelepípedos rectangulares perpendiculares. El inferior está revestido de acero corten, y alberga cocina, comedor, sala de estar y dormitorios. En cambio el superior posee un acabado en aluminio negro y en está voladizo, contiene oficinas y un dormitorio de invitados. Los extremos acristalados de ambos volúmenes permiten vistas controladas, mientras que unos paneles perforados protegen las ventanas laterales. En el interior, paredes y techos están revestidos con paneles OSB, y los suelos son de hormigón pulido, aportando una estética minimalista.
Casas de lujo
Antes de continuar con este apartado, hemos de realizar algunas advertencias sobre el contenido de nuestro blog de Arquitectura.
Procuramos que todos los artículos que publicamos estén relacionados con diseños de casas de calidad. Eso implica que por el camino tengamos que descartar gran número de proyectos. ¿Por qué hacemos eso? Actuamos así porque preferimos calidad a cantidad, y porque nuestro objetivo es ser una publicación digital de referencia para los profesionales que buscan buenos diseños.
Un ejemplo muy evidente ocurre con las casas de lujo. Ante cualquier búsqueda que hagamos en la web sobre este término, recibiremos todo un arsenal de mansiones enormes, carísimas, y de estilo bastante ecléctico. Las casas lujosas que pasan por nuestro blog podrán ser grandes, costosas, incluso de un estilo no muy definido, pero jamás serán viviendas ostentosas. Esas casas de famosos, con un gusto más que dudoso, no tienen cabida en nuestra web.
Estos lujosos proyectos suelen tener un presupuesto más elevando, y también bastante terreno para construirse. En el grupo de viviendas de lujo incluimos aquellas que se construyeron de manera aislada sobre una parcela, y que además reúnen una serie de requisitos, que pasamos a ver con más detalle. Las fotos que acompañan al texto son algunos ejemplos de este tipo de proyectos. (Para ver artículo, con fotos y planos, hacer clic en la imagen).

Un programa diverso
Estos diseños de casas se distinguen principalmente por tener un programa muy variado de espacios. No tienen por qué tener “miles” de habitaciones, pero sí dependencias para funciones muy concretas. Por ejemplo, es habitual encontrar en las casas de lujo habitaciones para el personal de servicio doméstico.
Habitaciones propias de una casa lujosa
Una de las características principales de estas casas de ensueño es que poseen habitaciones que difícilmente se ven en viviendas más normalitas. Ya hemos mencionado las dependencias para los empleados domésticos residentes, pero hay muchas otras a considerar.
Es relativamente fácil encontrar en estos chalets de lujo habitaciones para todo tipo de actividades imaginables. Las más habituales son las dedicadas al trabajo y al entretenimiento. Suele incluirse en su programa alguna sala de estudio, despacho de trabajo, sala de cine, sala de juegos, cuarto para ver la tele, gimnasio, sauna… No necesariamente deben existir todas y cada una de estas habitaciones, pero sí al menos un par de ellas.
La cocina de una supercasa
La cocina de una casa de lujo, como ya habrás adivinado, se va a distinguir por su gran equipamiento, y amplitud. Su diseño no se limita a una encimera, pues lo normal es que disponga de varias áreas de trabajo, incluso de un mueble isla. También es bastante probable que tenga espacio para una mesa de comedor, de uso más diario e informal.
El espacio de almacenamiento es importante, por eso aparte de tener un número significativo de armarios, se hace casi imprescindible la compañía de una despensa.
En estas villas de lujo la cocina debe estar vinculada a la habitación de lavado y planchado de ropa, y por supuesto con las habitaciones del personal de servicio. Esto obliga también a que exista una entrada independiente desde el exterior del edificio.


Salones y comedores por doquier
El salón y el comedor son los espacios destinados a hacer más vida social, y también a atender y cuidar de invitados. Como en cualquier otro hogar, los programas de las viviendas de lujo también cuidan de una manera especial estas dependencias.
El lujo también implica abundancia, y aquí se traduce en ampliar las posibilidades para el living. Por eso es relativamente normal que una casa de alto standing tenga varios salones. Es fácil encontrar sala con TV, con chimenea, junto al comedor, con muchos libros, para los niños, para los adultos… Las posibilidades son inmensas.
Muchas casas modernas tienen un gran espacio en el que se incluye la cocina, el comedor, y el salón. Esa es una secuencia muy explotada por los arquitectos, pero que en las viviendas caras es insuficiente. Casi siempre el propietario adinerado pide un comedor aparte, donde quepa una buena mesa para esas cenas importantes en familia.


Dormitorios y suites
El ejemplo que describimos para la cocina, se puede aplicar a los dormitorios. Por eso el dormitorio de una casa lujosa tendrá sí o sí un cuarto de baño propio, y a ser posible hasta un vestidor. Cuando se trata de configurar el dormitorio principal, en una vivienda de lujo se va más allá todavía. Se reconocerá porque ademas de tener una gran cuarto de baño y enorme vestidor, también suele incorporar una sala anexa, un apartado con jacuzzi y/o sauna, una buena terraza… La mayoría de estas suites superan en superficie a muchos apartamentos urbanos.

Garaje
Teniendo en cuenta que estas lujosas viviendas son bastante amplias, lo lógico es pensar que también son hogares para familias con más miembros. Pero esto no siempre es así, pues también nos encontraremos con casas de ‘solterones de oro’ que tienen varios dormitorios. ¿A dónde queremos ir a parar? pues al tamaño del garaje, para señalar que mantiene el mismo criterio que el resto de dependencias. Siguiendo con la lógica: si alguien tiene dinero para construirse una casa costosa, seguramente tendrá más de un vehículo. Y no digamos si estamos antes una familia de 4 ó 5 miembros!
Por tanto, el garaje de una buena casa deberá tener capacidad para más de dos vehículos; un portón de generosas dimensiones, y a ser posible con un local anexo para guardar herramientas, y equipamiento para viajar.
También sería recomendable considerar espacio para colocar baterías domésticas en esta zona de la vivienda, y varias tomas para la recarga coches eléctricos.

Especial cuidado en los materiales
No existe un material preferido para la estructura de estas viviendas, pero sí hay un denominador común cuando se trata de acabados y revestimientos: usan materiales de primera calidad. Cualquier material noble será bienvenido para aplicarlo tanto a los exteriores como interiores de una vivienda de lujo. Por estos motivos, un buen porcentaje del presupuesto recaerá sobre las partidas de revestimiento y acabados. Pero con este aspecto hay que tener cuidado, porque si se abusa de él se puede llegar a resultados ostentosos.
Con muebles de diseño, por favor!
Reconoceremos a las buenas y lujosas viviendas por su cuidada decoración. Pero en esa ecuación adquiere un papel relevante el mobiliario.
El profesional involucrado en un proyecto tan costoso no va a arriesgar su reputación por culpa de una mala elección en los últimos detalles, esos que casi siempre marcan la diferencia. Aquí no debe haber lugar a la improvisación, y mucho menos al mal gusto.
Por eso la opción mas segura es recurrir a muebles de diseño, esos que nunca pasan de moda, y que aportan cachet a la casa. Eso explica que en la mayoría de viviendas lujosas aparezcan sillones, lámparas, sofás, sillas, mesas,… creados por diseñadores de prestigio. Muchos de ellos son fácilmente identificables, y algunos de esos diseños se repiten bastante en esta arquitectura del lujo.
Hay miles de ejemplos de proyectos interesantes arquitectónicamente, que prometían bastante en plano, pero que al llevarlos a la realidad acabaron en un tremendo “fail”. Pudo ser por una mala ejecución de la obra, por una ausente decoración, pero también por unos muebles inapropiados.
Jardín, piscina, terrazas… que no falten
Otro aspecto habitual en estas viviendas tiene que ver con el terreno circundante. Generalmente están construidas en grandes parcelas, pero no quedaría nada más desolador que una obra de lujo rodeada de un pedregal y malas hierbas. Por eso hay que ‘ponerle la guinda al pastel’, completando la obra en su totalidad, y al nivel que se merece.
No suelen faltar en estas lujosas villas una buena piscina, jardines, y terrazas bien equipadas con muebles para exteriores. Aquí los recursos paisajísticos pueden servir de gran ayuda, así como un pabellón en la zona de baño. Esta pequeña construcción sirve para cambiarse de ropa, y debe tener al menos un aseo. Hay que procurar que las áreas al aire libre mantengan un equilibrio entre zonas soleadas y en sombra.
Algunas de estas lujosas viviendas poseen espacios de reunión que están rebajados en el terreno, con un fuego central. Están especialmente indicadas para épocas del año en las que la temperatura es baja.


Equipamiento premium
Ventanas, sanitarios, equipos de medición y control, uso de nuevas tecnologías aplicadas a la arquitectura, etc… Son algunos ejemplos del equipamiento premium en una vivienda de lujo.
Tendencia verde
Teniendo en cuenta que estas construcciones suelen tener una importante huella de carbono, nunca esta de más compensarla tomando estrategias verdes. Por eso cada vez hay más casas de lujo que incluyen medidas sostenibles. Pueden ser pasivas (incorporadas en su diseño) y/o activas. La estrategias activas más utilizas están relacionadas con la producción energética (mediante energías renovables).
Aclaración sobre viviendas lujosas
Llegados a este punto, hay que hacer un inciso para aclarar que no tienen por qué darse todas estas características para considerar que una casa sea de lujo. Ni siquiera la mitad de ellas. Probablemente bastará con un programa diverso en la zona de vida, o en los dormitorios. Otras veces suele ser suficiente una organización en la que los espacios son variados, y están decorados con materiales de calidad.
Las mejores viviendas de lujo son aquellas que contemplan un mayor número de estas variables.

Casas de una planta
Hay proyectos de viviendas que se desarrollan en una sola planta. Son hogares en los que, por diversos motivos, todas las habitaciones están en un único piso. Pero eso no significa que tengan que estar en un único nivel, pues pueden existir uno o dos escalones de diferencia entre varias zonas de la casa. Nos estamos refiriendo a proyectos de casas en los que no hay una escalera como tal.
Las casas de 1 planta se suelen diseñar así por diferentes motivos:
- Programa reducido. Cuando se trata de un proyecto residencial bastante reducido, por ejemplo una casa de un dormitorio, suele resolverse en una sola planta. Pero evidentemente este punto está estrechamente relacionado con el siguiente.
- Tamaño de la parcela. Suele ser el motivo principal para construir o no una casa de una sola planta. Supongamos que el terreno donde se va levantar el edificio es extenso, de más de 5.000m2. En una finca de ese tamaño, la superficie ajardinada y para disfrute al aire libre ya es considerable. Por tanto, una vivienda de una planta es perfectamente factible, y recomendable. Si por el contrario el terreno es muy ajustado, incluso en proyectos de programa reducido, podría ser necesario ir a más de una planta.
- Gran accesibilidad. Nos hacemos mayores, e incluso podríamos tener limitada nuestra movilidad. En esas circunstancias, y por razones obvias, la casa más accesible de todas es la de una sola planta. En este caso sería preferible también que no tuviera desniveles, por pequeños que fueran.
- Por exigencias de las ordenanzas municipales. No suele ser habitual, pero podría darse el caso de que las normas locales impidieran la construcción de más de una planta en esa zona de la ciudad. Suele tratarse de áreas urbanas de muy baja densidad edificatoria.
Por este sitio web también han pasado proyectos de viviendas unifamiliares de una planta. Como el resto de listas de este artículo de casas aisladas, es una colección que va creciendo con el tiempo. Todas ellas enlazan a proyectos de calidad, que además han pasado por nuestro análisis. (Clic para ver proyecto)
Casas de Hormigón
La Golf House, ubicada en Costa Esmeralda, Argentina, es un innovador proyecto de vivienda diseñado para ser tanto una residencia de vacaciones como permanente, con mínimo mantenimiento. Construida en una parcela de 1.000m2, aprovecha sus vistas elevadas hacia un campo de golf y vegetación silvestre. Se caracteriza por su estructura de hormigón visto, fachadas de vidrio y detalles en madera, distribuida en tres niveles que separan las áreas sociales, dormitorios y una suite privada, junto con un taller de pintura. Destaca su mobiliario de hormigón integrado y terrazas con vistas, manteniendo un estilo industrial.
Casas Rústicas
Puedes leer un artículo que analiza una casa rústica en Galapagar, famosa por ser la residencia de Pablo Iglesias e Irene Montero. La vivienda, comprada por 660.000 €, está ubicada en La Navata, una zona residencial a 30 minutos de Madrid, rodeada de espacios naturales protegidos. Diseñada en 2001 por José Ignacio Rubio, tiene dos dormitorios y una superficie de 222 m² en una parcela de 2.275 m². La casa combina estilo rústico con diseño moderno, destacando por su decoración y espacios acogedores. Incluye una piscina convencional y un jardín bien cuidado. Aunque no es una casa de lujo, su decoración rústica le otorga un carácter especial.
Algunas ventajas de las casas aisladas
Para que una casa se pueda construir de manera aislada, debe estar dentro de una parcela (terreno, lote) lo suficientemente grande. También debe ocurrir que las normas locales así lo permitan. Todo esto resulta bastante obvio, y añade a la vivienda ventajas interesantes que conviene comentar.
Orientación
Probablemente es la más importante de todas, y de la que muchos arquitectos se olvidan. Si el proyectista es hábil, y se preocupa por el comportamiento pasivo de la casa, la orientación puede ser determinante para que el hogar sea más o menos eficiente. Otro ejemplo en el que la orientación es importante, tiene que ver con la colocación de la piscina2.
Tamaño
Una vivienda que está construida de manera exenta en una parcela, generalmente va a ser más grande que una adosada. Esto hará posible el desarrollo de un programa más complejo. También facilita la implantación de ciertas instalaciones de energías renovables. Por todo ello es el tipo ideal de edificio para una familia con hijos.
Jardín
Dependiendo de la geometría y tamaño de la parcela, así podrá ser el jardín de la casa. Podría darse el caso de una casa aislada sin jardín, bien porque no quede suficiente superficie, o porque el propietario prefiera darle otro uso. Pero lo normal es que sí se pueda tener un área ajardinada, al menos en la parte trasera de la vivienda. Esto implica que, debido a la superficie extra libre, también se pueda disponer de una piscina.
Terrazas
En realidad aquí nos estamos refiriendo a espacios (al aire libre) que no están ajardinados. Es un tipo de patio que suele utilizarse como terraza exterior, y por consiguiente está pavimentado. Las casas aisladas pueden tener un patio delantero (entre la calle y la fachada principal), y/o un patio trasero ubicado en la fachada opuesta. En proyectos relativamente grandes, puede ocurrir que la vivienda aislada también cuente con patios interiores, o semi-cerrados.
Ventanas
Las ventanas facilitan la entrada de luz natural, y la ventilación de las estancias. Cuando se trata de una casa exenta, el hecho de no estar adosada por ningún lado, permitirá abrir huecos en cualquier zona de sus fachadas3. Esto se traduce en una gran ventaja para el arquitecto, ya que podrá distribuir los espacios en cualquier dirección. Pero no olvidemos que las buenas viviendas unifamiliares no tienen por qué estar repletas de ventanas, solo hay que aprovecharse de esta ventaja, y utilizarla con buen criterio práctico y estético.
Diseño
En realidad esta ventaja es una consecuencia de todas las anteriores. Por regla general, va a ser más fácil encontrar el diseño apropiado en una casa aislada, que en cualquier otro tipo de vivienda. Todos esos puntos mencionados van a proporcionar mayores variables a considerar, y por tanto un gran número de posibles soluciones. Habrá más posibilidades para organizar los espacios; para componer la fachada; de dar una solución de cubierta; de crear voladizos, etc.
Menos daños colaterales
A modo de bonus, esta ventaja está relacionada con el proceso constructivo. En los proyectos residenciales también se suelen realizar excavaciones, obras de cimentación y estructura, etc. Estas tareas son más simples en un edificio exento, que en otro que está en contacto con una casa vecina. Cuando la obra está adosada a otra ya existente, las precauciones se multiplican, y los riesgos de causar algún daño a la estructura colindante también aumentan.

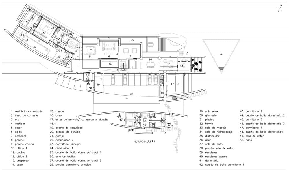
Programa típico de una casa aislada
Una casa aislada suele tener lo mismo que cualquier vivienda unifamiliar. Puede organizarse en una o dos plantas, pero si el terreno tiene pendiente, es habitual que aparezca un nivel semi-enterrado en forma de sótano o semisótano.
Al ser un edificio más grande, probablemente tendrá más dormitorios, y habitaciones más espaciosas. El programa típico de casa aislada suele incluir lo siguiente:
Planta Baja
Una entrada más o menos protegida de la lluvia. Una vez dentro suele haber un vestíbulo, con armario guardarropa. El resto de este nivel es probable que tenga un gran espacio diáfano para la cocina, el comedor, y la sala de estar. La gran mayoría de estas viviendas tienen la cocina abierta al comedor, con un mueble isla entre ambos. También es recomendable una despensa, y prácticamente obligatoria la presencia de un aseo (con inodoro y lavabo).
Planta Alta
Es donde se ubican los dormitorios. Dependiendo del tamaño y presupuesto, es posible que cada uno de ellos tenga incluido su cuarto de baño. En caso contrario, habrá que ubicar un cuarto de baño completo, que será compartido. Una casa aislada suele tener un dormitorio principal, que se distingue del resto por estar tratado como una suite. Esto quiere decir que además de llevar un cuarto de baño, también debería tener vestidor. Algunos proyectos ubican en esta planta una habitación más para invitados, y/o un espacio para utilizar como lugar de estudio.
Planta sótano
Muchas de estas viviendas no tienen sótano, pero en el supuesto de que se pueda construir, suelen alojarse aquí los cuartos de instalaciones. Si la parcela lo permite, también es el lugar apropiado para el garaje. Hay ejemplos de casas lujosas que utilizan el sótano como una extensión de entretenimiento (sala con bar, billar, bodega, sala de cine, etc).
Jardines y terrazas
Si algo caracteriza a una casa aislada es la presencia de espacio libre alrededor. Lo normal es que esos metros cuadrados se aprovechen para distribuir cierta vegetación, y colocar una piscina. Puede aparecer un espacio exterior configurado como porche, donde colocar algunos muebles para exteriores. Muchas viviendas utilizan la zona trasera para ubicar una cocina exterior, o al menos una zona de barbacoa. Todo depende del espacio libre que deja la casa, y del presupuesto, pero las hay muy bien equipadas. Lo más común es que sea la sala principal de la casa la que esté vinculada a la piscina, a través de grandes puertas correderas.
Dependiendo de la geometría y relieve de la parcela (y de los accesos a la casa), el esquema antes descrito puede variar. A veces los dormitorios están en el nivel inferior, y la zona de vida en el superior. Esta organización es recomendable cuando la casa están en pendiente, y se accede a ella desde la planta superior.
Análisis de viviendas unifamiliares aisladas

En IS-ARQuitectura analizamos todo tipo de viviendas. Traemos a nuestro espacio web los proyectos más interesantes publicados en internet. Pero a las casas aisladas les damos un tratamiento especial, porque nos gusta explorar sus planos de planta y secciones, fotos, esquemas… La idea es extraer el mayor grado de información posible, con el fin de realizar luego una valoración.
Explicamos el proyecto con nuestras propias palabras, comentando lo que nos ha parecido más destacable. Y como no hay casa perfecta, también señalamos lo que se podía mejorar. Nuestras críticas están hechas sobre proyectos que consideramos interesantes. Los malos proyectos no tienen cabida en nuestro blog.
Al final de cada análisis de casa aislada aparece un resumen con lo mejor y lo menos bueno. También añadimos una gráfica que puntúa del 1 al 10 los principales aspectos de una vivienda.
Lo que valoramos en nuestro análisis
- Fachada. El exterior siempre va a importar al cliente, por eso la fachada de la casa tiene mucho que decir. Esto puede llegar a ser muy personal, lo entendemos, por eso valoramos bastante el uso de los materiales que la componen.
- Organización. Una casa debe funcionar bien para sus ocupantes. Es como una máquina en la que cada pieza (espacio) debe estar en el lugar correcto, y tener el tamaño apropiado. Esto no siempre ocurre, generalmente provocado por exigencias del cliente. Aún así, lo señalamos en nuestro análisis.
- Diseño interior. Un buen proyecto de vivienda necesita también de una buena decoración. Influye el uso de los materiales, el mobiliario, y sobre todo los acabados.
- Sostenibilidad. En el siglo 21 hay que ser sostenibles, por eso los buenos proyectos arquitectónicos se preocupan por este aspecto. Hay viviendas en las que se fue incluso más allá de lo exigido por los códigos de construcción. Valoramos si el diseño tiene en cuenta el comportamiento solar pasivo de la casa; si se utilizaron materiales saludables y ecológicos; las medidas para hacer el edificio más eficiente también suman; si recoge y almacena el agua de lluvia; si tiene instalación solar, geotérmica, etc.
- Calidad de ejecución. Este aspecto es probablemente el más difícil de valorar. Normalmente se llevará a cabo a partir de las fotos publicadas. Por eso miramos con lupa las imágenes de alta resolución, en busca de cualquier defecto.
Notas a pie de página
- Hay que tener en cuenta que en otros idiomas, el calificativo unifamiliar puede referirse exclusivamente a una casa aislada. En cambio en español, significa que una vivienda unifamiliar puede estar construida de manera aislada o adosada, es indiferente. ↩︎
- Hay viviendas con la piscina colocada en el lado del jardín que está a la sombra. Esto es un gran error de proyecto, pues esta instalación debe estar lo más soleada posible. ↩︎
- En algunas ciudades se permite que la casa aislada se construya muy próxima a otra vivienda. Pero es probable que esas mismas ordenanzas locales impongan algunas limitaciones a los huecos que se puedan colocar ahí. ↩︎