SZ House es una pequeña casa unifamiliar situada en Ibaraki (Japón). Es ante todo un proyecto original en su planteamiento, sin adornos ni lujos, resuelto con sobriedad. Pero claro, puede que para mucha gente esa simpleza sea ir demasiado lejos. En este proyecto ocurre como en la mayoría de viviendas japonesas: la separación con las construcciones vecinas es escasa. Pero a pesar de ello, sí hay ventanas en las fachadas laterales, y dos patios con importantes funciones.
Por nuestro sitio web ya han pasado casas de este tipo, como la casa en diferentes niveles de M. Yahagi; otro buen ejemplo es la vivienda de hormigón de Eastern Design Office.

SZ House
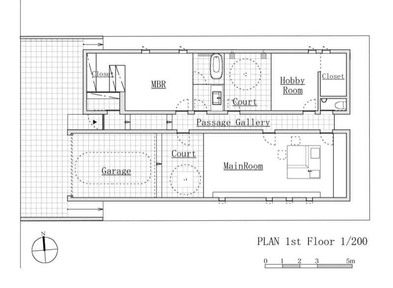
La SZ House solo tiene una planta, ocupando una superficie de 105m2. Básicamente está formada por cuatro muros paralelos que encierran 3 espacios principales. Uno de ellos es privado, otro público, y un tercero alargado y estrecho que sirve de conexión entre ambos.
Como era de suponer, la zona privada de la Casa SZ la ocupa el dormitorio, y cuarto de baño; pero también debemos incluir en esa lista al patio y una habitación para el ocio. La zona pública está compuesta por el garaje, un 2º patio, y la habitación principal (salón-comedor y cocina).

Para comprender adecuadamente esta vivienda, previamente hay que entender las funciones de cada uno de sus patios. Lógicamente son piezas importantes para la ventilación e iluminación de la casa, pero cada patio se adapta a las condiciones de privacidad de su zona. Por ejemplo, desde la cocina el patio mantiene una amplia vista hacia la calle. En cambio desde el dormitorio se ve la sala de ocio. Llegados a este punto nos gustaría saber cómo se controla la privacidad para el baño, pues está completamente acristalado.
Un aspecto que no pasa desapercibido de este proyecto es que está resuelto con elementos sencillos. Pero sin llegar a la pureza, y calidad estética, de la vivienda minimalista que vimos en Itoman-Shi.


SZ House es un proyecto residencial realizado por el arquitecto Teruo Miyahara. Fotos Mitsumasa Fujitsuka.




















