Para quien no lo sepa, Treehotel es un innovador alojamiento rural, con originales y únicas habitaciones. Están colocadas entre los árboles de un bosque de Harads (Suecia), un pueblecito de 500 habitantes ubicado a 100 kilómetros del aeropuerto de Luleå, y 50km del Círculo Polar Ártico. En TreeHotel es posible hospedarse en diferentes refugios, todos ellos rodeados de maravillosa naturaleza, con vistas al río Lule. En cualquiera de sus habitaciones, se experimenta la calma y belleza de los bosques vírgenes de este lugar remoto. Este post tiene que ver con el refugio prefabricado de madera The Cabin, que está colgado de los árboles.
El refugio The Cabin

The Cabin fue uno de los refugios originales con los que TreeHotel se dio a conocer en todo el mundo. Es una habitación con buenas vistas al valle Luleälven, colocada en una ladera, y suspendida de los árboles. Para acceder a su interior no hay que encaramarse por ninguna escalera empinada. Sorprendentemente su entrada se realiza desde la azotea. A ella se llega siguiendo una rampa, que arranca en la parte alta de la ladera. En realidad es una pasarela, de trazado largo y sinuoso, diseñada así para hacer su recorrido aún más interesante; y también para que pueda servir de acceso a futuros refugios. En la siguiente foto se explica dónde está la puerta.
Debido a su peculiar entrada, el refugio dispone de una azotea que funciona como terraza-mirador, donde es posible comer. Una vez cruzada la puerta, una escalera conduce al interior de la habitación.
Organización
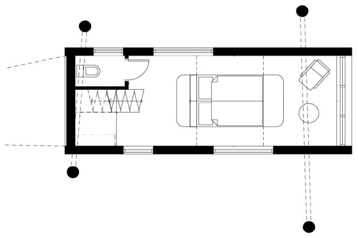
Este refugio colgado funciona como una caja, como un cuerpo extraño entre los árboles. Tiene una superficie de 24m2, y capacidad para dos personas. Dentro vemos un mueble en el centro que aloja una doble cama. En su cabecero hay un tablero, varios enchufes, y algunos estantes debajo. A un lado de la escalera está el pequeño cuarto con el inodoro de compostaje; según plano de planta, y una de las fotos, en el lado opuesto hay una repisa alta y un lavabo, con un pequeño depósito que se llena cada día; eso es suficiente para lavarse las manos y cepillarse los dientes. La habitación no dispone de ducha. Para eso Treehotel tiene unas instalaciones comunes aparte, incluida sauna.
Hay ventanas repartidas en tres de sus fachadas, lo cual aporta una buena referencia del bosque. Eso sí, el lado frontal está completamente acristalado, desde el que se tienen las mejores vistas. La decoración es bastante sencilla, en tonos grises, y con unas lámparas circulares en el techo. Las lámparas de mesa también guardan el mismo diseño.
Construcción
Esta habitación es prácticamente un contenedor de aristas redondeadas. Se fabricó con madera sostenible en un taller, y luego se transportó al lugar en camión. The Cabin es por tanto un refugio prefabricado de madera, soportado por troncos de árboles, y algún que otro cable tensado. El exterior parece estar revestido con madera carbonizada.
Un aspecto importante a tener en cuenta de este proyecto, es que todos los refugios treehotel son respetuosos con el medio ambiente. Esto se consigue con materiales sostenibles, calefacción por suelo radiante, y aseos ecológicos.
¿Cuánto cuesta una noche en Treehotel? Para el refugio The Cabin, habrá que pagar unas 4,900 coronas suecas, eso al cambio viene a ser unos 500€. En ese precio está incluido un desayuno buffet. Puede que haya más información en la web de Treehotel.
El refugio prefabricado de madera The Cabin fue diseñado por los arquitectos de Cyrén & Cyrén. Algunas fotos son de Erik Nyström y Björn Palovaara.
Cómo surgió Treehotel
Kent Lindvall era consejero de orientación vocacional, y Britta Jonsson-Lindvall enfermera. Llevan juntos desde jóvenes, y son residentes de Laponia sueca de toda la vida. Precisamente en su pueblo natal es donde decidieron emprender este negocio, pero con una visión fuera de lo común. Trabajaron muy duro, y supieron establecer contacto con las personas adecuadas. Esa fue la clave para hacer realidad el sueño de TreeHotel.
El negocio surgió de una forma bastante sencilla y lógica. Kent y Britta lo expresan de la siguiente manera:
Vivimos aquí, amamos nuestro pueblo. Queríamos ganarnos la vida, así que miramos lo que podíamos hacer con lo que teníamos aquí.
Hubo un momento en el que Kent había montado una empresa de viajes de pesca. Al mismo tiempo Britta había trabajado en varios proyectos de desarrollo locales; uno de ellos consistió en la rehabilitación de un antiguo asilo de ancianos, para convertirlo en una casa de huéspedes. Así nació la Britta’s Pensionat.
Ese pequeño hotel lo estuvo gestionando durante un tiempo, pero con pocos ingresos. Entonces, fue a partir de un programa de formación de diseño en el que participó Britta (relacionado con la industria turística), donde surgió la idea de un proyecto de diseño. Pero tuvieron que suceder más cosas, para que eso se gestara.
Arquitectos y cineastas, buena combinación
Durante la grabación de la película Trädälskaren (El amante del árbol), el director Jonas Selberg Augustén y su equipo estuvieron un verano alojados en la Britta’s Pensionat. Cuando el rodaje terminó, había dejado una preciosa casa-árbol en el bosque. Britta pensó que era una pena desperdiciar una casa tan bonita, así que la incorporó como una habitación más de su casa de huéspedes. Estaba demasiado alejada, haciendo difícil su mantenimiento, pero llamó la atención de muchos.
Por aquel entonces Kent había estado de pesca con tres amigos arquitectos de renombre. Les comentó la idea de crear habitaciones de diseño que estuvieran cerca del hotel, y eso despertó el interés de los arquitectos. Decidieron diseñar cada uno de ellos un refugio en los árboles.
Así fue como esta pareja fundó TreeHotel, un alojamiento único en el mundo. En Julio del 2010 TreeHotel abría sus puertas, con solo cuatro habitaciones entre los árboles, pero cada una con un diseño diferente.
El resto ya es historia, porque los refugios fueron todo un éxito, haciéndose eco la prensa internacional, y muchos blogs de arquitectura.
Esto provocó que Kent y Britta se centraran en el negocio de Treehotel. Él se dedica de la parte comercial, y ella (junto a su hija) de la cocina y el mantenimiento.
Hola, me gustaría que se pudiese traer a Venezuela, me interesa saber cómo ser la promotora en mi país
natal.