Últimamente estamos conociendo ejemplos muy interesantes de arquitectura prefabricada para lugares remotos. Eso es lógico, porque suele ser muy difícil acceder a esos sitios con maquinaria de obra. Para algunos arquitectos estas dificultades no son inconvenientes insalvables. Al contrario, consideran un reto muy motivador diseñar un edificio prefabricado de estas características. Se debe construir en un taller, y luego ser trasladado al sitio mediante un helicóptero. Además, estas estructuras deben ser capaces de soportar unas duras condiciones climatológicas. Pues bien, todo eso ocurrió con CALTUN, un moderno refugio de madera CLT.

Características del refugio Caltun
A pesar de tener un presupuesto muy limitado, los arquitectos aceptaron el cargo del proyecto prefabricado del refugio Caltun. Está montado en las Montañas Fagaras de los Cárpatos meridionales (Rumanía) a 2.160 metros de altitud. Fue posible a pesar de tener un presupuesto muy limitado.
Los arquitectos se lo tomaron como si de un ‘faro en las montañas’ se tratara. Se utilizó como material base el tablero de madera contralaminada (CLT – cross laminated timber). Lo eligieron por sus buenas capacidades mecánicas, y consideraron una sobrecargada de nieve de 2 toneladas por metro cuadrado. El tablero CLT también resultó ser una buena opción como acabado interior, pues ayudó a conseguir el agradable aspecto que se pretendía. En la estructura del refugio Caltun también hay elementos de acero.


Su forma tan dinámica (ver plano de sección) pretende ser una respuesta a los fuertes vientos dominantes. La cubierta de aluminio toma su color de las piedras con musgo que hay en el lugar.
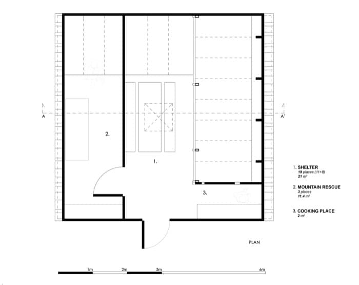
Este refugio alpino está organizado según una planta cuadrada que tiene tres dependencias principales. Hay una habitación (11.4m2) para primeros auxilios del equipo de rescate; un espacio más grande (21m2) con capacidad para 19 montañeros (o turistas); y un pequeño espacio para cocinar de 2m2.
Para darle electricidad al refugio, se han colocado unos paneles fotovoltaicos en la base de su torre. Existe una claraboya que aporta mucha luz natural durante el día, y que por la noche enciende una luz, con el fin de potenciar el efecto faro que se quería transmitir con su diseño.

El proyecto de este moderno refugio de madera CLT fue realizado por el estudio de arquitectura Archaeus.














