El proyecto para este moderno refugio está localizado en Ventnor, un pueblecito de Phillip Island (Victoria, Australia). Es una pequeña isla situada al sur de Melbourne. La ubicación elegida es una finca de casi 65 hectáreas, con un paisaje de terreno undulado. Actualmente se utiliza para el pastoreo, y se inclina hacia la costa, mostrando unas estupendas vistas del océano. Para ese entorno se ideó el moderno retiro Pyramid Rock.
Moderno retiro Pyramid Rock
El diseño de este sencillo refugio se inspira en las pequeñas y simples construcciones que protegen al ganado de las inclemencias del tiempo. Hay muchas de ellas dispersas en las granjas de los alrededores. Este moderno retiro aparece en el paisaje como un misterioso volumen cúbico, de color claro. Pero cuando se abren sus tres paneles correderos, aparece una delicada construcción con grandes ventanales de vidrio.
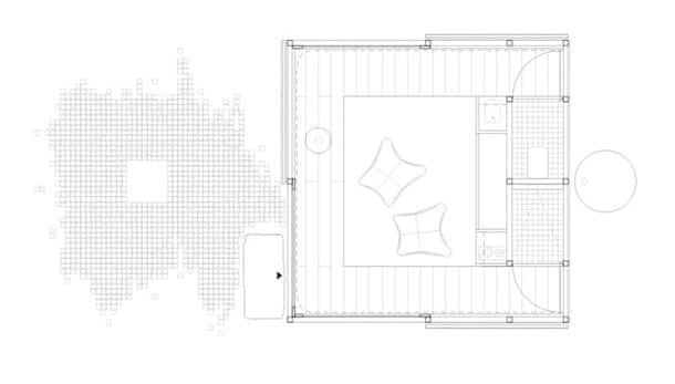
La planta de este refugio es cuadrada, alcanzando una superficie total de 30m2. Su interior está decorado con materiales cálidos y naturales, principalmente madera. Esto crea un fuerte contraste con su fachada corrugada y de aspecto rural. El retiro Pyramid Rock viene con un equipamiento bastante reducido, pero es suficiente para cortos periodos de tiempo. Está limitado a lo esencial, para proporcionar un descanso tras un largo día por el campo. Se compone de una sala con estufa de leña, un cuarto con inodoro, y otro más con una ducha. Además tiene un lavabo, y un puesto pequeño para cocinar, sin demasiadas complicaciones.
Como se ha podido comprobar, esta pequeña estructura ofrece un retiro minimalista, de perfectas proporciones para una pareja. Lo mejor de todo es que se trata de una arquitectura nueva que conecta muy bien con el pasado.

El moderno retiro Pyramid Rock fue realizado por el estudio de MGAO. Aún se encuentra en una fase conceptual, por lo que puede que acabe quedándose en una propuesta, y no se llegue nunca a construir.