Estas imágenes corresponden a un hotel rural formado por una agrupación de 20 modernos refugios. Está situado en el Valle de Guadalupe (Baja California, México) sobre una extensión de 99 hectáreas, y dirigido por el Grupo Encuentro. Hay varios aspectos interesantes de este proyecto, pero tal vez el más importante sea el respeto a la naturaleza con el que se ha realizado su implantación. Están colocados de forma dispersa y sin alterar la topografía del lugar. Otras características son por ahora puro misterio, pero al menos indagaremos para averiguar cuan sostenibles son los refugios Encuentro en Valle Guadalupe.
¿Cómo son los refugios de este hotel rural?

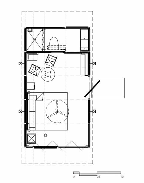
Cada refugio (llamado EcoLoft) tiene veinte metros cuadrados de superficie. Su estructura metálica (acero corten) queda parcialmente vista. En el exterior se ha empleado revestimiento de madera, y un inesperado acabado de lujo dentro. Algunos están decorados en tonos oscuros (paredes en negro), y otros en blanco. Su organización no se llega a apreciar bien en las imágenes, para eso es preciso mirar el plano de planta. Cada habitación tiene cuarto de baño, y terraza en la entrada para disfrutar de la vida en el campo.
Desconocemos si el teléfono que se ve en la mesita de noche está ahí por pura decoración. En cualquier caso hay que decir que cada refugio está conectado a internet por WiFi. Ahora bien ¿qué pasa con las aguas residuales? ¿hay inodoro de compostaje? Se sabe que las habitaciones cuentan con instalación de aire acondicionado, pero tampoco se especifica de qué tipo es. ¿Se alimenta de energía renovable? tampoco se hace mención sobre ello.


Ser respetuoso con el medio ambiente también requiere de otras acciones que, en esta ocasión no se mencionaban en la web del hotel.
El proyecto de los refugios Encuentro en Valle Guadalupe fue realizado por el arquitecto Jorge Gracia (GraciaStudio). Inicialmente recibió el nombre de Endémico Resguardo Silvestre, pero en el momento de redactar este artículo tiene el de Encuentro Guadalupe.

Algunas curiosidades del hotel Encuentro Guadalupe
Como ya te habrás imaginado, el acceso a cada refugio se realiza de manera peatonal, nada de vehículos. Esto es debido a que los refugios Encuentro están en una reserva ecológica del Valle de Guadalupe, donde hay varias hectáreas de viñedos.
En las instalaciones del hotel hay una piscina, y la posibilidad de darse un baño de hidromasaje. Durante los fines de semana se organiza un mercado local, donde se venden productos autóctonos. Cerca hay varios restaurantes donde poder comer.

















Aló, ¿Donde puedo conseguir información sobre precios y reservaciones de los “ECOLOFT” Endémico Resguardo ecológico? Los estuve viendo, y a mi familia, amigos y a mí nos encantaron. Gracias, esperando su respuesta, HC.
Hi, these lofts look very interesting. Are they available for rental? How much per night and how I can make reservations? Where is it located exactly in the valle?
Por favor diganme donde puedo obtener mas informacion, sobre el precio por cabaña, pues mi esposa y yo, las hemos visto en este sitio, pero no encontramos algun numero de telefono donde comunicarnos para obtener mas informacion, agradeceremos nos den mas informacion al respecto.
Gracias
Lo único que se nos ocurre es que te pases por la página de contacto del arquitecto. Suerte!