Ubicado en la frontera entre Italia y Suiza, Border House es un ejemplo de sostenibilidad en la arquitectura moderna. Diseñada por LCA architetti, esta residencia utiliza materiales naturales como el corcho, la madera, y el metal. Esta elección ofrece una interesante alternativa a los tradicionales hormigón y ladrillo.
Un hogar inspirado por la sostenibilidad
Los propietarios, conscientes de la crisis climática actual, eligieron construir su hogar utilizando materiales sostenibles. La estructura de la casa es de madera, elevada 50 cm sobre el suelo con cimientos de hormigón armado. El exterior de la planta baja está revestido de corcho, lo que añade una estética sofisticada y natural al diseño.

Diseño interior: funcionalidad y estética
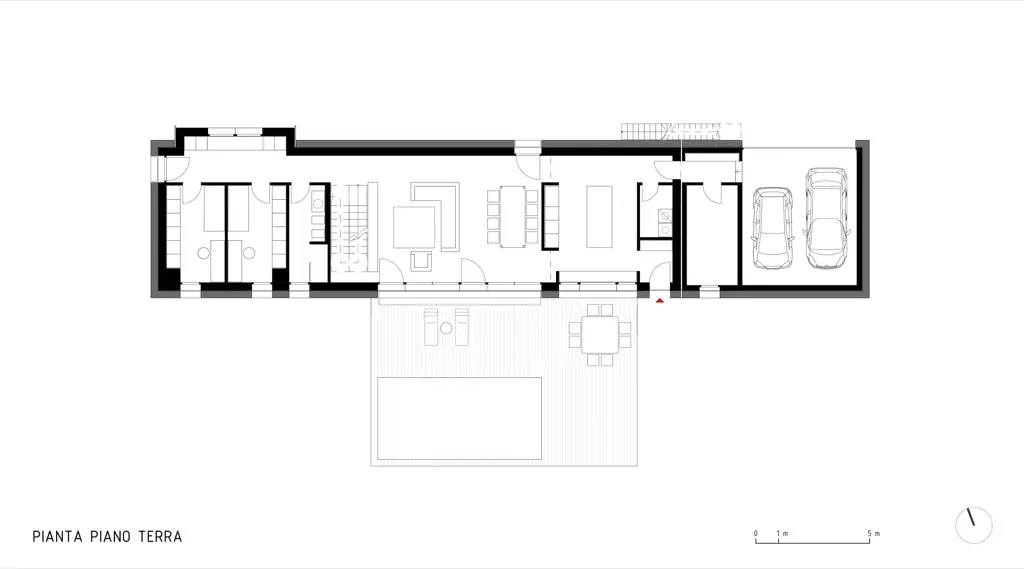
La planta baja alberga una cocina con isla central y desayunador bajo las ventanas. Posee también un salón de doble altura con comedor, un baño, y dos dormitorios infantiles. Hay que señalar que la entrada principal se hace precisamente por la cocina, junto por el desayunador. El garaje tiene capacidad para dos vehículos, hay un espacio de almacenamiento, y aporta entrada a la casa por la cocina. Este paso se hace por donde está el aseo. La vivienda tiene salida a la parte trasera al final de un pasillo que cuenta con una zona lateral de escritorios. Y existen otras puertas que comunican en el jardín: una desde el comedor, y otras dos desde la sala hacia la terraza de la piscina.
En la planta alta se encuentra el dormitorio principal con baño en suite, destacando una ducha con iluminación cenital. También hay otro lucernario en la entrada al vestidor. Este volumen superior deja un vacío lateral hacia la zona de escritorios (ver planos de planta).
Se puede afirmar que este diseño promueve la convivencia familiar al permitir la interacción desde diferentes habitaciones y niveles.


Una escalera que une y decora
Uno de los elementos más impresionantes de Border House es su escalera de madera plisada, revestida con pintura gris antracita. Esta estructura no solo conecta los dos niveles de la casa, sino que también sirve como un elemento decorativo, abriendo un diálogo visual con otros elementos arquitectónicos del hogar.
Existe otra escalera, pero exterior, que conduce a una azotea que hay encima de la cocina y garaje.
Eficiencia energética: una prioridad
Border House cuenta con un sistema de calefacción combinado con ventilación mecánica controlada, lo que minimiza el consumo de energía. Además, la instalación de paneles solares refuerza la eficiencia energética de la vivienda, reduciendo aún más su huella de carbono.
Integración con el entorno
La elección de materiales y colores para Border House se inspiró en el paisaje circundante. Los paneles divisorios interiores son de fibroyeso, mientras que los acabados incluyen parquet de roble y azulejos de distintos tamaños. Exteriormente en planta alta, los muros y cubierta inclinada están revestidos con juntas alzadas de metal antracita, proporcionando un contraste armonioso con el corcho de la planta baja.

Un diseño para el futuro
El proyecto Border House no solo representa una respuesta a la crisis climática actual, sino que también es un modelo de cómo los materiales sostenibles pueden usarse en la construcción moderna. Al optar por corcho, madera, y metal en lugar de materiales tradicionales, LCA architetti ha creado una residencia que es tanto innovadora como respetuosa con el medio ambiente.
FAQs sobre Border House
¿Qué hace que Border House sea sostenible?
La utilización de materiales naturales como el corcho y la madera, junto con sistemas de eficiencia energética, hace que esta casa tenga un alto grado de sostenibilidad.
¿Cómo promueve el diseño la interacción familiar?
El diseño de doble altura y los espacios comunes abiertos permiten la interacción visual y física entre los miembros de la familia desde diferentes niveles de la casa.
¿Qué materiales se usaron en la construcción de Border House?
Se utilizaron corcho para el revestimiento exterior, madera para la estructura y elementos decorativos, y metal antracita para los muros del primer piso.
¿Cuál es el papel de los paneles solares en la casa?
Los paneles solares ayudan a reducir el consumo de energía y la huella de carbono de la vivienda, mejorando su eficiencia energética.

Reflexiones finales
Border House, con su enfoque sostenible y uso innovador de materiales, es una respuesta interesante en la arquitectura residencial contemporánea. Este proyecto muestra que es posible construir hogares que sean tanto estéticamente atractivos como respetuosos con el medio ambiente. Al integrar elementos naturales y soluciones energéticas eficientes, LCA architetti ha creado un modelo inspirador para las generaciones venideras.


















