Refugio Bath House: con sistema prefabricado ARKit

0
157

En el corazón de la exuberante naturaleza de Victoria, Australia, se encuentra el Bath House. Es un refugio diseñado para quienes buscan una desconexión profunda de la ciudad, y un contacto íntimo con el entorno natural. Este artículo explora en detalle las características distintivas de esta cabaña, resaltando cómo su diseño y sostenibilidad responden a las necesidades contemporáneas de confort y conciencia ecológica.

refugio Bath House Australia

El concepto del Bath House

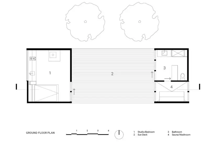
El refugio se extiende sobre 20 acres y está cerca de la majestuosa cordillera de los Grampians, ofreciendo una experiencia única de aislamiento y tranquilidad. Consta de dos estructuras: una dedicada a las funciones de vida y descanso, y la otra al cuidado personal y relajación. Ambas están unidas por una terraza que actúa como un espacio transicional y de contemplación.

Características técnicas y materiales

El Bath House se erige sobre una plataforma rectangular utilizando el innovador sistema prefabricado ARKit, que optimiza tiempos y reduce el impacto ambiental durante la construcción. Los componentes prefabricados ARKit sirven para conformar paredes, techo, y suelo. Forman un panel integrado que combina revestimiento exterior de cedro rojo occidental, aislamiento, y revestimiento interior. De esa manera se crea una envolvente de alto rendimiento. La madera robusta del exterior se integra estéticamente con el entorno natural.

Internamente, el refugio utiliza madera contrachapada para los revestimientos internos y carpintería, proporcionando un ambiente cálido y acogedor. La estructura abarca 50m² y está diseñada para aprovechar al máximo el espacio, facilitando una convivencia armónica con el entorno.

Sostenibilidad y eficiencia

El Bath House se caracteriza por su baja huella ecológica. Está desconectado de la red eléctrica, utiliza un sistema de captación y almacenamiento de agua de lluvia, y emplea madera como principal fuente de energía para calefacción y la sauna. Además, los materiales empleados son seleccionados por sus bajos niveles de compuestos orgánicos volátiles. Todo ello asegura un ambiente saludable para sus ocupantes.

Experiencia en la sauna

La sauna del Bath House es un espacio pensado para el relax y la introspección. Ofrece vistas del paisaje circundante a través de ventanas de altura completa, creando un diálogo constante con la naturaleza. Proporciona una experiencia sensorial intensa, ya sea en un ambiente caliente y humeante, o suavemente cálido y acogedor.

Valor del proyecto y consideraciones finales

El costo del proyecto Bath House es de $120,000. Esa cantidad incluye todos los aspectos, desde el diseño, consultores y autoridades, hasta la construcción y montaje en el sitio. Este refugio representa un logro en términos de diseño y funcionalidad. Además sirve como un modelo de cómo la arquitectura puede fomentar una relación respetuosa y sostenible con el entorno.

fachada estudio refugio Bath House terraza de refugio australiano terraza refugio Bath House

El Bath House es más que un simple espacio de alojamiento; es un santuario que ofrece a sus visitantes una profunda conexión con la naturaleza y un refugio contra el estrés de la vida moderna. Imágenes del sitio web de ARKit.

Adfer Dazne
Arquitecto español fundador de IS-ARQuitectura en 2006. Es autor de miles de artículos en los que se han analizado obras de numerosos profesionales de la arquitectura y el diseño.

DEJA UNA RESPUESTA

Los datos de carácter personal proporcionados en este formulario serán tratados por Fermín Gómez, como responsable de esta web. La finalidad es añadir dicho comentario al artículo. La legitimación es tu consentimiento. Destino: los datos facilitados quedan guardados en nuestro servidor, y no son compartidos con terceros. Derechos: Podrás ejercer tus derechos de acceso, rectificación, limitación, y suprimir los datos en info@IS-ARQuitectura.com, así como el derecho a presentar una reclamación ante una autoridad de control. Hay información adicional y detallada en nuestra Política de Privacidad.

Por favor ingrese su comentario!
Por favor ingrese su nombre aquí

He leído y acepto la política de privacidad de este blog. *

[Todos los comentarios son moderados, ten paciencia, el tuyo se publicará pronto!]