Sí, Amazon también vende casas prefabricadas (y no es broma)

0
24

Officer Owl, la casa prefabricada que se vende en Amazon

¿Comprar una casa en Amazon? Sí, como si fuera un microondas o unas cortinas. Esa es la “proeza” de Officer Owl. La noticia no está en la arquitectura, sino en el carrito de la compra. Porque, seamos claros, esta casita grita soy prefabricada desde cualquier ángulo. Ni misterio ni refinamiento: un kit que se entrega como si fueran piezas de Lego, con gastos de envío de 2,99 €.

Officer Owl casa Amazon

Características y montaje de la mini casa plegable

Sobre el papel, suena potente: estructura de acero, resistencia a terremotos y vientos extremos, aislamiento térmico, baño equipado y cocina funcional. Todo en unos 37 m² que prometen desplegarse gracias a un sistema hidráulico. Amazon lo vende como montaje exprés en minutos, aunque la realidad es más terrenal: necesitarás una cimentación previa, conexiones a las redes de luz y agua, y un acabado con juntas en el suelo que no enamoran precisamente.

Según Amazon, la casa incluye sanitarios en el baño, fregadero en la cocina y algunos armarios. El cuarto de baño viene con mampara y el interior puede personalizarse. También se entrega con las instalaciones interiores ya ejecutadas, lo que significa que tendrás enchufes, grifos, puntos de luz… Solo hay que conectar la casa a los servicios municipales.

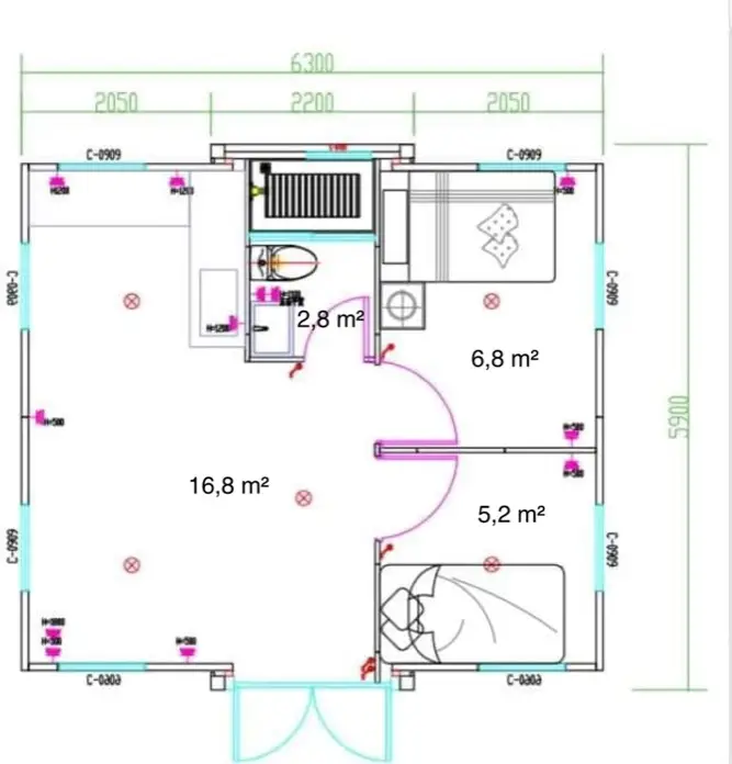
Y ahora uno de los aspectos más importantes: esta vivienda es de espacios mínimos. Hemos importando su plano de planta a la aplicación Morpholio Trace, y como sabemos sus dimensiones exteriores, ha sido fácil tener ese plano a escala. Luego se le ha pedido al programa que calcule la superficie de cada habitación, y la hemos dejado impresa en el plano. Aquí en el resultado:

plano planta officer owl

Para nuestra sorpresa, uno de los dormitorios ni siquiera tiene 6 m2, y el otro tan solo 6.8 m2. Así que nadie espere amplitud, porque esto es más “caja desplegable” que vivienda soñada.

Lo que no te cuentan sobre la casa Officer Owl

El precio de esta mini-casa prefabricada es otra curiosidad. En EE. UU. rondaba los 13.450 dólares, mientras que en Europa sube a 17.000 € (agotada en Francia, disponible en Bélgica). Eso sí, en España (17.350€) se promociona como la novedad revolucionaria, aunque en realidad se trata de un kit que lleva tiempo circulando en otros mercados.

El montaje “rápido” también tiene letra pequeña: no es que llegues, pulses un botón y tengas casa. Antes hay que preparar terreno con cimentación y todas las conexiones urbanas. Lo hidráulico ayuda a desplegarla, sí, pero no evita que la logística real sea más compleja de lo que pintan los titulares.

Por cierto, puede que te interese Compact House, otro modelo de casa extensible.

¿Revolución habitacional o simple curiosidad de mercado?

Los medios venden “la casa que revoluciona la vivienda tradicional”. Pero seamos sinceros: es más marketing que revolución. El atractivo está en el contexto: poder comprar vivienda en Amazon como si fuera electrónica barata. Eso no quita que las casas prefabricadas estén ganando terreno en España, con un 32 % de aumento en ciudades como Madrid.

Y aquí llega el misterio: Officer Owl no tiene web oficial, ni arquitectos conocidos detrás, ni una empresa clara que dé la cara. Rascando un poco más, aparecen las mismas fotos y maquetas en portales chinos como Alibaba y Made-in-China. Incluso las imágenes de interiores que se usan en medios están recicladas allí. Lo que Amazon vende como diseño “innovador” parece ser un producto genérico rebautizado para el escaparate global. La Officer Owl es una mini-casa con acento chino que, al final, vende más por lo raro que por lo revolucionario.

versiones chinas

(Este post incluye enlace de afiliados).

 

Adfer Dazne
Arquitecto español fundador de IS-ARQuitectura en 2006. Es autor de miles de artículos en los que se han analizado obras de numerosos profesionales de la arquitectura y el diseño.

DEJA UNA RESPUESTA

Los datos de carácter personal proporcionados en este formulario serán tratados por Fermín Gómez, como responsable de esta web. La finalidad es añadir dicho comentario al artículo. La legitimación es tu consentimiento. Destino: los datos facilitados quedan guardados en nuestro servidor, y no son compartidos con terceros. Derechos: Podrás ejercer tus derechos de acceso, rectificación, limitación, y suprimir los datos en info@IS-ARQuitectura.com, así como el derecho a presentar una reclamación ante una autoridad de control. Hay información adicional y detallada en nuestra Política de Privacidad.

Por favor ingrese su comentario!
Por favor ingrese su nombre aquí

He leído y acepto la política de privacidad de este blog. *

[Todos los comentarios son moderados, ten paciencia, el tuyo se publicará pronto!]