La casa Valley House está diseñada teniendo en mente todo su entorno. El arquitecto optimizó la forma y disposición de las ventanas, favoreciendo las panorámicas, así como la ventilación e iluminación natural. Se aprovecharon las buenas vistas hacia el valle situado en el lado noroeste, el río, y la ciudad de Launceston. Valley House es una casa solar en Tasmania que además recoge y almacena las aguas pluviales.

Características de la Valley House
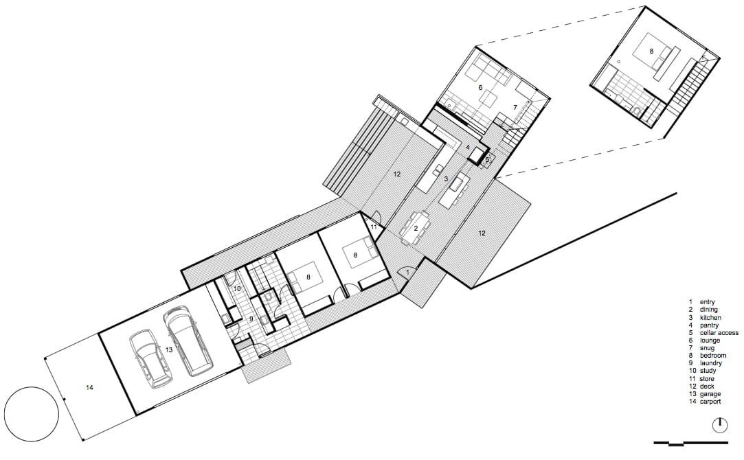
El edificio está definido como un volumen continuo que alcanza el borde del valle. La estrategia principal de su composición se centra en la cocina, provocando un gran hueco que atraviesa la vivienda de lado a lado. Esta disposición hace que la casa tenga zonas de estar al aire libre, que se pueden disfrutar según la climatología. Pero a la vez exhibe una combinación de la vida rural con el diseño contemporáneo.
Valley House es también una vivienda de dos alas. Una contiene el garaje, dos dormitorios secundarios, cuarto de baño, lavadero, y estudio. En la segunda se incluye la cocina, despensa, comedor, y sala de estar. Hay una escalera que conduce a la planta superior, donde está el dormitorio principal de la vivienda. Esta habitación sí tiene un cuarto de baño propio.

Con buen comportamiento pasivo y energía solar
Hay que destacar el bello contraste que provoca la gran abertura forrada de madera de Tasmania con el revestimiento metálico de la fachada. Claramente es un guiño a la arquitectura rural tradicional australiana, solo que en esta ocasión los ambientes conseguidos son claramente contemporáneos.
El acabado y decoración interior han dado como resultado un hogar cómodo y personal para la familia que lo ocupa. Los mayores huecos están situados en las fachadas más soleadas (noroeste, recordemos que estamos en el hemisferio sur). Esto garantiza unas buenas ganancias de radiación solar durante el invierno. Aquí hay que señalar que la vivienda se construyó para que pudiera mantener durante todo el año una temperatura interior confortable.
Dispone de iluminación LED, y todas las ventanas son de doble acristalamiento. A pesar de su localización tan apartada, se trata de un edificio enchufado a la red eléctrica. Pero dispone de una instalación solar que en ocasiones produce más energía de la que necesita. La que sobra se vierte a la red.


El proyecto de esta casa solar en Tasmania fue realizado por la firma de arquitectura PMD (Philip M Dingemanse). Fotos de Luke Hesketh.














