Este análisis corresponde a una casa de lujo que está ubicada en Singapur. Es la residencia 45 Faber Park, diseñada para una familia con tres hijos, pero con un amplio programa. Como veremos, es un proyecto similar al de otras casas fastuosas. Aparentemente se trata del típico proyecto moderno, en el que encontramos ciertos guiños a la arquitectura residencial de Marcio Kogan. De hecho tiene una disposición volumétrica y funcional que recuerda a la Casa P. Pero al explorar sus plantas y fotografías descubriremos detalles que hacen que esta vivienda tenga un brillo propio.

45 Faber Park
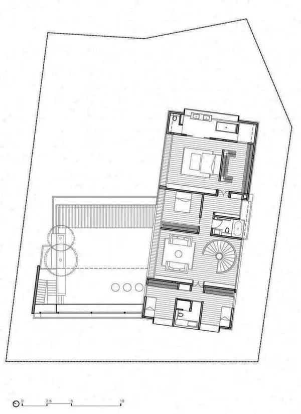
La composición consiste en dos volúmenes que forman una “L” ligeramente abierta. Eso sí, uno de ellos solamente ocupa la planta baja. Se desarrolla en varios niveles, debido a la diferencia de cota entre el frente y el fondo de la parcela. En esta planta se ha colocado el dormitorio para invitados (justo a la entrada), quedando la cocina, salón y el cuarto para el servicio doméstico dentro del mismo volumen. El dormitorio principal -que está en planta alta- y el de invitados, son los únicos que tienen cuarto de baño propio. Los otros tres que hay en la planta alta deben compartir baño. Llegados a este punto conviene recordar los dos aseos estratégicos y originales con los que cuenta la planta baja.

En el sótano la vivienda se completa con actividades propias de un hogar de lujo. Hay espacio para una sala Hi-Fi, la cual recibe luz natural a través de la piscina (observar la primera foto, arriba) y un patio trasero (ver sección). En este nivel también se ha dispuesto una sala de proyección de cine. Las combinaciones de materiales, la puerta de entrada, los pavimentos, la pérgola en el jardín superior… Son detalles a tener muy en cuenta.



Fachadas y escaleras
Lo señalábamos antes, pero lo que hace que este proyecto sea encantador es la elección de lo que tiene que ser transparente y opaco. Muy acertadamente toda la fachada del salón queda abierta hacia el jardín (con una interesante piscina). Pero también es de vidrio todo el cerramiento que queda por detrás de la escalera de caracol.
Esa escalera helicoidal articula la planta baja con la de dormitorios, aunque no es la única escalera que tiene esta casa de lujo. Hay una bajada al sótano desde el núcleo de la cocina, y otra exterior para subir a la terraza ajardinada que queda justo encima del salón. Por cierto, que los tres lucernarios que se ven en ese jardín son para dar luz natural a la escalera de acceso al sótano.

El proyecto de 45 Faber Park fue realizado por la oficina ONG & ONG Architects.
























