Casa de verano en Austria

0
229

Esta aparentemente sencilla construcción revela una sorprendente complejidad cuando la analizamos más detenidamente. Se trata de la Summer House, situada en el sur de Burgenland (Austria) que desafía las expectativas con su diseño.

Summer House de Judith Benzer

Características de la Summer House

En primer lugar, el acabado exterior de esta casa de verano presenta una homogeneidad excepcional. Puertas y ventanas quedan ocultas tras un panel exterior abatible de tablas de madera. Ese efecto crea una fachada hermética que contrasta con el entorno campestre. Y además viene muy bien para cuando la casa no está habitada (en los meses de invierno).

casa con ventanas abiertas y cerradas

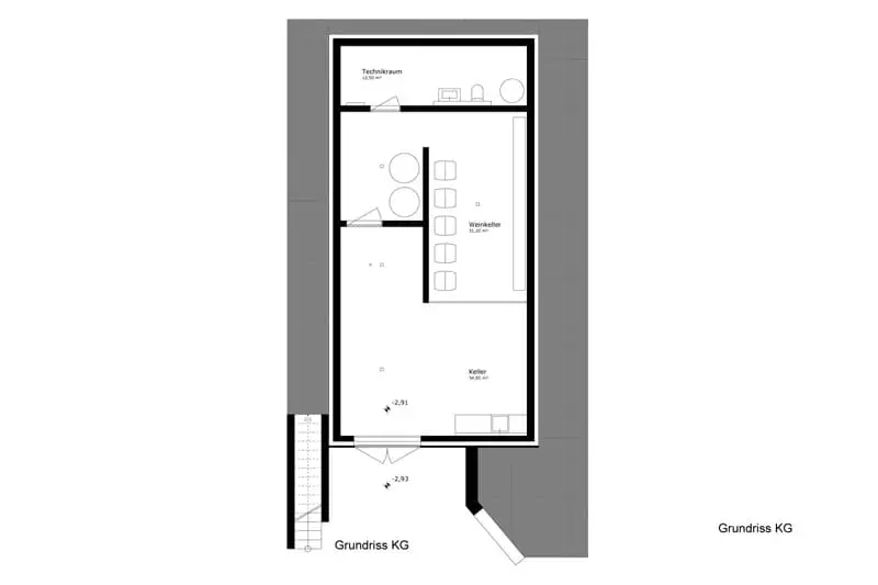
El sótano, por otro lado, está construido con sólidos muros de hormigón armado. Tiene un acceso estratégicamente ubicado en la parte inferior de la ladera. Este espacio se destina a diversas habitaciones utilizadas como bodega, tanto para la producción como el almacenamiento de vino. Cabe destacar que las dos plantas superiores NO tienen conexión directa con el sótano, y se utilizan para la vida cotidiana. Están construidas con una combinación de materiales que incluyen madera, acero, y hormigón visto. Las aristas de la cubierta están hechas con placas angulares de cobre.

cocina casa de verano

escalera Summer House

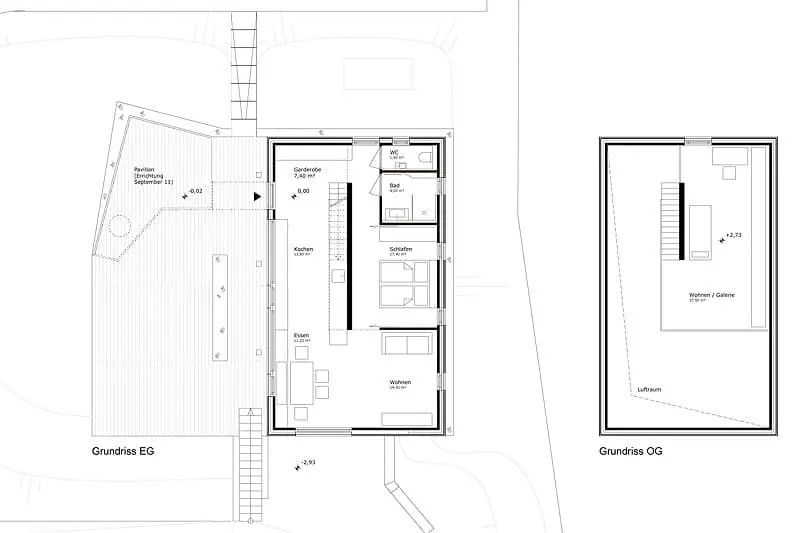
Dentro de la vivienda, se crea un ambiente moderno, con especial énfasis en el diseño en forma de «L» que conforma la cocina y el salón-comedor. La altura libre hasta la cubierta inclinada se aprovecha al máximo en este nivel. En esta planta también encontramos el dormitorio y cuarto de baño (con inodoro separado). Sin embargo, un elemento intrigante es la escalera que conduce a la sala de estudio. Decimos “intrigante” porque viendo su estructura de planchas de acero (en voladizo) es fácil sentir las vibraciones que debe provocar al usuario cuando se baje por ella.

En un lateral de la Summer House hay una amplia terraza, con el piso de madera.

Summer House en paisaje nevado

La Summer House es un proyecto de Judith Benzer Architektur. Fotos de Martin Weiß.

Reseña
Fachada
9.0
Organización
8.2
Diseño interior
9.2
Sostenibilidad
3.4
Calidad de ejecución
8.9
Adfer Dazne
Arquitecto español fundador de IS-ARQuitectura en 2006. Es autor de miles de artículos en los que se han analizado obras de numerosos profesionales de la arquitectura y el diseño.
summer-houseLo mejor.- La Summer House es un proyecto que genera interés por ser un volumen sencillo que se cierra herméticamente. La continuidad en cubierta de la textura de madera de la fachada es algo que se ha visto en otros proyecto. Pero aquí se ha llevado a un otro nivel, mostrando un objeto misterioso cuando los paneles de las ventanas están cerrados. Por dentro se consigue una moderna y cálida decoración, que está muy bien equilibrada. Lo peor.- Las dos puertas del dormitorio aportan funcionalidad a ese espacio, pero pueden generar problemas de privacidad. Llama la atención también el atrevido diseño de la escalera, aunque tenemos nuestras dudas sobre su funcionalidad.

DEJA UNA RESPUESTA

Los datos de carácter personal proporcionados en este formulario serán tratados por Fermín Gómez, como responsable de esta web. La finalidad es añadir dicho comentario al artículo. La legitimación es tu consentimiento. Destino: los datos facilitados quedan guardados en nuestro servidor, y no son compartidos con terceros. Derechos: Podrás ejercer tus derechos de acceso, rectificación, limitación, y suprimir los datos en info@IS-ARQuitectura.com, así como el derecho a presentar una reclamación ante una autoridad de control. Hay información adicional y detallada en nuestra Política de Privacidad.

Por favor ingrese su comentario!
Por favor ingrese su nombre aquí

He leído y acepto la política de privacidad de este blog. *

[Todos los comentarios son moderados, ten paciencia, el tuyo se publicará pronto!]