Los arquitectos nipones tienen fama de ser bastante atrevidos a la hora de diseñar viviendas. Basta mirar algunos ejemplos para comprender a qué nos estamos refiriendo, como la casi sin escalera creada por Masao Yahagi. Tampoco se queda atrás la rara vivienda de hormigón de Eastern Design Office. La casa que analizamos en este post se encuentra en la misma línea, pero con matices. Nos referimos a la Layered House, construida en un antiguo barrio de la ciudad de Saroma-cho (isla de Hokkaido). Estamos ante un experimento con espacios casi escénicos, que crea demasiados conflictos funcionales.

Layered House
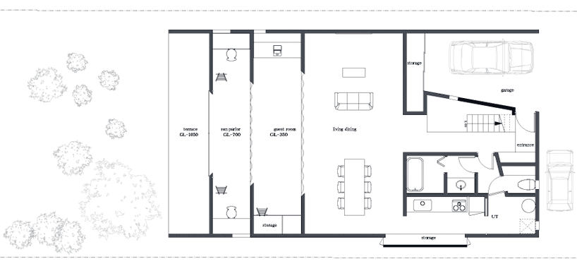
El proyecto para la Layered House tenía asignado un terreno del lado sur de la casa de los padres del cliente. Por ese motivo el edificio está tan vinculado hacia esa dirección, con una gran puerta que lleva a un jardín. El volumen es lo más simple que nos podamos imaginar: un paralelepípedo rectangular. Dicho con otras palabras: una casa-caja, o una “caja de zapatos”.
En un volumen con esa geometría se configura la casa para una pareja con dos hijos. Como veremos más adelante, esta vivienda es perfecta para saber en cada momento “qué ocurre al otro lado”. Desconocemos si se hizo así por petición del cliente, pero es un aspecto poco habitual; y nada recomendable cuando se quiere proteger la intimidad de sus ocupantes.

Organización
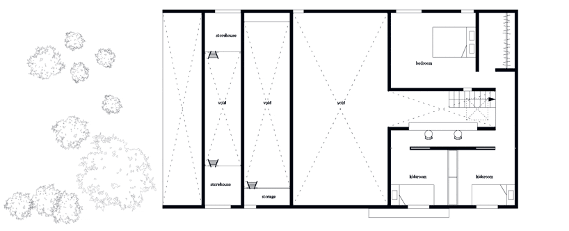
Este hogar tiene dos plantas construidas en su cara norte, donde está la entrada y el garaje. El resto es de una sola planta, pero conservando en todo momento la misma altura. Una configuración de este tipo provoca espacios con techos muy altos, y además están dispuestos de una forma poco habitual. A partir de la sala-comedor estas dependencias están conectadas en serie, una tras otra. Por eso aparecen largas y estrechas salas para los hijos e invitados. Son espacios sin puertas, con altillos en los extremos, a los que se accede por unas escalerillas. Esto último es bastante típico en la arquitectura residencial japonesa.
Como se puede apreciar en las fotos y planos, estos espacios se parecen muy poco a las habitaciones convencionales de una casa. No están cerrados, solo una gran cortina blanca, y casi transparente, se utiliza para “separar”.
En el lado norte, y junto a las habitaciones de los hijos (planta alta), existe una zona de paso con un escritorio. Pero examinando las fotos, todo parece indicar que el verdadero lugar de estudio está abajo, antes de salir al jardín. El dormitorio principal también está en el piso de arriba, justo encima del garaje.
En diversos tabiques del interior hay huecos de diferentes tamaños que comunican visualmente los espacios.

El proyecto para la Layered House fue realizado por Jun Igarashi Architects.


















