H-House es una vivienda de una planta que se construyó en el Archipiélago de Estocolmo. Recibe ese nombre porque fue diseñada siguiendo un esquema que dibuja una H. Además de tener unas vistas privilegiadas del lugar, el edificio soporta un clima costero bastante severo. Por ese motivo se construyó con esa forma, y con determinados materiales, como veremos más adelante.

H-House
Esta vivienda de vacaciones está inmersa en un paisaje que ofrece dos caras. Por un lado el escenario resulta bastante pintoresco, pero también impone una climatología muy dura. Hay que tener en cuenta que en esta región sueca los veranos son suaves y cortos; pero también predominan fuertes rachas de viento.
El proyecto para la H-House explora además la frontera entre el interior y el exterior, entre el espacio protegido y el que está expuesto a la intemperie. Un dato interesante es que un tercio del área construida se corresponde con zonas al aire libre bajo techo.

Organización
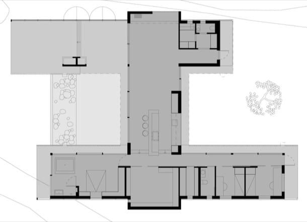
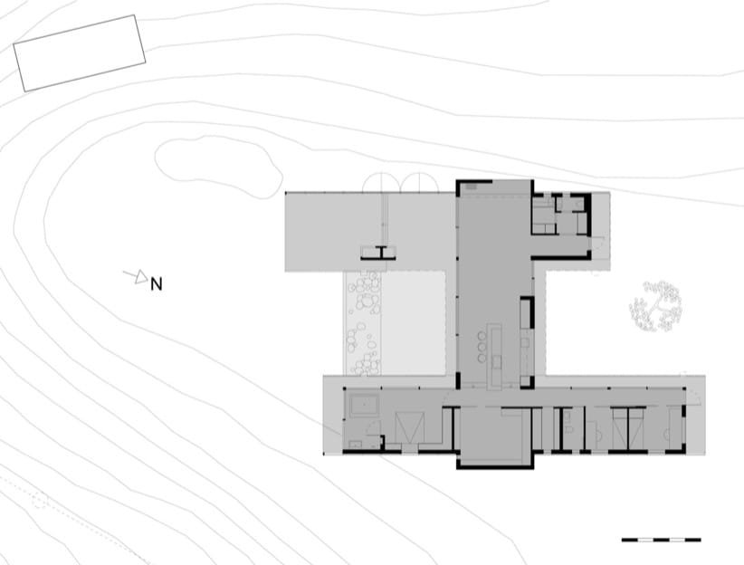
La disposición en H en esta vivienda implica la aparición de unos patios. Estos espacios protegen de los vientos dominantes a las dependencias principales. Según se puede apreciar en el plano de planta, un ala se ha ocupado con tres dormitorios; el ala del lado opuesto sirve como vestíbulo de entrada, aseo, y sauna. Es un volumen que se prolonga más allá de la sala de estar, creando un espacio exterior resguardado por la cubierta, y por uno de sus laterales. Sirve como sala abierta familiar, para disfrutar al aire libre la mitad del año, pues tiene chimenea.
La pieza central de la vivienda cumple las funciones de sala de estar (con otra chimenea), comedor y cocina. El cruce con el ala de dormitorios se ha ocupado con una biblioteca, accesible mediante una doble puerta corredera.
Los dormitorios son bastante sencillos, y comparten un único cuarto de baño (con ducha). Pero la habitación principal cuenta con bañera empotrada en el piso, ducha, y lavabo. Esta disposición crea un largo corredor que comunica todas las habitaciones.

Otras consideraciones
Esta vivienda tiene un muelle de salida al mar, y un moderno cobertizo para almacenar leña para el invierno.
Para la construcción de la H-House se utilizaron materiales como el hormigón armado y acero oxidado. Esto provocó que desde el primer día la vivienda tuviera un “aspecto desgastado”. También vemos madera de pino natural, y fachadas muy acristaladas, para poder disfrutar de las espléndidas vistas.
La vivienda de una planta H-House es un proyecto del estudio de arquitectura de Estocolmo Widjedal Racki Bergerhoff (WRB). Fotos de Åke E:son Lindman.
















