Dixon House se construyó en una parcela de 5.000m2, junto a un campo de golf en Martinborough (Nueva Zelanda). La encargó un cliente que quería un lugar para pasar los fines de semana, relajarse, y disfrutar del paisaje. También debía tener espacio suficiente para poder compartirla con familiares y amigos. La parte más interesante de este proyecto la encontraremos en su organización, alrededor de un patio abierto.

Dixon House
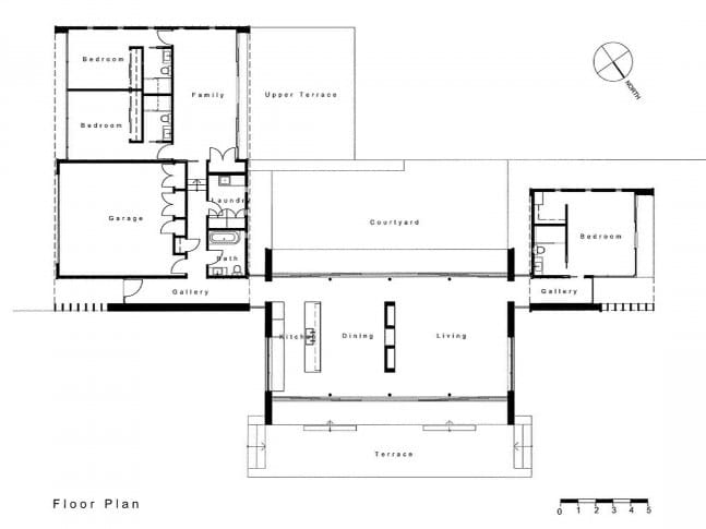
Entender la Casa Dixon es bastante sencillo. Es una casa de una planta que está organizada con 3 pabellones, dejando un patio abierto central. Uno de esos pabellones está formado por el dormitorio principal; otro funciona como un anexo para invitados junto al garaje; el pabellón central contiene los espacios de vida en común.
Pabellón central
Este volumen de la Dixon House es fácilmente distinguible de los otros dos. Aparte de diferenciarse por tener fachada de color claro, se conecta al resto de pabellones por unas galerías acristaladas. Esto hace que desde el exterior sea muy sencillo de identificar.
Este pabellón se compone de un único espacio para la cocina, comedor, y sala. Dispone de fachadas opuestas completamente acristaladas que ofrecen buenas panorámicas hacia el paisaje. Unas grandes puertas correderas hacen que estos espacios de vida se extiendan hacia las terrazas.


Pabellón del dormitorio principal
Este edificio sirve para organizar un gran dormitorio, con cuarto de baño y vestidor. La esquina de la habitación está completamente acristalada, y protegida del sol de la tarde por el alero de cubierta. También es el pabellón más pequeño de los tres que componen la vivienda.
Pabellón para invitados
El pabellón para huéspedes es el más complejo de la Dixon House. La mitad de su superficie está destinada a garaje, cuarto de baño, lavadero, y varios armarios empotrados. En el resto se han organizado dos dormitorios simétricos, cada uno con baño propio, y gran armario. La entrada a estas dos habitaciones se realiza a través de una sala familiar, que tiene acceso (mediante puertas correderas) a la terraza más elevada de la casa.

Aspectos destacables de esta vivienda
Al estar la casa construida sobre una ladera, existen diferencias de cota entre las terrazas exteriores. Esto se aprecia con claridad en algunas fotos y en el plano de sección. Por eso se puede hablar de una terraza inferior, y otra superior, a ambos lados del pabellón central. Las habitaciones más elevadas se corresponden con las del pabellón de invitados.
A pesar de tener grandes fachadas acristaladas, se encuentran bien protegidas de la radiación directa solar, mediante vuelos de cubierta, elementos fijos y otros móviles. Gracias a ello, desde cualquier parte de la casa se puede disfrutar de amplias vistas. Los pabellones extremos están revestidos de zinc, así como el cuerpo de la chimenea del salón principal. El resto está pintado de blanco.

La Dixon House es un proyecto de Designgroup Stapleton Elliott.
























