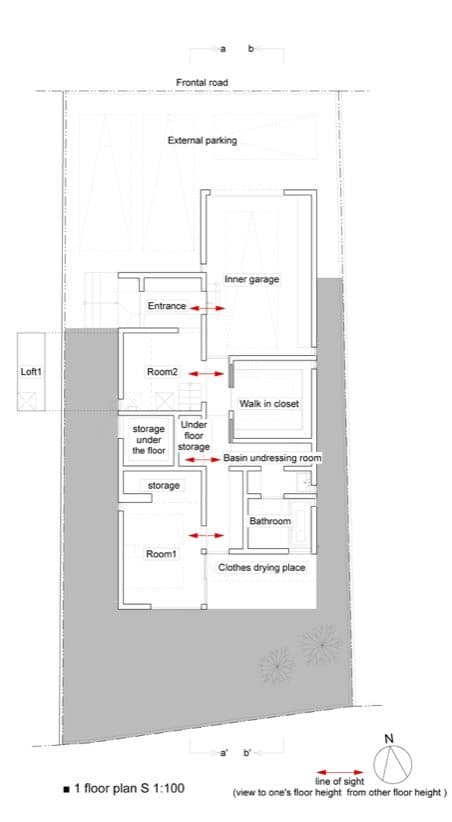
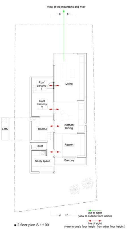
A primera vista, parece que en este proyecto el arquitecto se complicó la vida diseñando una “casa de dos plantas”. Está construida en un terreno que es completamente llano, y las panorámicas de su entorno tampoco son gran cosa. Entonces, ¿qué interés tiene esta vivienda? Pues que está diseñada con nueve niveles diferentes, y que se trata de una casa sin escalera.

Casa sin escalera en Tokurikishinmachi
No se nos ocurre ninguna razón de peso para que esta Casa en Tokurikishinmachi (Kitakyushu, prefectura de Fukuoka, Japón) se haya diseñado de esa forma. Pero sí hay motivos para echarle un vistazo a su diseño. Así sabremos cómo es por dentro una casa sin escalera convencional.
En este proyecto la escalera es toda la casa. Los pisos se han fragmentado para ir repartiendo las habitaciones según se sube. En algunas partes se hace mediante un grupo de peldaños, y en otras solamente subiendo un escalón.

Este recorrido comienza en el exterior, con los 4 primeros peldaños que hay justo en la entrada. Termina en la sala de estar, que queda justo encima del garaje, y que es continuidad de la cocina y el comedor. También hay que considerar otro efecto: se ha creado un hogar de tan solo dos dormitorios. Al menos esas son las únicas habitaciones que tienen privacidad, pues el resto acaban siendo zona de paso para ir de una parte a otra de la casa. Con esta organización aparecen huecos desde los que se crea una comunicación visual, entre los diferentes niveles de la casa.
Como casi cualquier escalera, esta casa-escalera también deja espacio inferior que se puede aprovechar como almacenamiento. Otra consecuencia directa de esta tipología es la aparición de un techo escalonado. De esa manera se pueden abrir ventanas para permitir la entrada de luz natural (ver plano de sección). También evita la aparición de ventanas en las fachadas laterales que dan a las construcciones vecinas, y gana por tanto privacidad.


Esta casa sin escalera convencional fue proyectada por el estudio de arquitectura de Masao Yahagi. Fotos de Koichi Torimura.


















