G-Tower: con todos sus pisos diferentes

0
350

En la tercera ciudad más grande de Corea del Sur, se construyó este original edificio en altura. Es la Torre G de Incheon, una peculiar torre de oficinas que tiene todos y cada uno de sus 33 pisos diferentes. Fue también diseñada para funcionar como un nuevo símbolo ecológico para la ciudad.

Torre G de Incheon

Torre G de Incheon sede IFEZ

La G-Tower se levanta como un imponente hito, situado al final del parque central de Song-do. Se ha convertido en un buen punto de referencia para los peatones despistados, esos que intentan localizar alguna dirección.

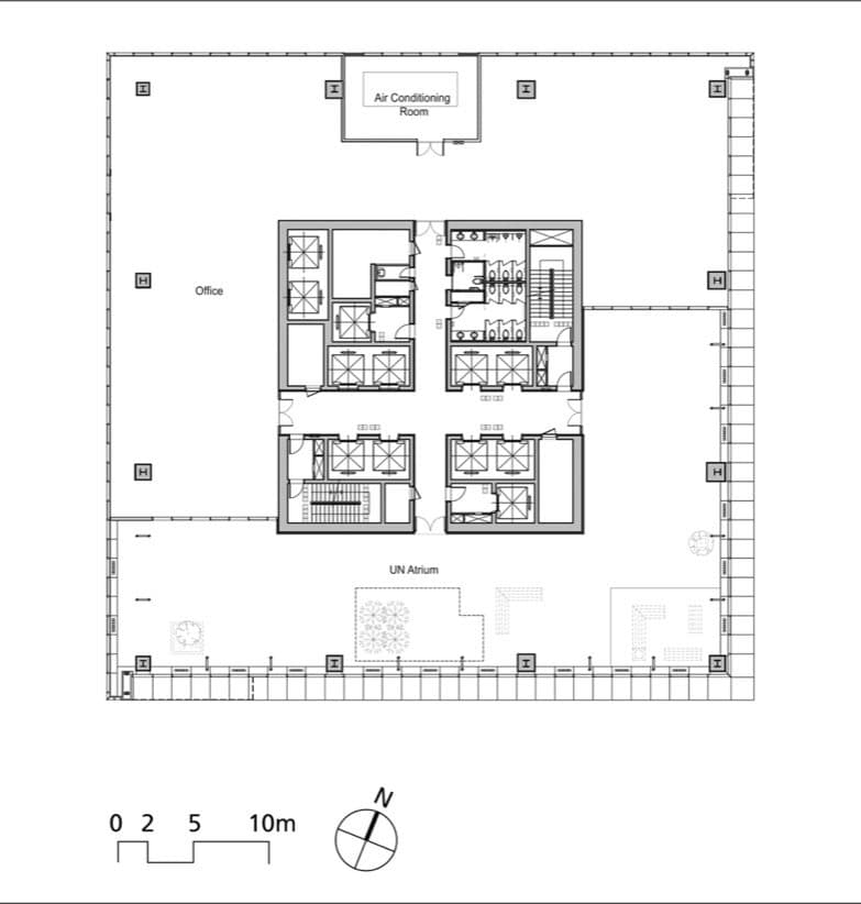
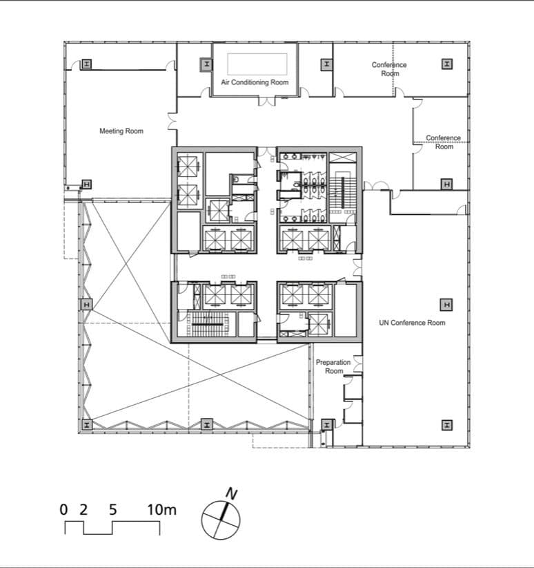
Las plantas de esta torre se organizan de manera única, para permitir que en su interior se produzcan espacios con forma de pirámide. Y es que el edificio posee 4 atrios de 6 pisos de altura, y una amplia terraza en la parte alta. Esta disposición se percibe perfectamente desde el exterior, a través de unos grandes triángulos de vidrio que aparecen en su fachada.

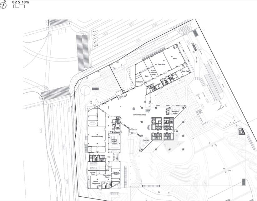
La torre es la sede de las oficinas gubernamentales que controlan la IFEZ (Icheon Free Economic Zone) de las regiones de Songdo, Young-Jong, y Chung-Ra. Pero también cuenta con oficinas para la ONU, y una compañía inmobiliaria. Cada uno de los tres distritos de la IFEZ tiene su sector en la G-Tower. La rotación de la pirámide triangular interior provoca la aparición de interesantes espacios comunitarios, y diferentes experiencias para el usuario.

El ala de cultura y el de servicio público, están conectados a la torre mediante el vestíbulo principal piramidal. Las funciones públicas y culturales de los tres inquilinos principales se agrupan por separado a nivel de suelo, lo cual resulta de gran ayuda para el visitante.

Torre G de Incheon Corea del Sur

Torre G interior atrio vestibulo

Torre G vista urbana y terraza

El proyecto para la Torre G de Incheon lo realizó el estudio HAEHN. Fotos de Young-chae Park.

Adfer Dazne
Arquitecto español fundador de IS-ARQuitectura en 2006. Es autor de miles de artículos en los que se han analizado obras de numerosos profesionales de la arquitectura y el diseño.

DEJA UNA RESPUESTA

Los datos de carácter personal proporcionados en este formulario serán tratados por Fermín Gómez, como responsable de esta web. La finalidad es añadir dicho comentario al artículo. La legitimación es tu consentimiento. Destino: los datos facilitados quedan guardados en nuestro servidor, y no son compartidos con terceros. Derechos: Podrás ejercer tus derechos de acceso, rectificación, limitación, y suprimir los datos en info@IS-ARQuitectura.com, así como el derecho a presentar una reclamación ante una autoridad de control. Hay información adicional y detallada en nuestra Política de Privacidad.

Por favor ingrese su comentario!
Por favor ingrese su nombre aquí

He leído y acepto la política de privacidad de este blog. *

[Todos los comentarios son moderados, ten paciencia, el tuyo se publicará pronto!]