A este edificio se le conoce por 4 Containers House. Está construido en una parcela de 150 m2 en Bekasi, una ciudad ubicada en la isla de Java, Indonesia. El proyecto lo encargó una joven pareja con hijos que deseaba vivir en una estructura basada en contenedores. También manifestaron su deseo de disponer de una sala de usos múltiples. Lógicamente esta solución arquitectónica presenta notables diferencias respecto al estilo dominante en el barrio. Finalmente se optó por la utilización de cuatro contenedores de carga como componente principal de la edificación. Es una composición que generó una moderna estructura con matices de diseño industrial.

4 Containers House
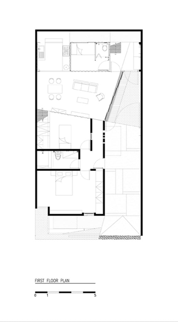
La distribución espacial de la 4 Containers House se realiza en dos niveles. En la planta inferior, están los espacios esenciales para la vida doméstica. El diseño se caracteriza por un dormitorio principal orientado hacia la calle, mientras que los otros dos dormitorios se orientan hacia el interior del terreno. En el centro del plano, la cocina y el salón establecen un núcleo central, con la disposición estratégica de una mesa de comedor para facilitar la interacción entre ambos espacios. En esta zona se empleó un solo contenedor, que está modificado para asemejarse en tamaño a uno de los dormitorios. El material sobrante derivado de esta intervención se destinó al revestimiento de una pared en el salón. Las habitaciones se encuentran construidas con paredes de ladrillo, aportando estabilidad y definición en el diseño.

Un elemento vertical crucial en la organización espacial es la escalera situada al fondo de la parcela, que proporciona acceso a un contenedor del primer piso. Este espacio es adaptado como área de estudio, destinada a actividades de trabajo y concentración. Adicionalmente, otra escalera conduce a un espacio multifuncional formado por dos contenedores dispuestos en forma de «L». Esta área acoge un aseo y una pequeña terraza ajardinada. Entre estas dos áreas del nivel superior, se crea un vacío, aunque se mantienen comunicadas mediante una pasarela.
Otros detalles
El diseño interior de los contenedores revela la utilización de madera de pino recuperada como revestimiento en los techos. Esta superficie proporciona una sensación cálida y estética, en contraste con el entorno industrial. La incorporación de aislamiento con lana de vidrio se justifica por el clima tropical propio de la región, optimizando la regulación térmica y acústica en el interior de la vivienda. En cuanto al pavimento, partes del suelo están revestidas con hormigón pulido, aportando un toque contemporáneo y de fácil mantenimiento.
Este proyecto, denominado 4 Containers House, es resultado de la labor de los arquitectos de Atelier Riri. Aquí plasmaron su visión y experiencia, que fusiona elementos industriales y modernos en un entorno residencial. La combinación de innovación arquitectónica y adaptación al clima hacen de esta vivienda un ejemplo sobresaliente de diseño funcional y estético.
















