PowerHouse: casas prefabricadas en hilera

0
194

Los residentes de estas casas prefabricadas en hilera tienen una factura eléctrica que es la envidia de sus vecinos. Gracias a los paneles solares y el comportamiento solar pasivo, cada una de estas PowerHouse es considerada una vivienda de energía cero. Estas casas se construyeron en la localidad sueca de Upplands Väsby.

casas prefabricadas en hilera PowerHouse

 

Casas prefabricadas en hilera, y de energía cero

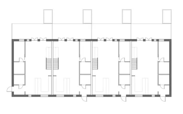
Uno de los mayores secretos de estas viviendas prefabricadas está relacionado con la orientación que adoptaron en el sitio. Cuentan los arquitectos que la parcela estaba delimitada por dos callejones sin salida, en dirección este-oeste. De haber colocado las casas alineadas a esas calles, el patio trasero estaría orientado al norte, algo poco deseable. En lugar de eso, crearon una calle privada dentro, pero abierta hacia el barrio. Esto aumentó la conectividad peatonal, y permitió que las casas adosadas tuvieran una orientación con mejor comportamiento solar pasivo.

Este proyecto se planteó para que el diseño fuera lo más sencillo posible. Posee tejado a dos aguas, y detalles que no plantean complicaciones, para que se fabricara por módulos en un taller. Su instalación solar tiene el máximo de placas solares permitidas por la ordenanza municipal. Por eso cada casa cuenta con 20 paneles en su cubierta.

casas prefabricadas adosadas PowerHouse

El interior refleja la sencillez de su fachada. Tiene suelos de madera, grandes ventanas, y ciertos acabados industriales en cocina y escalera. La escalera es una chapa metálica que está empotrada en el muro, y colgada de cables en el borde opuesto. Como se aprecia en las fotos, esa no ha sido una buena solución. Precisamente porque se tuvieron que añadir después unas placas metálicas para mantener la separación entre cables. Tampoco el remate de los cables en la parte inferior de la chapa de escalera, es el adecuado. ¿El motivo? porque podría dañar a algún niño que pasara por debajo.

El proyecto de las casas adosadas solares PowerHouse fue realizado por el estudio de arquitectura de Street Monkey Architects.

Adfer Dazne
Arquitecto español fundador de IS-ARQuitectura en 2006. Es autor de miles de artículos en los que se han analizado obras de numerosos profesionales de la arquitectura y el diseño.

DEJA UNA RESPUESTA

Los datos de carácter personal proporcionados en este formulario serán tratados por Fermín Gómez, como responsable de esta web. La finalidad es añadir dicho comentario al artículo. La legitimación es tu consentimiento. Destino: los datos facilitados quedan guardados en nuestro servidor, y no son compartidos con terceros. Derechos: Podrás ejercer tus derechos de acceso, rectificación, limitación, y suprimir los datos en info@IS-ARQuitectura.com, así como el derecho a presentar una reclamación ante una autoridad de control. Hay información adicional y detallada en nuestra Política de Privacidad.

Por favor ingrese su comentario!
Por favor ingrese su nombre aquí

He leído y acepto la política de privacidad de este blog. *

[Todos los comentarios son moderados, ten paciencia, el tuyo se publicará pronto!]