La Kauhikoa Core House: vistazo general
La Kauhikoa Core House es una casa ubicada en la isla de Maui (Hawái). Esta casa prefabricada está construida en una antigua plantación de piñas y tiene una superficie de 75 metros cuadrados. Cuenta con dos dormitorios, dos baños, sala de estar, y una cocina abierta, además de espacios adicionales de trabajo y almacenamiento.

Diseño híbrido y modular
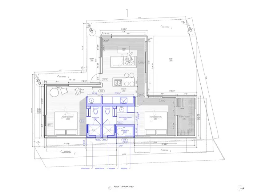
El núcleo de esta casa es su módulo central prefabricado de 15 metros cuadrados. Este núcleo contiene los elementos más complejos y costosos, como los baños y los servicios de cocina, lo que permite construir el resto de la casa de manera más flexible. Aunque la construcción se realizó en el sitio debido a la pandemia, sigue siendo un buen ejemplo del concepto «Core House» por su eficiencia y organización.


Vida interior y exterior en armonía
Una de las características principales de la Kauhikoa Core House es su capacidad para combinar la vida interior y exterior. La casa cuenta con 93 metros cuadrados de espacio exterior cubierto, incluyendo una gran lanai que sirve como sala de estar al aire libre. La pantalla modular de teca, fabricada en Bali, filtra los vientos fuertes y el sol de la mañana. Además proporciona espacio para guardar tablas de surf, bicicletas, equipo de playa, y una ducha exterior.
Integración con el paisaje hawaiano
Ubicada en la esquina trasera de la propiedad y orientada hacia un barranco forestal, la casa aprovecha las vistas del océano Pacífico y el volcán Haleakala. La disposición de sus volúmenes parecen formas que se desploman por la pendiente, reflejando el movimiento de las olas en el horizonte. Esta integración con el paisaje hace que la casa se distinga bien en el entorno.

La Kauhikoa Core House es una respuesta acertada a las limitaciones de materiales y mano de obra en Maui. Además ofrece una solución de diseño asequible y de buena calidad. Con su atrevido diseño, enfocado en la eficiencia, esta vivienda prefabricada puede ser un ejemplo para futuras construcciones en la isla.

Este proyecto lo diseñó el estudio Spiegel Aihara Workshop (SAW). Fotos de Mariko Reed.




















