Kokoon: sistema modular en madera para alojamiento temporal

0
240

Este sistema modular partió de la necesidad que hay en Finlandia de proporcionar un alojamiento temporal a estudiantes. También puede servir para gente sin techo, o familias cuyo hogar se está reformando. Lleva el nombre de Kokoon, y fue desarrollado por estudiantes de Arquitectura.

sistema modular Kokoon fachada

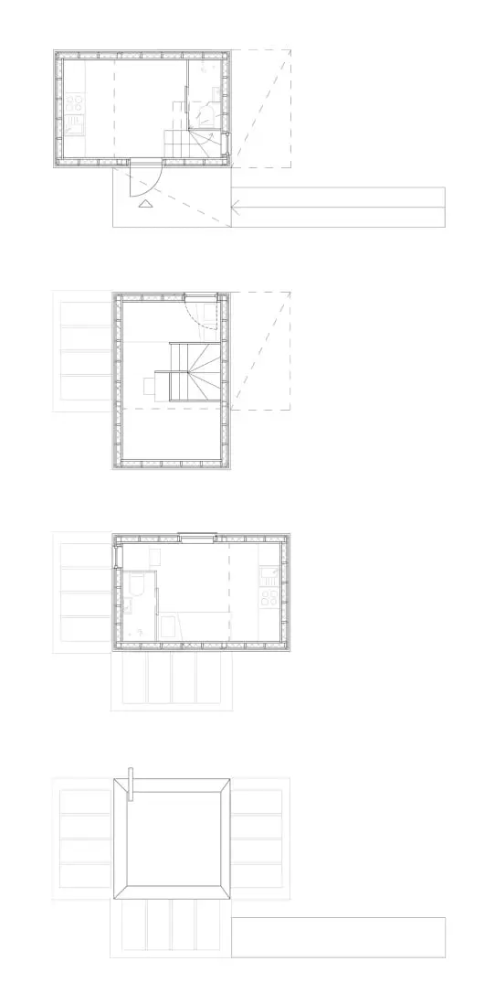
Casas temporales con sistema modular prefabricado

Kokoon supone una solución modular de vivienda prefabricada portátil. Los módulos pueden apilarse o unirse horizontalmente, con el fin de crear un sinfín de configuraciones diferentes.

Estas imágenes corresponden al primer prototipo creado, utilizando tres módulos Kokoon. Es una disposición que proporciona una pequeña vivienda de 35m2, con espacios interiores bien iluminados, gracias al lucernario inclinado de cada módulo. El montaje de esta unidad solo requirió de un día de trabajo.

Este ejemplo de tres módulos aporta a sus ocupantes de espacio para cocina-comedor, cuarto de baño, dormitorio, estudio, y sitio para almacenamiento. El acceso a los niveles superiores se realiza mediante una escalera interior de madera.

Cada módulo se construyó en taller, empleando madera laminada y panel de abeto. El aislamiento se hizo con fibra de madera proyectada. Y todo el interior, incluidos muebles, se dejaron sin tratar.

casa modular Kokoon interior

De este diseño es posible destacar 2 aspectos bastante interesantes:

  • Todos los módulos tienen la misma forma, pero al apilarse sobre una superficie cuadrada, permite que cada uno de ellos pueda tener una orientación diferente.
  • Cada módulo posee un lucernario. Ahora mismo la entrada de luz se controla con una cortina, pero podría mejorarse con sistemas integrados en dicho hueco.

El concepto Kokoon tiene mucho potencial, pero necesita revisarse en determinados aspectos de su interior. Una solución de alojamiento temporal no tiene por qué ser menos confortable que una permanente. Y en ese sentido este proyecto flaquea bastante, porque esa cocina apenas va a servir para preparar un desayuno. Un diseño de mobiliario a medida, y que fuera convertible, aprovecharía mejor el espacio.

aseo vivienda prefabricada Kokoon

modulo superior Kokoon

El sistema modular Kokoon fue creado gracias al Programa de Madera de la Escuela de Artes, Diseño y Arquitectura de la Universidad Aalto (Helsinki, Finlandia).

Adfer Dazne
Arquitecto español fundador de IS-ARQuitectura en 2006. Es autor de miles de artículos en los que se han analizado obras de numerosos profesionales de la arquitectura y el diseño.

DEJA UNA RESPUESTA

Los datos de carácter personal proporcionados en este formulario serán tratados por Fermín Gómez, como responsable de esta web. La finalidad es añadir dicho comentario al artículo. La legitimación es tu consentimiento. Destino: los datos facilitados quedan guardados en nuestro servidor, y no son compartidos con terceros. Derechos: Podrás ejercer tus derechos de acceso, rectificación, limitación, y suprimir los datos en info@IS-ARQuitectura.com, así como el derecho a presentar una reclamación ante una autoridad de control. Hay información adicional y detallada en nuestra Política de Privacidad.

Por favor ingrese su comentario!
Por favor ingrese su nombre aquí

He leído y acepto la política de privacidad de este blog. *

[Todos los comentarios son moderados, ten paciencia, el tuyo se publicará pronto!]