Mini casa con un magnífico altillo

0
265

Estas fotos son de la mini casa de madera Ynez. Está hecha por Oregon Cottage, uno de los constructores más serios que han pasado por nuestro blog. Produce a partir de diseños de su catálogo, pero también se adapta a las necesidades del cliente.

Características de Ynez

No es la primera vez que vemos una mini casa fabricada por Oregon Cottage. Ya conocimos los modelos Alsek y Siskiyou, unas pequeñas construcciones montadas en un remolque. Ambas estaban hechas de madera, y con unos acabados bastante artesanales.

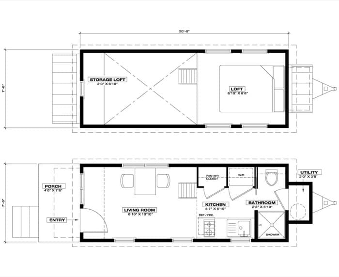
El modelo Ynez supone una evolución de Siskiyou. Surgió por petición de un cliente que deseaba una tiny house con loft más amplio, y cocina personalizada. Así que se eliminó el pequeño porche de entrada, se añadió un armario, y otro más para la lavadora. Cuando la casa está “aparcada”, en la entrada se coloca una plataforma de madera, que funciona como terraza.

mini casa de madera Ynez entrada

Pero el cambio que se hizo en el altillo fue el más importante. Se redujo la pendiente del tejado, y con ello mejoró bastante su habitabilidad. La nueva altura en los laterales permitió la incorporación de cuatro ventanas. Esto le dio al loft más iluminación, y una mayor capacidad de ventilación. Con todos esos cambios se había creado un nuevo modelo de mini casa.

El cuarto de baño de la casa Ynez está equipado con inodoro de compostaje, pero también puede ser de cisterna, como se ve en una de las fotos. La ducha es bastante espaciosa, porque ocupa toda la anchura, alcanzando 32 pulgadas (81cm). El baño tiene extractor de aire, pero también dispone de ventana. Debajo de ella está el acceso a un pequeño trastero. (Este espacio no está disponible en todos los modelos).

Frente a la encimera de la cocina hay dos grandes armarios. En uno se puede acomodar un horno o microondas, y debajo la lavadora/secadora. El otro armario puede servir para la ropa, aspiradora, etc. En una de las casas Ynez fabricadas, el cliente pidió una pequeña encimera con ventana, dejando armarios arriba y abajo.

Fotos de la minicasa Ynez

altillo y cocina casa de madera Ynez loft y entrada minicasa Ynez

Puede que exista más información sobre la casa de madera Ynez en el sitio web del constructor: Oregon Cottage.

Adfer Dazne
Arquitecto español fundador de IS-ARQuitectura en 2006. Es autor de miles de artículos en los que se han analizado obras de numerosos profesionales de la arquitectura y el diseño.

DEJA UNA RESPUESTA

Los datos de carácter personal proporcionados en este formulario serán tratados por Fermín Gómez, como responsable de esta web. La finalidad es añadir dicho comentario al artículo. La legitimación es tu consentimiento. Destino: los datos facilitados quedan guardados en nuestro servidor, y no son compartidos con terceros. Derechos: Podrás ejercer tus derechos de acceso, rectificación, limitación, y suprimir los datos en info@IS-ARQuitectura.com, así como el derecho a presentar una reclamación ante una autoridad de control. Hay información adicional y detallada en nuestra Política de Privacidad.

Por favor ingrese su comentario!
Por favor ingrese su nombre aquí

He leído y acepto la política de privacidad de este blog. *

[Todos los comentarios son moderados, ten paciencia, el tuyo se publicará pronto!]