Yngsjö House: cuando la arquitectura escandinava decide no fingir

0
3

Yngsjö House: casa aislada moderna en Suecia con arquitectura escandinava de precisión

Entre los pinares de Yngsjö, junto al mar Báltico, se levanta una vivienda que parece sencilla, pero no lo es. Diseñada para una familia sueca que reside en Londres, la casa responde a una idea clara: crear una vivienda unifamiliar contemporánea perfectamente integrada en la naturaleza, sin perder funcionalidad cotidiana. De ese deseo nació una casa aparentemente sencilla, de una sola planta, que interpreta el paisaje con buena precisión. La Yngsjö House es la prueba de que la arquitectura más discreta puede ser la más inteligente.

moderna casa en Yngsjo (Suecia)

Una vivienda unifamiliar que posa con calma sobre el terreno

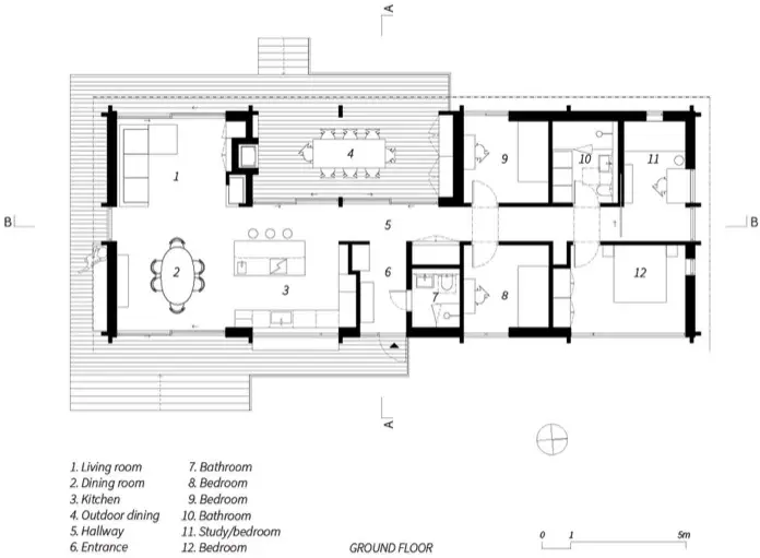
A primera vista, el plano parece una broma: un rectángulo. Pero su organización interna es todo menos banal. La entrada divide la casa en dos zonas claras: al sur, la vida diaria; al norte, el descanso.

La parte social, en forma de “L”, reúne salón, comedor, y cocina en continuidad visual con el bosque. Unas puertas correderas se abren hacia una terraza que mira al oeste, pensada para esas cenas que pueden durar hasta la madrugada.

Pero este orden, sin embargo, tiene grietas. Los dormitorios (8 y 9 en el plano) apenas dejan espacio para armarios, ni libertad de mobiliario. Solo hay una manera de colocar la cama, porque la ventana es de suelo a techo. El tercer dormitorio se ha convertido en un estudio con una cama que funciona principalmente de sofá. Solo el dormitorio principal se libra del problema, pues sí tiene armario empotrado. Hay que tener en cuenta que el cuarto de baño se comparte, e incluye lavadora y secadora. Un pequeño aseo con ducha, junto a la entrada, rescata el equilibrio. Con esta organización, se trata de una casa honesta: funcional, luminosa y sin pretensiones de grandeza.

Plano de planta de casa moderna en Yngsjö.

Arquitectura en el bosque, con luces y sombras

El secreto de su ligereza está en la estructura metálica, que mantiene elevada la mitad norte. Se hizo así para protegerse de subidas importantes de las mareas. Los dormitorios parecen flotar sobre el terreno, sostenidos por pilares delgados que evitan modificar el perfil natural. Pero esta solución, vista desde abajo, es menos poética: un espacio oscuro y desaprovechado. Eso sí, en conjunto, la Casa Yngsjö se posa sobre el paisaje con bastante respeto.

El revestimiento de alerce siberiano, intercalado con pilastras verticales, da ritmo y textura. En el interior, el roble domina suelos, puertas y carpinterías, generando una continuidad visual impecable. El aislamiento, diseñado para soportar inviernos duros, mantiene los techos esbeltos y la estética liviana. Un punto bastante destacable de la Yngsjö House son suslucernarios. Sirven para dar mucha luminosidad al pasillo, y están

alineados con las puertas de las habitaciones. Cada baño dispone de lucernario, evitándose con ello espacios oscuros de día. Solo el aseo sin ventana desentona: es un descuido pequeño pero real en una obra tan afinada.

Sala de estar con madera y luz natural en casa escandinava.

Cocina moderna de madera con luz natural en Yngsjö House.

Casa Yngsjö y su interior de madera y luz natural

Dentro, la coherencia es casi total. La madera lo invade todo, pero sin exceso: los techos revestidos de alerce se prolongan hasta los aleros exteriores, unificando dentro y fuera. La atmósfera se mantiene cálida y serena.

Las cortinas filtran la luz con la misma delicadeza que los paneles exteriores la tamizan. La cocina, completamente de roble, mantiene el orden visual con una campana integrada en la placa. Este detalle prioriza el silencio y la limpieza visual sobre la potencia.

Los muebles son ligeros, casi tímidos. Solo las estanterías restan algo de interés, pues se repiten en cada espacio. Pero el conjunto funciona: la casa es tranquila, sobria, y profundamente escandinava.

Algo de la serenidad de la Casa Yngsjö se encuentra en la Casa Tumle, otra obra sueca que demuestra cómo la sencillez puede ser otra forma de sofisticación. Ambas viviendas muestran el modo en que la arquitectura escandinava entiende el aislamiento no como distancia, sino como equilibrio.

La Yngsjö House demuestra que una vivienda aislada no necesita grandeza para destacar, Su fuerza está en el control: materiales honestos, buena decoración, y una relación madura con el paisaje.

Casa moderna de madera entre pinos en Yngsjö.

El proyecto lleva la firma del estudio Johan Sundberg Arkitektur, que aquí logra una arquitectura contenida, silenciosa y perfectamente afinada.

Reseña
Fachada
7.4
Organización
8.5
Diseño interior
9.0
Sostenibilidad
5.0
Calidad de ejecución
9.0
Adfer Dazne
Arquitecto español fundador de IS-ARQuitectura en 2006. Es autor de miles de artículos en los que se han analizado obras de numerosos profesionales de la arquitectura y el diseño.
yngsjo-house-Lo mejor- Lo más destacable de este proyecto es que ofrece una vivienda a partir de un diseño sencillo. Lo hace además con un interior muy bien equilibrado, donde la madera y la luz natural cobran protagonismo. La terraza está muy bien equipada para cocinar y almacenar, pues dispone de amplios armarios empotrados. -Lo peor- El esmero con el que se ha cuidado la terraza, a nivel de almacenamiento, es nulo en la mayoría de los dormitorios. Los dormitorios hubieran tenido mejores posibilidades de amueblamiento simplemente ensanchando la vivienda por esa parte. La ventana pequeña que se ha colocado en el estudio podría haber tenido mejor función en el aseo. Esa estantería-escritorio de los dormitorios, parece una tomadura de pelo dentro de una casa con tanto detalle.

DEJA UNA RESPUESTA

Los datos de carácter personal proporcionados en este formulario serán tratados por Fermín Gómez, como responsable de esta web. La finalidad es añadir dicho comentario al artículo. La legitimación es tu consentimiento. Destino: los datos facilitados quedan guardados en nuestro servidor, y no son compartidos con terceros. Derechos: Podrás ejercer tus derechos de acceso, rectificación, limitación, y suprimir los datos en info@IS-ARQuitectura.com, así como el derecho a presentar una reclamación ante una autoridad de control. Hay información adicional y detallada en nuestra Política de Privacidad.

Por favor ingrese su comentario!
Por favor ingrese su nombre aquí

He leído y acepto la política de privacidad de este blog. *

[Todos los comentarios son moderados, ten paciencia, el tuyo se publicará pronto!]