Este post trata sobre una moderna vivienda escandinava, construida en Stavanger, la cuarta ciudad más grande de Noruega. Se la conoce por Villa Hellearmen, y es muy fácil identificarla por su fachada y organización espacial. Es un proyecto residencial que tan solo tiene un dormitorio, y sobre el que hay muy poca información publicada. Por eso tiene aspectos de su diseño un tanto confusos, y que intentaremos despejar con este artículo.
Villa Hellearmen
El diseño de la Villa Hellearmen es compacto, en un volumen con diferente tratamiento de fachada, según la orientación. Es una casa de dos plantas, organizada de una manera poco convencional, con la cocina en el piso superior.
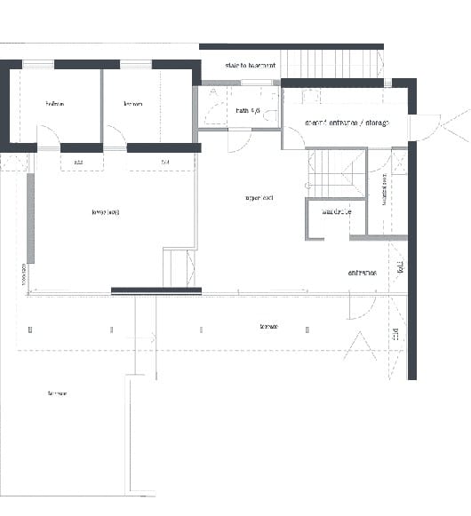
Planta baja
No encontramos motivo aparente que justifique la cocina arriba, a menos que el propietario utilice la planta baja para trabajar. En ese piso existen dos niveles, uno para el vestíbulo, aseo, y cuartos de almacenamiento. En el otro hay una sala, y dos pequeñas habitaciones, siendo difícil adivinar su función. Debido al desnivel de planta baja, la sala principal es la zona con mayor altura libre de toda la vivienda.
A pesar de que el terreno tiene cierto desnivel, los dos puntos de acceso al edificio se hacen por el mismo plano de planta baja (el más alto).
Vemos que la parte inferior de algunas paredes de planta baja presentan un encuentro curvo con el piso. Esta geometría dialoga con el diseño utilizado en la fachada. Posiblemente se haya hecho así para garantizar que en esos paramentos no se coloque mueble alguno.
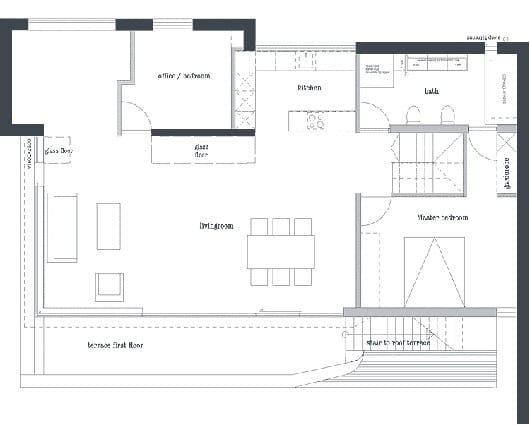
Planta alta
La planta alta de la Villa Hellearmen está organizada con un gran espacio diáfano para el salón-comedor, y cocina. Hay dos habitaciones similares a las que vimos abajo, y que según el vídeo parecen funcionar como biblioteca y estudio. El dormitorio tiene acceso directo al cuarto de baño. Pero ojo, porque en este baño también hay puerta hacia el resto de la casa.
En el vídeo que se incluye se pueden apreciar diferentes detalles interesantes. Algunos de ellos están relacionados con los huecos de vidrio practicados en el forjado. También se aprecia el acabado del baño principal, los amplios huecos acristalados, y por supuesto el mobiliario.
¿Qué utilidad tiene la escalera de la terraza superior? Al menos eso es lo que parece estar dibujado en el plano de planta alta. Esa parte de la Villa Hellearmen tiene que ver con el volumen forrado de madera de la fachada principal. Analizando la siguiente foto, todo parece indicar que efectivamente ahí hay una escalera. Ahora bien, ¿es para subir a la azotea? A partir del minuto 2:00 del vídeo se aprecia que en la cubierta hay una barandilla de vidrio. Por tanto, sí es posible que se trate de una escalera hacia la azotea.

La Villa Hellearmen fue diseñada por el arquitecto noruego Tommie Wilhelmsen.
No me parece casa para vivir. Me parece casa para fotografiar