Vivienda unifamiliar con moderna pérgola

0
267

Una vivienda se disfrutará mucho más si posee una buena ubicación. Colocada en una colina, con vistas a un paisaje sugerente, puede ser un buen punto de partida. La Villa A tiene esa suerte, pues posee unas espectaculares panorámicas a la ciudad austríaca de Linz.

El cliente era un joven empresario que había comprado un terreno de 5.000m2 en la ladera de Pöstlingberg. Deseaba una vivienda unifamiliar grande, de unos 650m2.

Los arquitectos se plantearon el objetivo de integrar el edificio con la topografía del terreno, creando unos límites difusos. También estamos ante una casa en ladera con acabados de lujo, y unas estructuras voladas muy potentes.

Villa A - moderna casa sostenible

Villa A

Por el lado este de la finca hay un bosque de abetos, y por el opuesto uno de árboles de hoja ancha. Las vistas a la ciudad (y jardín) se dan por el lado suroeste; en cambio por el norte la fachada se orienta a la calle de acceso.

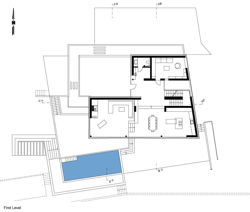
El programa de la Villa A se distribuye en tres plantas, una de ellas en semisótano. Ahí abajo se encuentra el garaje, gimnasio, sala de juegos, instalaciones, y cuarto de invitados. Incluye una terraza hacia el lado sur.

exterior de la Villa A, diseñado por Najjar Najjar Architects

La planta intermedia tiene varios niveles, y unos amplios espacios con las funciones muy bien definidas. La entrada a la Villa A se hace precisamente por este piso, que dispone de un luminoso vestíbulo de doble altura. En esta planta encontraremos un acogedor salón con chimenea, además de una sala de estar más reducida. El comedor está integrado con la cocina, y abierto al salón, que queda cuatro peldaños por abajo.

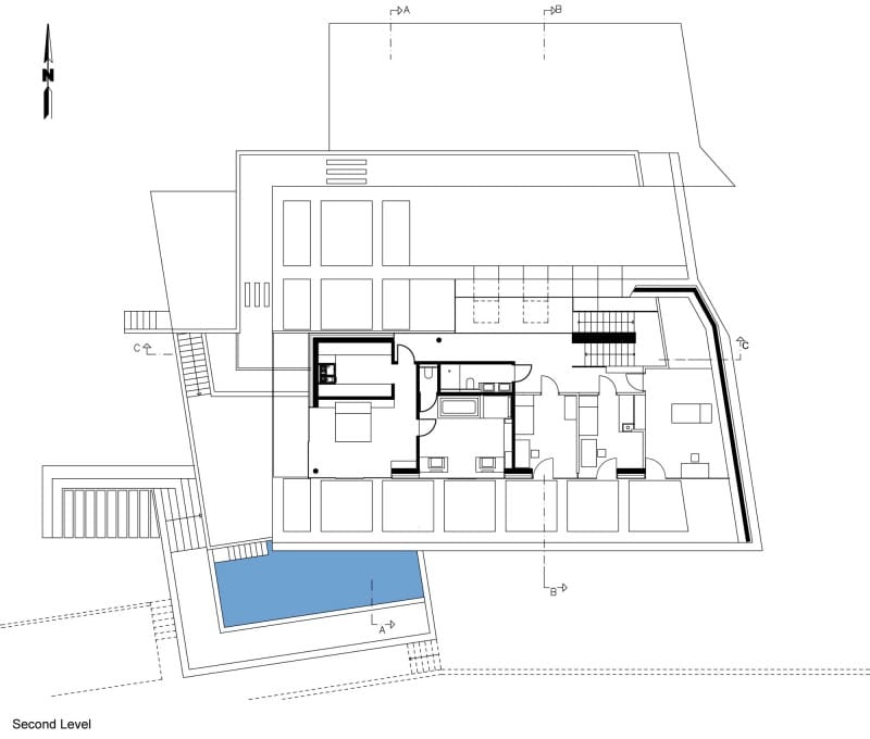
En la planta superior se han organizado todos los dormitorios, y una oficina/estudio. El dormitorio principal dispone de un gran vestidor y cuarto de baño. En cambio los otros dos dormitorios son sencillos, y de tamaño bastante compacto.

El arquitecto no compartió el plano de planta semisótano. Además, hay que tener en cuenta que en el plano de dormitorios no está representado adecuadamente el hueco a doble altura que forma el vestíbulo de la casa. Es mejor fijarse en la siguiente foto para entender adecuadamente ese espacio (y en el plano de sección).

vestibulo doble altura de Villa A

Materiales y acabados

Los acabados son de aplacado de piedra, madera, y de paneles de aluminio en los vuelos. Como era de esperar, toda la fachada sur -con las mejores vistas- está acristalada, pero protegida del sol por una pérgola.

Los arquitectos utilizaron los mismos materiales para el interior y el exterior, con el fin de difuminar los límites. Y no solo eso, porque la piedra travertino se empleó para revestir paredes y suelos. Otra estrategia consistió en utilizar la misma madera del piso del comedor para la terraza exterior. Este detalle de diseño es bien conocido para darle mayor amplitud al espacio de dentro.

Toda la decoración de interiores es bastante moderna, y con una paleta de colores claros. Eso sí, echamos en falta más fotos del interior de la casa.

En el exterior, una piscina rectangular de borde infinito adquiere todo el protagonismo; hay varios bancales, dispuestos según la topografía del terreno.

comedor y terraza de la Villa A

Una casa con características sostenibles

El proyecto para la Villa A se planteó para tener una reducida huella de carbono. Para conseguirlo, se implementaron tanto sistemas activos como pasivos de estrategias climáticas. Los voladizos de cubierta fueron diseñados para permitir que el sol de invierno calentara la vivienda. En verano, protegen la fachada acristalada de la radiación sur.

La zona central de la casa, con techo a doble altura, actúa como una chimenea que ventila los espacios interiores. En este sentido, el lucernario inclinado cumple una función muy importante.

Se añadió también un recuperador de calor en el suelo, suponemos que para calefacción por suelo radiante. Además se instalaron paneles solares en el jardín, que proporcionan parte  de la energía que el edificio necesita.

lado norte de la Villa A, con vistas a Linz (Austria)

La Villa A fue diseñada por el estudio de Najjar & Najjar Architects.

Reseña
Fachada
8.1
Organización
8.4
Diseño interior
9.2
Sostenibilidad
7.8
Calidad de ejecución
9.9
Adfer Dazne
Arquitecto español fundador de IS-ARQuitectura en 2006. Es autor de miles de artículos en los que se han analizado obras de numerosos profesionales de la arquitectura y el diseño.
villa-aVilla A destaca por el impresionante estilo contemporáneo que ofrece en todos sus frentes. Se organiza adaptándose al relieve de la finca, y posee unos espacios interiores impresionantes. Los revestimientos empleados en la casa, tanto por dentro como por fuera, potencian el lenguaje moderno utilizado. Los vuelos perimetrales ayudan a mejorar la respuesta solar pasiva de la vivienda; y la instalación fotovoltaica reduce aún más su huella de carbono. Eso ha provocado que la valoración general del edificio sea sobresaliente. Todo el conjunto está resuelto y ejecutado con gran maestría y profesionalidad. Lo peor: Resulta sorprendente que los dormitorios de esta vivienda sean más pequeños que el cuarto de baño de la suite. Y no solo eso, sino que además tienen que compartir un baño común. En este sentido, el proyecto está desequilibrado, y por tanto distorsiona el buen diseño general de la casa.

DEJA UNA RESPUESTA

Los datos de carácter personal proporcionados en este formulario serán tratados por Fermín Gómez, como responsable de esta web. La finalidad es añadir dicho comentario al artículo. La legitimación es tu consentimiento. Destino: los datos facilitados quedan guardados en nuestro servidor, y no son compartidos con terceros. Derechos: Podrás ejercer tus derechos de acceso, rectificación, limitación, y suprimir los datos en info@IS-ARQuitectura.com, así como el derecho a presentar una reclamación ante una autoridad de control. Hay información adicional y detallada en nuestra Política de Privacidad.

Por favor ingrese su comentario!
Por favor ingrese su nombre aquí

He leído y acepto la política de privacidad de este blog. *

[Todos los comentarios son moderados, ten paciencia, el tuyo se publicará pronto!]