Slit House: moderna vivienda con muros de hormigón

0
254

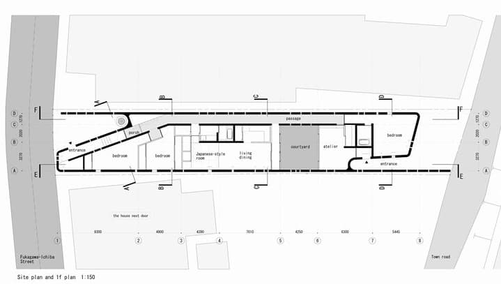
Se podría decir que Slit House es la vivienda de las “mil rendijas”. Se construyó en una antigua ciudad de Japón, dentro de una estrecha y larga parcela que da a dos calles. El terreno tiene unas dimensiones de 50 metros de largo por 7,5m de ancho. A pesar de sus proporciones y ubicación, estamos ante una vivienda aislada. Esto quiere decir que no hay muro medianero en contacto con las construcciones vecinas, solamente unos estrechos pasadizos laterales. Pero lo más impactante de este proyecto son sus muros con hendiduras verticales, que configuran una moderna y rara vivienda de hormigón armado.

muros entrada taller Slit House - Eastern Design Office

Una rara vivienda de hormigón

Esta vivienda es casi toda ella una singularidad, un proyecto de hormigón que desde la calle se percibe como una gran escultura. Pero en cierto modo también es un experimento del arquitecto, que investigó y ofreció una original manera de meter luz natural.

El edificio está construido con muros de hormigón armado de 22 centímetros de espesor. Este elemento estructural va definiendo los límites de la vivienda, de una manera un tanto serpenteante. Sobre esos muros se han dispuesto unas rendijas verticales (algunas inclinadas), que van desde el suelo hasta arriba del todo. En total la vivienda tiene unas 60 ranuras en los muros, que están distribuidas sin ningún patrón. La mayoría de estos huecos están cerrados con vidrio, y aportan luz natural hacia las habitaciones. Otros de ellos simplemente sirven para marcar la estética establecida en el proyecto.

entrada taller Slit House

entrada principal y patio Slit House

Organización

Esta vivienda fue diseñada para una mujer de 80 años de edad, y tan solo tiene una planta. Su programa necesitaba dos dormitorios, un taller, y otra habitación más para huéspedes. Al tener el edificio fachada a calles opuestas, se aprovechó para darle entrada desde cada una. También se dispuso un patio interior, que divide la vivienda en dos zonas. Por cierto, que las únicas ventanas más o menos convencionales están en dicho patio.

Si nos fijamos en el plano de planta, en seguida comprobamos que el muro de hormigón define un largo pasillo interior. Al otro lado hay un gran espacio, que está dividido con elementos más ligeros (tabiques de madera). El salón-comedor es alargado, y está presidido por una mesa central con capacidad para diez personas. En la zona A (ver plano con perspectiva) se han colocado dos dormitorios, mientras que en el lado opuesto nos encontramos con el taller y otro dormitorio anexo. Cada zona tiene su cuarto de baño. Es importante señalar que casi toda la vivienda tiene una distribución muy versátil, ya que permite modificaciones futuras de las particiones.

habitacion japonesa Slit House vistas opuestas pasillo Slit House

Sobre la decoración

Es una lástima que no se hayan publicado más fotos de su interior, porque la estética se acerca bastante al minimalismo. Tampoco tenemos información sobre cocina y baños. Los muros se han dejado tal cual hacia el interior de la vivienda, es decir, de hormigón visto. Esta dureza contrasta con el suelo de madera del pasillo, y otros materiales más blandos de las habitaciones.

Algunas de las rendijas de los muros también se han prologando hacia la cubierta. Esto garantiza que la estancias estén bien iluminadas, incluso con luz cenital. Pero hay que destacar el juego de luces y sombras que se produce en el pasillo, y a diferentes horas del día.

El proyecto de esta rara vivienda de hormigón fue realizado por Eastern Design Office. Fotos de Koichi Torimura.

Reseña
Fachada
8.4
Organización
7.4
Diseño interior
7.8
Sostenibilidad
2.5
Calidad de ejecución
7.6
Adfer Dazne
Arquitecto español fundador de IS-ARQuitectura en 2006. Es autor de miles de artículos en los que se han analizado obras de numerosos profesionales de la arquitectura y el diseño.
rara-vivienda-de-hormigonLo mejor de esta Slit House lo encontraremos en su concepto. Es una rareza de vivienda, de estética bastante radical que está resuelta con destreza. La opción atrevida de colocar rendijas en muros, resultó ser una gran aliada de la privacidad. Esto es de vital importancia en Japón, donde las viviendas se acosan unas a otras. Lo peor: En la organización de este hogar, se han dejado como espacios interiores todas las habitaciones húmedas (baños y cocina). Esto obliga a que su ventilación tenga que ser forzada por sistemas mecánicos. Los espacios exteriores que hay en cada entrada, incluso el patio, no tienen el aspecto de estar acabados. Nos estamos refiriendo sobre todo al plano del suelo. Debido al uso del hormigón en su estructura, esta vivienda tiene una importante huella de carbono, lo cual es una mala noticia de cara a la sostenibilidad.

DEJA UNA RESPUESTA

Los datos de carácter personal proporcionados en este formulario serán tratados por Fermín Gómez, como responsable de esta web. La finalidad es añadir dicho comentario al artículo. La legitimación es tu consentimiento. Destino: los datos facilitados quedan guardados en nuestro servidor, y no son compartidos con terceros. Derechos: Podrás ejercer tus derechos de acceso, rectificación, limitación, y suprimir los datos en info@IS-ARQuitectura.com, así como el derecho a presentar una reclamación ante una autoridad de control. Hay información adicional y detallada en nuestra Política de Privacidad.

Por favor ingrese su comentario!
Por favor ingrese su nombre aquí

He leído y acepto la política de privacidad de este blog. *

[Todos los comentarios son moderados, ten paciencia, el tuyo se publicará pronto!]