Bridge House: casa de lujo formando un puente

0
266

La Bridge House está ubicada en un bello lugar de Kent (Connecticut). Está cerca de las hermosas cascadas del río Housatonic y los puentes históricos de Kent Falls State Park. Precisamente esos puentes fueron utilizados por los arquitectos como base de inspiración para el diseño de esta casa en ladera. Con todos esos componentes, el proyecto derivó en una casa puente que salva la topografía.

exterior Bridge House

Características de la Bridge House

La forma de la Bridge House está definida para que su volumen se extienda a través del paisaje. El espacio principal formado por la sala de estar y el comedor, crea un puente entre dos volúmenes. Está colocado de tal manera que permite que la ladera pase por debajo de él. Es una estructura de madera que se apoya en los monolitos de hormigón por los que discurren las chimeneas. Esas estructuras de hormigón también sirven de soporte a las escaleras.

Bridge House sección render puente

Es importante señalar que estamos ante una casa grande (465m2), pero que solo tiene tres dormitorios. Hay una suite en la planta superior, y dos dormitorios para invitados en el nivel inferior. Todos ellos poseen cuarto de baño propio, lo cual es sorprendente para una casa de vacaciones, porque su programa responde al de una casa de lujo en ladera.

Planta superior

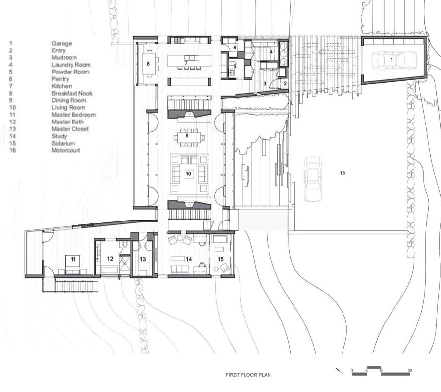
Por la topografía inclinada del terreno, y posición del camino de acceso, la entrada se hace por el nivel superior. A un lado se queda el garaje, y a otro la puerta de entrada a la casa. Una vez dentro, veremos un vestíbulo repleto de armarios empotrados, y al fondo la cocina. En ella hay una mesa de comedor (junto a una ventana), pero al otro lado de la escalera se encuentra el comedor principal. La cocina es amplia, e incluye un mueble isla. En esta zona también aparece una despensa, el aseo, y la lavandería. Atravesando la sala-comedor que forma el puente, llegaremos al dormitorio principal. Junto a él hay una sala de estudio, y un solarium.

Bridge House escaleras cocina

Bridge House salón comedor

Planta inferior

Como ya se ha señalado, en el piso inferior de la casa se han dispuesto otros dos dormitorios. Justo debajo de la cocina se encuentra el primer cuarto de invitados, con cuarto de baño completo y pequeño vestidor. En esta parte hay una gran habitación para las instalaciones.

Justo debajo del puente hay un original espacio al aire libre. Es una especie de porche con cocina, chimenea, y gran pantalla audio-visual.

En el lado opuesto se organiza el segundo dormitorio de huéspedes, que es bastante más pequeño. También hay otro cuarto de instalaciones, un estudio, y un gimnasio.

Fachada y decoración interior

No hay que perderse de este proyecto el uso que se ha hecho de la madera. Destacan los revestimientos exteriores, aplicados en fachada y techos de voladizos. El interior de la casa recibe gran cantidad de luz natural, a través de ventanas, e incluso por arriba. Un ejemplo de ello son los lucernarios colocados en los huecos de escaleras, y la claraboya del aseo de la planta superior. Es una pirámide truncada pintada de rojo.

exterior-puente-Bridge-House

El proyecto de la Bridge House fue realizado por los arquitectos de Joeb Moore & Partners LLC. Fotos de Michael Biondo.

Reseña
Fachada
8.2
Organización
8.9
Diseño interior
7.7
Sostenibilidad
4.0
Calidad de ejecución
9.0
Adfer Dazne
Arquitecto español fundador de IS-ARQuitectura en 2006. Es autor de miles de artículos en los que se han analizado obras de numerosos profesionales de la arquitectura y el diseño.
bridge-houseEste proyecto destaca por la organización y variedad de espacios. La estructura superior que une dos partes de la casa es simplemente una anécdota. Hay una buena jerarquización de funciones, dándole bastante superficie a lo primordial, y ajustando las zonas de servidumbre. Es impresionante el derroche de diseño utilizado en el aseo. Lo peor: Con las casas de lujo casi siempre nos hacemos la misma pregunta: ¿tanta superficie para tan poco dormitorio? La Bridge House no se quedó atrás, y no solo eso, sino que además cada dormitorio está alejado de los otros dos. Aquí la privacidad se llevó al límite. Si bien el comportamiento solar pasivo parece aceptable, el proyecto no ofrece ningunas estrategias sostenibles a destacar.

DEJA UNA RESPUESTA

Los datos de carácter personal proporcionados en este formulario serán tratados por Fermín Gómez, como responsable de esta web. La finalidad es añadir dicho comentario al artículo. La legitimación es tu consentimiento. Destino: los datos facilitados quedan guardados en nuestro servidor, y no son compartidos con terceros. Derechos: Podrás ejercer tus derechos de acceso, rectificación, limitación, y suprimir los datos en info@IS-ARQuitectura.com, así como el derecho a presentar una reclamación ante una autoridad de control. Hay información adicional y detallada en nuestra Política de Privacidad.

Por favor ingrese su comentario!
Por favor ingrese su nombre aquí

He leído y acepto la política de privacidad de este blog. *

[Todos los comentarios son moderados, ten paciencia, el tuyo se publicará pronto!]