Clínica y biblioteca hecha con contenedores marítimos

1
257

Este edificio formado por coloridos contenedores de transporte, está ubicado en Batu (este de Java, Indonesia). Es una ciudad relativamente nueva, pero que está muy arraigada en las actividades agrícolas. El proyecto es conocido por el nombre de Contertainer, que resulta de mezclar los términos “container” (contenedor) y “entertainer” (entretenimiento). Es importante aclarar que en este medio rural la palabra “entretener” tiene un significado más auténtico. Según explican sus autores es “proporcionar una verdadera diversión a gente de clase baja, a gente humilde”. Estas instalaciones simplemente ofrecen un servicio de atención médica, y acceso a lecturas de calidad.

Contertainer

fachada de clínica y biblioteca. Contertainer.

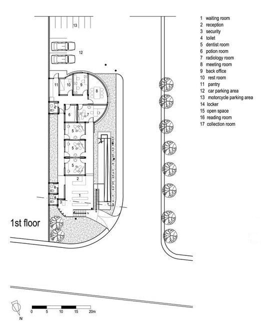
Contertainer es una construcción pública que funciona como policlínica y biblioteca, proporcionando un servicio gratuito a los ciudadanos. En este proyecto los módulos metálicos conviven con otras partes de la estructura, realizadas de una manera convencional. No estamos por tanto ante una arquitectura container tan radical como la del edificio Platoon Kunsthalle.

Los contenedores solamente ocupan las plantas superiores, y están dispuestos en voladizo. En el piso intermedio se han utilizado módulos container para archivo, oficinas, y sala de lectura. La última planta se ha hecho íntegramente juntando contenedores. Por un lado hay una sala de lectura rectangular, y atravesando una galería se llega a otra más cuadrada.

Un tema interesante de Contertainer es que los contenedores están soportados por apoyos metálicos inclinados. Esto hace que se distingan bastante del resto del edificio, a la vez que le aporta singularidad.

exterior de la clínica-biblioteca Contertainer

Los módulos container reciclados tuvieron que ser modificados para abrirles huecos, aislarlos, y darles un acabado liso interior. En este sentido, el trabajo se parece bastante al de la cafetería View Tube.

Este edificio no oculta en ningún momento a los contenedores ISO utilizados para crear determinados espacios. Aquí se sigue un procedimiento similar cuando se empleó un contenedor como oficina; o el utilizado para las casas 2×4 Zigloo.  Esta vez se hace pintándolos de llamativos colores, y manteniendo su aspecto corrugado original. Pero hay quien opina que proceder de esta manera es degradar la arquitectura, y que habría que ir a soluciones más elaboradas. En este sentido, las viviendas plurifamiliares con contenedores diseñadas por Group41 podrían ser un buen referente.

cínica construida con contenedores de carga en Indonesia (Batu)

La visión de los autores

Contertainer es un trabajo de dpavilion architects, al que sus autores quisieron darle cierta “carga política”. Relacionado con este proyecto, llegaron a comentar lo siguiente:

En la década de los años ’60, Rendra, una figura literaria indonesia, nos recordó que “en nuestro país, las ciudades crecen como distribuidores de productos extranjeros”. Este Contertainer parece encarnar dichas críticas. Los productos extranjeros que inundan Indonesia se cargan en decenas de miles de contenedores. Aparte de entretener a la gente de clase baja, Contertainer hace alusión a: «no hagas a nuestras ciudades distribuidoras de productos extranjeros. ¡Basta! ¡Usemos los contenedores como piezas arquitectónicas!»

No se entiende muy bien que en un mundo tan globalizado se le tenga tanta fobia a lo que venga del exterior, pero nos pareció interesante añadir ese último párrafo.

Fotos de Ganny Gozaly.

Adfer Dazne
Arquitecto español fundador de IS-ARQuitectura en 2006. Es autor de miles de artículos en los que se han analizado obras de numerosos profesionales de la arquitectura y el diseño.

1 COMENTARIO

  1. Cada vez está más claro que este tipo de construcción es el futuro. Creo que estamos ante la evolución de la construcción. No dejan de sorprenderme los diseños con contenedores.
    El ultimo que había visto fabricado por la empresa hometainer es una pasada.
    Deberíamos plantearnos seriamente modificar los sistemas de construcción en muchos casos.
    Seguiré atento!!

DEJA UNA RESPUESTA

Los datos de carácter personal proporcionados en este formulario serán tratados por Fermín Gómez, como responsable de esta web. La finalidad es añadir dicho comentario al artículo. La legitimación es tu consentimiento. Destino: los datos facilitados quedan guardados en nuestro servidor, y no son compartidos con terceros. Derechos: Podrás ejercer tus derechos de acceso, rectificación, limitación, y suprimir los datos en info@IS-ARQuitectura.com, así como el derecho a presentar una reclamación ante una autoridad de control. Hay información adicional y detallada en nuestra Política de Privacidad.

Por favor ingrese su comentario!
Por favor ingrese su nombre aquí

He leído y acepto la política de privacidad de este blog. *

[Todos los comentarios son moderados, ten paciencia, el tuyo se publicará pronto!]