Casa Sonoma weeHouse: elegancia y sencillez en una vivienda prefabricada

0
179

La casa Sonoma weeHouse es un valioso ejemplo de construcción prefabricada. Demuestra cómo arquitectura moderna e industrialización pueden combinarse con elegancia y sencillez en un solo espacio. Situada en el hermoso condado de Sonoma (California), esta vivienda se ha convertido en un referente del diseño contemporáneo y la construcción modular.

Diseño y Arquitectura en la Sonoma weeHouse

La filosofía detrás de esta casa se basa en la simplicidad y la conexión con la naturaleza que la rodea. La casa consta de dos módulos prefabricados que se ensamblan en el lugar. De esa manera se minimiza el impacto en el entorno y acelera el proceso de construcción. Uno de los aspectos más notables del diseño es su fachada de vidrio que se extiende a lo largo de la estructura. Eso permite una abundante entrada de luz natural y una conexión visual con el paisaje circundante. El exterior de la casa está revestido de madera oscura, creando un contraste con el interior luminoso y aireado.

voladizo Sonoma weeHouse

Interior y Distribución

El interior de la Casa Sonoma weeHouse sigue la misma estética de sencillez y funcionalidad. Los espacios están diseñados de manera abierta y fluida, con una sala de estar, comedor, y cocina integrados en un solo espacio. Los acabados son limpios y modernos, con materiales naturales como madera y hormigón pulido, que añaden calidez a la atmósfera.

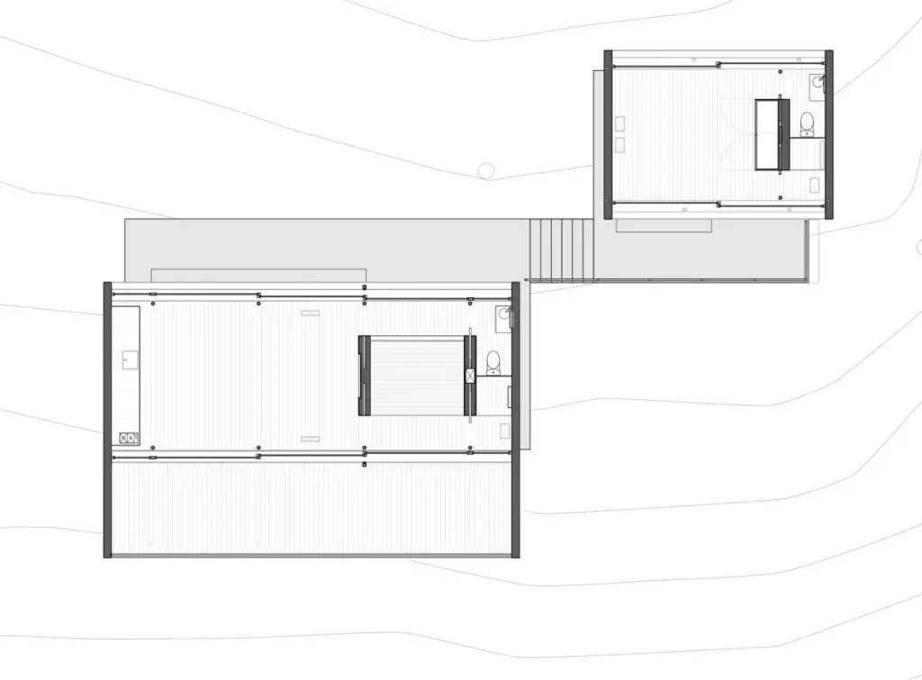
La casa cuenta con dos dormitorios y dos baños, lo que la hace adecuada tanto para parejas como familias pequeñas. Los dormitorios son acogedores y luminosos, con grandes ventanas que enmarcan las vistas al exterior. Uno de ellos es una especie de sub-módulo, dentro del módulo mayor. Se encuentra al otro lado de la TV, y puede quedar aislado del resto gracias a unas puertas deslizantes. Estos detalles se pueden apreciar en el plano de planta de la casa.

modulos prefabricados Sonoma weeHouse

sala casa prefabricada en Sonoma

Sostenibilidad y Eficiencia Energética

Uno de los aspectos más notables de la Casa Sonoma weeHouse es su enfoque en la sostenibilidad y la eficiencia energética. El diseño aprovecha al máximo la luz natural y la ventilación cruzada para reducir la dependencia de la iluminación artificial y el aire acondicionado. Además, se han utilizado materiales sostenibles en la construcción, como madera certificada FSC y sistemas de energía solar.

La Casa Sonoma weeHouse es un testimonio de cómo la construcción prefabricada puede combinar diseño contemporáneo, sencillez y sostenibilidad en un solo paquete. Su estética moderna se fusiona perfectamente con el entorno natural de Sonoma, creando un refugio sereno y elegante. Esta casa demuestra que la vivienda prefabricada no significa comprometer el estilo o la calidad. Y desde luego puede ser una elección inteligente para quienes buscan un hogar moderno y eficiente.

submodulo dormitorio Sonoma weeHouse

El diseño de la Casa Sonoma weeHouse es obra del arquitecto Geoffrey Warner de Alchemy Architects. Se trata de una firma conocida por sus casas prefabricadas modernas y sostenibles.

Adfer Dazne
Arquitecto español fundador de IS-ARQuitectura en 2006. Es autor de miles de artículos en los que se han analizado obras de numerosos profesionales de la arquitectura y el diseño.

DEJA UNA RESPUESTA

Los datos de carácter personal proporcionados en este formulario serán tratados por Fermín Gómez, como responsable de esta web. La finalidad es añadir dicho comentario al artículo. La legitimación es tu consentimiento. Destino: los datos facilitados quedan guardados en nuestro servidor, y no son compartidos con terceros. Derechos: Podrás ejercer tus derechos de acceso, rectificación, limitación, y suprimir los datos en info@IS-ARQuitectura.com, así como el derecho a presentar una reclamación ante una autoridad de control. Hay información adicional y detallada en nuestra Política de Privacidad.

Por favor ingrese su comentario!
Por favor ingrese su nombre aquí

He leído y acepto la política de privacidad de este blog. *

[Todos los comentarios son moderados, ten paciencia, el tuyo se publicará pronto!]