Modelo EV16 de LABHaus: prefabricada de lujo

0
207

Al modelo EV46 que la firma de casas prefabricadas modulares LABhaus sacara hace un tiempo, se le sumaron otros dos tipos de viviendas. Es posible hacerse con una de estas eco casas de lujo a partir de 194.000€. Eso es lo que costaba el modelo más pequeño, conocido por EV16. Este diseño entra dentro de la línea que el fabricante denomina EcoVilla. Es una casa amigable con el medio ambiente, equipada con electrodomésticos Energy Star, y preparada para obtener certificación ecológica LEED. Está ejecutada con acabados de lujo, tanto en sus materiales como en los electrodomésticos y sanitarios instalados. Cuenta además con amplias opciones de personalización. Algunos elementos de energías renovables son opcionales, y sorprende además por su rápida entrega, al ser modular su proceso de fabricación.

eco casas LabHaus

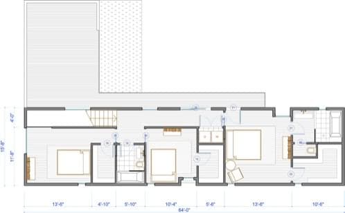
LABHaus diseñó el modelo inferior EV16 con 225m2 de superficie, con un amplio garaje de 39m2. Pero sospechamos (según representación de la escalera en planta baja) que hay algo más en un sótano. El ancho del módulo principal alcanza los 4.8m, suficiente para alojar el programa tanto en las zonas más vivideras de la planta baja, como arriba en los dormitorios. Es precisamente en la planta de dormitorios donde esta casa prefabricada demuestra su grandeza. Tiene habitaciones amplias, con vestidor, siguiendo una organización perfecta.

casas LABHaus

plano planta baja Labhaus EV16

plano planta alta Labhaus EV16

Puede haber más información en la web original de LABHaus.

Adfer Dazne
Arquitecto español fundador de IS-ARQuitectura en 2006. Es autor de miles de artículos en los que se han analizado obras de numerosos profesionales de la arquitectura y el diseño.

DEJA UNA RESPUESTA

Los datos de carácter personal proporcionados en este formulario serán tratados por Fermín Gómez, como responsable de esta web. La finalidad es añadir dicho comentario al artículo. La legitimación es tu consentimiento. Destino: los datos facilitados quedan guardados en nuestro servidor, y no son compartidos con terceros. Derechos: Podrás ejercer tus derechos de acceso, rectificación, limitación, y suprimir los datos en info@IS-ARQuitectura.com, así como el derecho a presentar una reclamación ante una autoridad de control. Hay información adicional y detallada en nuestra Política de Privacidad.

Por favor ingrese su comentario!
Por favor ingrese su nombre aquí

He leído y acepto la política de privacidad de este blog. *

[Todos los comentarios son moderados, ten paciencia, el tuyo se publicará pronto!]