Mini casa sobre ruedas

2
261

La compañía Oregon Cottage se dedica a diseñar y construir pequeños bungalows móviles de madera. Están hechos a medida, y según las necesidades del cliente, ya sea para funcionar como hogares, oficinas, talleres, etc. Estas imágenes corresponden a la mini casa ALSEK, que tiene un estilo clásico pero con un diseño atípico. Es un modelo enfocado a clientes que desean una construcción de bajo coste, con mucha luz, y sin terminar del todo. Esto permite que luego el propietario la pueda personalizar a su gusto.

Alsek casa movil sobre remolque

Alsek

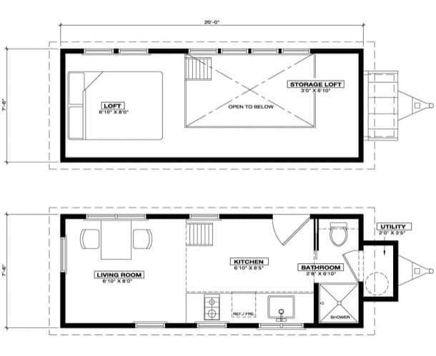
La mini casa sobre ruedas Alsek tiene muchas ventanas, y presenta una solución de cubierta de un solo faldón. Ese tejado tiene la inclinación suficiente para que debajo existan espacios de altillo, uno de ellos para dormir. Estos bungalows de madera suelen tener un porche en la entrada, pero en la casa Alsek se suprimió. Tal modificación se hizo para darle mayor amplitud al espacio interior. Con la idea de reducir su precio, se decidió colocar ventanas de vinilo en vez de madera. La puerta holandesa de entrada es de madera, pero reutilizada de otra obra.

construcción casa Alsek copy

Todas las instalaciones (gas, agua, desagües) están completadas, pero se ha dejado que el cliente coloque aparatos a su gusto. En el interior también están sin definir los encuentros con las ventanas, puerta, zócalos, y altillo. El exterior está pintado de un color uniforme, para que más tarde se pueda personalizar. Con esta estrategia se logró mantener el coste de la casa por debajo de los $24.500.

plano mini casa Alsek

La mini casa Alsek es una creación del constructor: Todd Miller Architecture. Es un arquitecto de Oregon que está especializado en crear hogares naturales y sostenibles. Este profesional hace un especial hincapié en el diseño solar pasivo, pero bajo la firma Oregon Cottage Co., que construye casas diminutas de madera, montadas en remolques.

Adfer Dazne
Arquitecto español fundador de IS-ARQuitectura en 2006. Es autor de miles de artículos en los que se han analizado obras de numerosos profesionales de la arquitectura y el diseño.

2 COMENTARIOS

  1. Saludos.

    ¿No crees que se les ha ido un poco la mano en el precio?

    24.500 dólares es un buen pellizco, ¿no?

    Lo dicho saludos a todos y buen día.

DEJA UNA RESPUESTA

Los datos de carácter personal proporcionados en este formulario serán tratados por Fermín Gómez, como responsable de esta web. La finalidad es añadir dicho comentario al artículo. La legitimación es tu consentimiento. Destino: los datos facilitados quedan guardados en nuestro servidor, y no son compartidos con terceros. Derechos: Podrás ejercer tus derechos de acceso, rectificación, limitación, y suprimir los datos en info@IS-ARQuitectura.com, así como el derecho a presentar una reclamación ante una autoridad de control. Hay información adicional y detallada en nuestra Política de Privacidad.

Por favor ingrese su comentario!
Por favor ingrese su nombre aquí

He leído y acepto la política de privacidad de este blog. *

[Todos los comentarios son moderados, ten paciencia, el tuyo se publicará pronto!]