La Casa del Huerto está en el Sebastopol del Condado de Sonoma, (California). La construcción ocupa una superficie de 418 metros cuadrados, dentro de un huerto de manzanos. Es una vivienda de una planta completamente adaptada al sitio, y lista para utilizarse en silla de ruedas. La ejecución de la Orchard House se planteó para mantener un mínimo coste de construcción. Eso se logró empleando elementos estandarizados modulares, como se explicará más adelante.
Orchard House
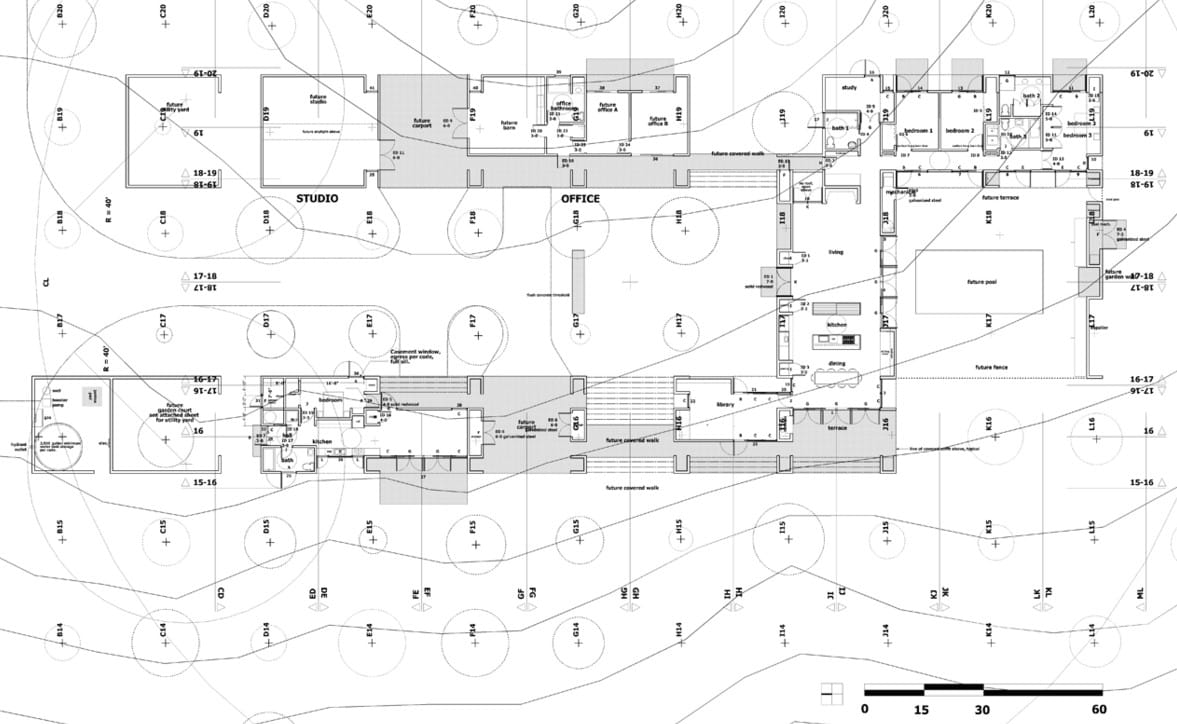
El proyecto para la Orchard House está planteado respetando escrupulosamente la trama ortogonal de los árboles frutales. Se organiza mediante una sucesión de patios y largas galerías al aire libre, permitiendo recorridos diagonales en el exterior. Con esta disposición, sería un error pensar que la casa se encuentra disgregada en el sitio. En realidad, las estancias principales se organizan siguiendo una “L”, en torno a un patio casi cuadrado. En cambio la oficina, un estudio, y otras dependencias, son las que se extienden hacia el patio alargado.
Desafortunadamente el plano de planta publicado no ofrece información suficiente para analizar con detalle la organización de la Orchard House. Vemos que entre los dos patios se ubica el espacio principal de la vivienda. Es una gran sala con la cocina en un extremo, definida por dos islas. Una de ellas está hecha con elementos de hormigón, y la otra isla es un gran tablero rústico de madera sobre caballetes metálicos. El resto de este espacio funciona de sala de estar, con una chimenea empotrada en uno de los muros.
Hay dos dormitorios casi simétricos, con armario empotrado. La habitación principal tiene un armario grande, y cuarto de baño propio.
Otras dependencias
También se aprecia en el plano un pequeño estudio, y más allá de la cocina una biblioteca. Como ya se ha mencionado, el estudio principal y la oficina se encuentran en uno de los volúmenes que definen el patio rectangular. Están en el lado este de la Orchard House, mientras que en el lado oeste se aprecia una vivienda para huéspedes. Es un concepto similar al que vimos en la moderna casa Dixon. El resto son espacios que quedan por definir para un futuro, al igual que la piscina prevista en el patio cuadrado.


Estructura y materiales
El edificio que compone la Casa del Huerto tiene una volumetría bastante horizontal, pues tan solo posee un piso. Su estructura está hecha principalmente de muros de hormigón armado, moldeados con encofrados de madera. Estos elementos se repiten y aprovechan en diferentes partes de la casa, aportándole una apariencia bastante homogénea al conjunto. Tanto dentro como fuera de la vivienda, aparecen superficies de hormigón visto. El resto de las paredes están revestidas con paneles de yeso, al igual que los techos.
El suelo es de hormigón pulido, e incluye una instalación de calefacción por suelo radiante. Los frentes de armarios se hicieron con madera contrachapada de abeto, y la carpintería de ventanas y puertas exteriores es de acero.
Junto a los muros de hormigón, se utilizó un sistema prefabricado de paneles sándwich, también conocidos como paneles SIP. Algunas partes de la fachada están acabadas con chapa de acero galvanizado. En la sala principal se instalaron cristaleras con puertas abatibles.
El proyecto para la Orchard House fue realizado por el estudio de Anderson Anderson Architecture. Esta obra recibió premios de la AIA California, en el 2005 y 2006. Fotografías de Anthony Vizzari.