Boko & Deko: casa japonesa poco convencional

0
236

Es probable que la casa Boko & Deko no se parezca a casi nada de lo que hayas visto antes. Se diseñó respetando las exigencias de los clientes, que deseaban un hogar adaptado a su estilo de vida. Además, tampoco querían que las funciones estuvieran delimitadas por muebles. La forma dada por los arquitectos a ese encargo fue el de un moderno y extraño hogar japonés, nada convencional.

casa japonesa Boko Deko

En un entorno urbano agobiante

El proyecto de esta casa se ubica en la esquina de una zona residencial muy densa de Japón. Tiene una construcción vecina por el lado este, y el estudio del cliente al otro lado de la calle. Por ese motivo se decidió aislar el edificio de cualquier perturbación exterior por esos dos frentes. Para ello se crearon unos muros insonorizados que también funcionan como soportes de la estructura, y que incluyen multitud de armarios. Con esta disposición, la casa se organiza en un recinto rectangular, entre dos muros. Por lo tanto, se abre hacia el exterior por las fachadas sur y norte.

interior casa Boko Deko

Organización del programa

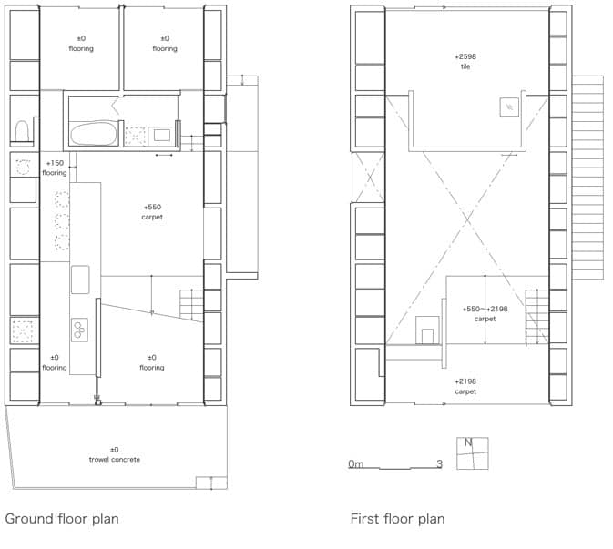
A pesar de que la casa japonesa Boko & Deko tiene espacios en una planta alta, no la podemos considerar estrictamente como una casa de dos pisos. Los espacios situados arriba no poseen demasiada privacidad, pues cada uno de ellos funciona como una extensión superior de la parte central de la casa: una sala cuyo piso enmoquetado termina curvándose. Desde el altillo del lado sur (+2.2m) podremos deslizarnos por una especie de tobogán (también con moqueta), o bajar por una escalera. Si se hace por el lado norte (+2.60m), hay una escalerilla vertical (muy típico de los nipones).

sala extraño hogar japonés Boko Deko

En la planta baja  se sitúa el cuarto de baño. Pero también en la batería de armarios hay un pequeño cuarto con inodoro, y otro con una ducha. Dos dormitorios están orientados al norte, y en el lado sur hay otra habitación. Esos tres espacios son los únicos con privacidad en este extraño hogar japonés. La cocina está configurada como una pieza lineal que inicia en la entrada, y cuya encimera cumple también la función de mesa de comedor. No todos estos espacios están al mismo nivel, pues una zona de la cocina está 15 cm por encima. La “sala verde” está a 55 cm, con una altura apropiada para sentarse a comer alrededor de la mesa de la cocina.

Más imágenes de este extraño hogar japonés

El proyecto de este extraño hogar japonés fue realizado por el estudio de arquitectos Mitsuharu Kojima.

Reseña
Fachada
7.4
Organización
6.6
Diseño interior
7.7
Sostenibilidad
2.5
Calidad de ejecución
9.1
Adfer Dazne
Arquitecto español fundador de IS-ARQuitectura en 2006. Es autor de miles de artículos en los que se han analizado obras de numerosos profesionales de la arquitectura y el diseño.
extrano-hogar-japonesEstá claro, esta casa debe ser una gozada para una joven familia con niños pequeños. Esa sala con el piso curvo es uno de los espacios más originales (y atrevidos) que hayamos visto jamás en un proyecto residencial. Los arquitectos supieron adaptar un programa de tres habitaciones en un espacio ajustado, y además satisfaciendo las difíciles exigencias del cliente. El interior, y la ejecución de toda la obra, es de bastante calidad. Lo peor: Los problemas de una casa así vendrán con el paso de los años ¿Qué ocurrirá cuando los hijos sean mayores? (Cuando ya no vivan con los padres). Tampoco es un diseño que sea fácil vender a otros clientes, pues es demasiado exclusivo. No hemos visto protección de la radiación solar en la fachada sur, pues está demasiado expuesta. Las ganancias en verano deben ser brutales. Tampoco el arquitecto ha especificado nada relacionado con la sostenibilidad, de ahí nuestra baja valoración en ese apartado.

DEJA UNA RESPUESTA

Los datos de carácter personal proporcionados en este formulario serán tratados por Fermín Gómez, como responsable de esta web. La finalidad es añadir dicho comentario al artículo. La legitimación es tu consentimiento. Destino: los datos facilitados quedan guardados en nuestro servidor, y no son compartidos con terceros. Derechos: Podrás ejercer tus derechos de acceso, rectificación, limitación, y suprimir los datos en info@IS-ARQuitectura.com, así como el derecho a presentar una reclamación ante una autoridad de control. Hay información adicional y detallada en nuestra Política de Privacidad.

Por favor ingrese su comentario!
Por favor ingrese su nombre aquí

He leído y acepto la política de privacidad de este blog. *

[Todos los comentarios son moderados, ten paciencia, el tuyo se publicará pronto!]