La Tumle House es un moderno diseño escandinavo de vivienda unifamiliar aislada llevado a “los extremos”. Algunos de nuestros comentarios no serán muy positivos, pero hay que comprender que también de lo menos bueno se aprende. Aún así la Casa Tumle se merece un hueco en nuestro blog, porque tiene calidad suficiente para ello.
Casa Tumle
La Casa Tumle se construyó cerca de Gotemburgo (Suecia), en una hermosa zona residencial. Está ubicada sobre una colina rocosa, y tiene buenas vistas hacia el Mar del Norte. El edificio es compacto, rotundo en las formas y en el color, buscando en todo momento un fuerte contraste.
El edificio tiene dos plantas, y alcanza una superficie de 168m2. Pero esos metros no están muy bien aprovechados, debido a la forma poligonal del edificio. Eso en una obra más grande no es problema, pues en situaciones más complicadas hemos visto viviendas resueltas con destreza. Un perfecto ejemplo de esto último es la maravillosa casa heptagonal Pittman Dowell.
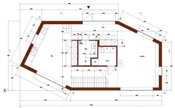
Planta baja
La vivienda se adapta a la topografía del terreno, por eso encontramos unos desniveles en la planta baja, y una escalinata incómoda. Decimos “incómoda” por la relación entre la altura de tabicas y la distancia entre ellas. De esta manera se tiene que la sala de estar se sitúa más elevada que la cocina. Entre ambas hay un núcleo central con el cuarto de baño, lavadero, y armarios. Los desplazamientos en la planta baja se pueden hacer por cualquier lado de dicho núcleo, rodeándolo.
Las ventanas tienden a ser cuadradas, salvo las más grandes, que además arrancan desde el piso. En la cocina hay una pared de armarios, donde se ha encajado el horno. El resto son muebles bajos, llamando la atención la ausencia de una pared revestida de algún material fácil de limpiar. En la sala de estar hay un estufa, y una librería blanca que ocupa toda la pared.
El piso de hormigón pulido tiene una gran inercia térmica. Unido a las grandes ventanas, ayudará a que la casa se caliente en invierno de manera pasiva. Puede que en el verano eso sea un problema, porque no hay protecciones en las ventanas.

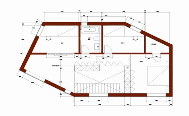
Planta alta
Subiendo por la escalera se llega a una sala que, debido a la geometría del edificio, se va estrechando. Esto hace que sea complicado de definir su uso con el mobiliario. En esta planta superior hay 3 dormitorios, dos de ellos individuales, pero ninguno tiene baño. Y es que el cuarto de baño es compartido, porque el pequeño cuarto del dormitorio principal no parece que sea un aseo.
Hay armarios junto al hueco de la escalera, proporcionando el espacio de almacenamiento que no cabe en los dormitorios pequeños.
Al igual que la planta baja, el piso superior también está pintado de blanco. Se mantiene el mismo criterio con los armarios, y lo mismo ocurre con las carpinterías de las ventanas: en negro.
La Casa Tumle es un proyecto de Johannes Norlander Arkitektur. Fotos de Norlander Rasmus.