Casa con inquietante fachada inclinada

1
381

La Casa Aresta es un original proyecto, surgido de la adaptación que hizo el arquitecto al lugar y climatología. Es una casa con fachada inclinada, resuelta en tres plantas, y que lógicamente deja en su interior espacios poco convencionales.

Casa Aresta

Esta casa está construida en un barrio residencial, en la periferia de Brasilia. Su fachada principal está orientada al oeste, y tiene una estupenda vista hacia el valle. Pero pronto el arquitecto se dio cuenta que esto suponía un handicap: en este lugar las temperaturas son suaves por la mañana, pero muy altas por la tarde.

exterior de la Casa Aresta, con su impresionante fachada inclinada

¿Por qué una casa con fachada inclinada?

De lo anterior se deduce que para disfrutar de la panorámica hacia el valle, había que evitar la radiación directa solar. También había que considerar que las habitaciones principales debían mantener las vistas hacia el oeste. Por tanto, se necesitaba de una protección solar, especialmente durante ciertas horas del día. La solución elegida para la Casa Aresta fue drástica: grandes huecos, y utilizar la geometría del edificio para que proyectara sombras que protegieran los espacio interiores.

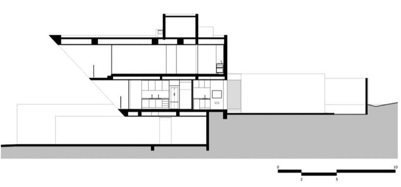
Esto se logró avanzando las plantas superiores hacia el oeste, pero no de manera escalonada, sino dejando una fachada inclinada. El ángulo elegido se corresponde con la inclinación media del sol entre las 15h30 y las 16 horas. No fue una elección arbitraria, ya que durante ese tiempo se dan las temperaturas más altas. Con esta solución, el sol de la tarde solo castiga la fachada cuando está bajo, y hace menos calor.

balcones de la fachada inclinada en la Casa Aresta

Organización

Esta vivienda unifamiliar aislada tiene tres plantas. La inferior está destinada a garaje, pero está situada a nivel de calle. Es decir, que no hay sótano. Si nos fijamos en los planos de sección, comprobaremos que la parcela está en pendiente. Por consiguiente, esta disposición provoca que el patio trasero esté en la planta primera.

Planta baja

Este nivel es bien simple, pues queda un espacio cubierto para aparcar un par de vehículos. Hay un cuarto de instalaciones, y la entrada hacia la escalera de la casa. Una puerta bajo la escalera comunica con un pequeño trastero. La tapia blanca que separa el acceso rodado del peatonal, aparentemente no tiene ninguna utilidad.

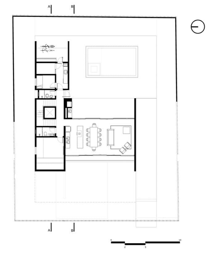
Planta primera

Este nivel de la Casa Aresta está organizado siguiendo una “L”. A ambos lados de la escalera hay un aseo con ducha. El ala que ventila a la calle está ocupada por la sala principal, que organiza la cocina, comedor y salón. También hay una extraña habitación para TV, con un pequeño graderío que aprovecha la geometría de la fachada inclinada.

La sala principal está doblemente acristalada: hacia la calle, y hacia el patio trasero. Esto hace que funcione como un espacio transparente, pues desde la terraza de la piscina se puede ver el valle.

Ventilando hacia el norte, está la habitación para el servicio doméstico. En esta zona de la casa también se ha ubicado el lavadero, y un cuarto trasero para bicicletas. Parte de la terraza de la piscina está protegida por la planta superior. Este espacio se ha dotado de una pequeña cocina para las comidas al aire libre.

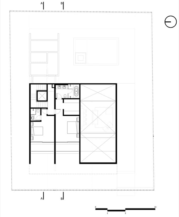
Planta segunda

La escalera termina en la segunda planta, en un pequeño vestíbulo. En un extremo encontraremos dos puertas enfrentadas, una a cada dormitorio. El dormitorio principal dispone de un vestidor, y un cuarto de baño completo: con bañera y doble ducha. El otro dormitorio también tiene baño, pero con ducha. Ambas habitaciones poseen fachada acristalada, y balcón propio.

El resto de esta planta es un espacio vacío que se le ha otorgado al salón. Este gesto provocó la aparición de extraños espacios hacia el exterior, pero no los verás en ninguna de las secciones. También hace que el salón tenga un espacio a doble altura.

A pesar de no estar dibujada la cabina, en el centro del hueco de la escalera hay un ascensor, o al menos así está previsto.

El proyecto de Casa Aresta fue realizado por el estudio de BLOCO Arquitetos. Fotos de Haruo Mikami.

Reseña
Fachada
5.5
Organización
4.5
Diseño interior
5.2
Sostenibilidad
4.0
Calidad de ejecución
6.0
Adfer Dazne
Arquitecto español fundador de IS-ARQuitectura en 2006. Es autor de miles de artículos en los que se han analizado obras de numerosos profesionales de la arquitectura y el diseño.
casa-arestaHay que reconocer que fue buena idea inclinar la fachada para impedir el soleamiento en las horas de más calor. Evitó la colocación de toldos, o largos voladizos. Es una solución pasiva a un problema muy común en la arquitectura. Lo peor: Como ya adelantábamos, colocar una fachada inclinada provocó la aparición de ciertas aberraciones volumétricas. Hay huecos que no tienen utilidad alguna, como el espacio exterior sobre el balcón del salón; algo parecido ocurre con el vacío hacia la piscina, en esa misma sala. Aparecen porque hay una pared fuera que da sombra, nada más. Eso podría facilitar que ciertas aves anidaran allí, afeando y ensuciando el edificio. Cuando se construye con fachadas inclinadas y/o curvas, aparecen en el interior espacios difíciles de utilizar. La sala escalonada de esta casa es un buen ejemplo de ello. Se resolvió con habilidad, pero no quedó muy confortable. El vestíbulo de entrada a la casa, pasillo de planta primera, y distribuidor de dormitorios, son espacios demasiado estrechos.

1 COMENTARIO

  1. Es un buen proyecto, espero que sus vistas no se vean pronto afectadas, en el vídeo se aprecian trabajos de nivelación para una construcción futura frente a la vivienda.

DEJA UNA RESPUESTA

Los datos de carácter personal proporcionados en este formulario serán tratados por Fermín Gómez, como responsable de esta web. La finalidad es añadir dicho comentario al artículo. La legitimación es tu consentimiento. Destino: los datos facilitados quedan guardados en nuestro servidor, y no son compartidos con terceros. Derechos: Podrás ejercer tus derechos de acceso, rectificación, limitación, y suprimir los datos en info@IS-ARQuitectura.com, así como el derecho a presentar una reclamación ante una autoridad de control. Hay información adicional y detallada en nuestra Política de Privacidad.

Por favor ingrese su comentario!
Por favor ingrese su nombre aquí

He leído y acepto la política de privacidad de este blog. *

[Todos los comentarios son moderados, ten paciencia, el tuyo se publicará pronto!]