Casa de una planta en Chile

4
254

En este post se realiza un análisis a una casa aislada de una planta. Se trata de Campana House, que está ubicada en una finca de 0,5Ha, en Palmas de Ocoa (V Región, Chile). Para la construcción de este proyecto se utilizaron madera y hormigón, como materiales constructivos principales. También llamó nuestra atención por su buen comportamiento solar pasivo, y otras medidas de carácter activo.

Campana House - casa de una planta en Chile

Campana House

A pesar de estar situada en un valle, Campana House se construyó en la parte más elevada de la finca. Por eso dispone de estupendas vistas hacia el cerro La Campana, y todo su entorno.

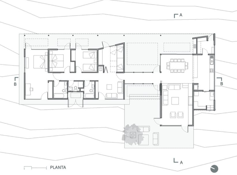
El edificio alcanza una superficie construida de 175 metros cuadrados, e incluye una buena terraza exterior. Esta casa también destaca por tener un programa con gran capacidad para los invitados.

Campana House comedor y cocina

Campana House sección comedor sala

Si nos fijamos en el plano de planta, veremos que está organizada en dos volúmenes:

  • Por un lado se ubican las áreas públicas. La cocina, comedor, y salón, son unos espacios abiertos que se organizan siguiendo una “L”. Junto a la cocina está el lavadero, y en el lado opuesto hay un cuarto para almacenaje (despensa).
  • El área destinada a dormitorios y baños está separada del resto de la casa mediante un patio. Pero la unión entre ambas zonas se realiza siguiendo una galería acristalada que atraviesa el patio. Esta conexión luego se transforma en un pasillo, que finaliza en el dormitorio principal. Este cuarto está equipado con baño propio, y una zona de estudio. Campana House tiene otros tres dormitorios, uno de ellos con camas-litera. Estas habitaciones comparten un cuarto de baño, y un aseo. Junto al cuarto de literas hay una pequeña sala, pero es zona de paso hacia el resto de dormitorios.

En algunas estancias se ha alterado la cubierta. Esto provoca que la altura libre interior varíe de los 2,4 a los 3,5 metros. Es una estrategia de diseño que hace que la casa tenga una fuerte relación con el paisaje. Según los arquitectos, esta solución permite maximizar las vistas hacia las montañas.

Campana House sala principal chimenea

Estructura y estrategias sostenibles

La estructura de Campana House se hizo principalmente con perfiles de acero, revestidos de madera de pino. También se ejecutaron muros de hormigón, son los que aparecen en la zona de la cocina-comedor. El concreto se dejó con acabado visto, aunque en determinadas zonas está revestido de madera.

Algunas áreas de fachada están completamente acristaladas, y las más soleadas permanecen protegidas por un porche. Para el piso se empleó un pavimento local (gres de batuco), y toda la carpintería es de madera. Entre las medidas sostenibles adoptadas, hay que destacar las siguientes:

  • Los muros de cerramiento en el lado norte tienen una cámara de aire.
  • La cubierta está ventilada.
  • El diseño garantiza en todo momento la ventilación cruzada natural de las habitaciones.
  • Hay paneles térmicos-solares en la cubierta, para producir agua caliente sanitaria.

exteriores de Campana House

El proyecto Campana House fue realizado por Alejandro Dumay Claro, y Francisco Vergara Arthur. Fotografías de Mauricio Fuentes.

Reseña
Fachada
7.4
Organización
8.8
Diseño interior
8.5
Sostenibilidad
7.3
Calidad de ejecución
6.0
Adfer Dazne
Arquitecto español fundador de IS-ARQuitectura en 2006. Es autor de miles de artículos en los que se han analizado obras de numerosos profesionales de la arquitectura y el diseño.
campana-houseCampana House es una interesante casa organizada en una sola planta. También atrae por las magníficas panorámicas que ofrece hacia el paisaje. Su decoración de interiores es sencilla, y utiliza con gran habilidad la madera. Además hay que destacar su buen comportamiento solar pasivo, el uso de materiales locales, y de la energía solar. Lo peor: El eje que forma la galería + pasillo resulta ser demasiado largo. Tanto las fotos como el plano de sección confirman que en ese pasillo no hay lucernario alguno, por lo que debe ser bastante oscuro. Se echó en falta algún sistema en las ventanas que permita controlar la privacidad, y la entrada de luz.

4 COMENTARIOS

    • Hola Glenn si lo que buscas es ponerte en contacto con los arquitectos que han hecho esta casa de una planta: al final del artículo están los enlaces a sus sitios webs.

DEJA UNA RESPUESTA

Los datos de carácter personal proporcionados en este formulario serán tratados por Fermín Gómez, como responsable de esta web. La finalidad es añadir dicho comentario al artículo. La legitimación es tu consentimiento. Destino: los datos facilitados quedan guardados en nuestro servidor, y no son compartidos con terceros. Derechos: Podrás ejercer tus derechos de acceso, rectificación, limitación, y suprimir los datos en info@IS-ARQuitectura.com, así como el derecho a presentar una reclamación ante una autoridad de control. Hay información adicional y detallada en nuestra Política de Privacidad.

Por favor ingrese su comentario!
Por favor ingrese su nombre aquí

He leído y acepto la política de privacidad de este blog. *

[Todos los comentarios son moderados, ten paciencia, el tuyo se publicará pronto!]