Balint House: casa minimalista con fachada de Krion

3
265

Va a ser complicado hacer un resumen de todo lo que se podría decir de esta vivienda unifamiliar. Seleccionar un número de fotos que no indigeste al lector, elegir lo mejor, y el más difícil todavía: encontrarle algún defecto. Tanto técnica como estéticamente, la Casa Balint se puede considerar una obra maestra de la arquitectura de nuestro tiempo. De su autor (Fran Silvestre Navarro) ya conocíamos buenos ejemplos residenciales, pero en éste se superó. Demuestra que no es arquitecto atrapado en determinadas formas, y que domina el minimalismo, incluso en una casa de planta elíptica.

Balint House casa minimalista nocturno

Características de la Casa Balint

Volumetría

Este proyecto se sitúa en Bétera (Valencia, España), en un lugar privilegiado dentro de un campo de golf. Deja la mayor superficie posible en el lado sur de su parcela, para jardín y piscina. La construcción se alza con elegancia, con una volumetría de superficies curvas, que no altera el paisaje más de lo necesario.  La forma elíptica es la que define su planta, pero también los elementos que la rodean. Tal composición alcanza dos de los requisitos básicos que todo buen proyecto debe cumplir:

  • Maximizar la edificabilidad que la normativa permite.
  • Reducir a niveles mínimos el impacto sobre el paisaje.

El resultado final es bello, equilibrado, y compacto.

Casa Balint casa de planta elíptica

Balint House casa planta eliptica

Su organización

Desde el exterior se percibe como un edificio de fachada continua y de una sola planta. Pero no es así, hay un sótano y una planta alta con tres dormitorios. Este efecto se ha conseguido trazando otra curva en la cubierta (ver plano de sección longitudinal).

Planta baja

Tenemos una casa minimalista de hormigón, que está organizada alrededor de un vacío central. En él se encuentra la escalera. La planta baja se mantiene muy despejada y abierta al jardín. Las funciones diurnas están tímidamente definidas por el mobiliario, y un monolito blanco que delimita el área de la cocina. Se trata de un contenedor de armarios que por su parte trasera está revestido de mármol muy claro. Es importante señalar que la elipse de los cerramientos no trasciende hacia los espacios interiores del edificio, de eso se encargan varias baterías de armarios empotrados y los cuartos de baño. Las únicas curvas que veremos dentro de la Balint House están en el techo de los dormitorios, y algo en el aseo de la planta baja.

Balint House monolito cocina

Balint House interior

Planta alta

En el piso superior está la suite principal, que posee una amplia terraza que mira a la piscina. En el lado opuesto hay dos habitaciones simétricas (sin baño) que forman los otros dos dormitorios. Ambas comparten una segunda terraza, un poco más pequeña que la de la suite.

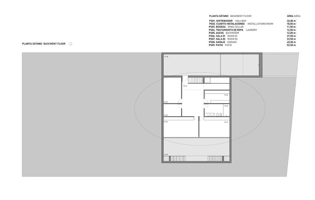
Planta sótano

En la planta sótano hay un gran espacio que distribuye el cuarto de instalaciones, la bodega, el cuarto de tratamiento de ropa, y un baño. Al fondo se sitúan dos salones para el entretenimiento familiar, ambos ventilando directamente al patio lateral de la casa.

Balint House dormitorio principal

Balinte house acceso y lateral

Una casa con fachada de Krion

El cerramiento está formado por una fachada ventilada que tiene un revestimiento exterior de una solid surface de Porcelanosa, llamada Krion (material tipo Corian). Este moderno material resultó ideal, pues se adapta bien a la geometría curva de la casa. Por eso no hubo necesidad de utilizar técnica alguna de termodeformación.

El siguiente vídeo está muy cuidado, y sirve para mostrar otros muchos aspectos que pasan desapercibidos en las fotos y planos.

Los fotos y planos de esta casa de planta elíptica se consiguieron del sitio web de Fran Silvestre Arquitectos. Es un lugar muy bien montando, con información precisa de todos sus proyectos. Añadir que esta obra fue seleccionada por la revista GA Project para incluirse en su publicación de GA Houses Project 2014, y participar en una exposición de Tokio. Las estupendas fotos son de Diego Opazo.

Más fotos de esta casa de planta elíptica

Reseña
Fachada
9.0
Organización
8.7
Diseño interior
9.9
Sostenibilidad
4.2
Calidad de ejecución
9.2
Adfer Dazne
Arquitecto español fundador de IS-ARQuitectura en 2006. Es autor de miles de artículos en los que se han analizado obras de numerosos profesionales de la arquitectura y el diseño.
balint-house-casa-de-planta-elipticaEste proyecto no se entendería con un interior diferente. La paleta de colores utilizada va del blanco al negro, incluyendo varias tonalidades de grises. Hay que destacar el vidrio tintado de las barandillas superiores y la pantalla situada justo delante de la escalera. La luz que arroja la claraboya rectangular hace que el espacio central de la casa adquiera un encanto peculiar durante las horas del día. Por todo lo dicho, la Casa Balint es una bella escultura habitable que debiera estar sí o sí en la lista de las mejores viviendas. Lo peor: Los grandes voladizos que la planta superior tiene hacia la piscina, y hacia la puerta de entrada de la casa, son posibles gracias a una estructura de hormigón armado. Tampoco hay noticias de que se hayan utilizado materiales ecológicos, ni estudiado el comportamiento solar pasivo del edificio. Es cierto que el vuelo sur y la fachada ventilada ayudan a hacer la casa más eficiente. La forma curva de la piscina entra en el juego de la elipse, pero no es en absoluto la mejor opción cuando se quiere tener una piscina también para nadar. Vamos a suponer por esta vez que su uso va a ser puramente lúdico. Resulta decepcionante que una casa de estas características tenga dormitorios sin baño propio, y que compartan terraza. Es verdad que dividirla hubiera roto parte del equilibro estético, pero la solución final sacrifica funciones y privacidad.

3 COMENTARIOS

  1. Sensacional trabajo de Fran Silvestre. El material utilizado es KRION de Porcelanosa, material similar al Corian pero con mejores prestaciones para el uso en fachada.

  2. Hola, soy Jose Castellano Heredia, me dedico a hacer cubiertas y fachadas de todo tipo. Vengo de Bélgica, estoy instalado en Malaga. Me gustaría entrar en contacto con el arquitecto Adfer, para demostrarle mis trabajos en juntas alzadas de cobre, zinc, pizarras. Me gusta mucho este tipo de construcción porque es el futuro, y si pudiera participar a ellas sería muy afortunado. Gracias, un saludo. Jose Castellano Heredia::662423321

DEJA UNA RESPUESTA

Los datos de carácter personal proporcionados en este formulario serán tratados por Fermín Gómez, como responsable de esta web. La finalidad es añadir dicho comentario al artículo. La legitimación es tu consentimiento. Destino: los datos facilitados quedan guardados en nuestro servidor, y no son compartidos con terceros. Derechos: Podrás ejercer tus derechos de acceso, rectificación, limitación, y suprimir los datos en info@IS-ARQuitectura.com, así como el derecho a presentar una reclamación ante una autoridad de control. Hay información adicional y detallada en nuestra Política de Privacidad.

Por favor ingrese su comentario!
Por favor ingrese su nombre aquí

He leído y acepto la política de privacidad de este blog. *

[Todos los comentarios son moderados, ten paciencia, el tuyo se publicará pronto!]