SlrSrf: ampliación de una casa aislada

0
235

Este análisis tiene que ver con el proyecto de ampliación de vivienda SlrSrf . Se ubica en Culver City, una pequeña ciudad del condado de Los Ángeles (California), que está muy vinculada con la producción de cine y televisión. Lo que veremos a continuación es un buen ejemplo de cómo aprovechar la renovación de una casa, para realizar una instalación de paneles fotovoltaicos en una nueva cubierta. Al mismo tiempo se crea una espectacular escalera de madera, dentro de una sala de biblioteca existente.

ampliación de vivienda SlrSrf

Antecedentes

Se comprenderá mejor esta ampliación de vivienda si conocemos antes qué había en la parcela. La casa actual estaba situada en la parte delantera de un lote rectangular. Incluía también un edificio más pequeño al fondo, utilizado como garaje. Como se puede apreciar en el plano de planta, ningún volumen está tocando los linderos. Se trata por tanto de una casa aislada en una parcela relativamente estrecha, pero con un lado aún libre por donde hacer la ampliación. El siguiente dibujo explica la situación de cada parte.

casa SLRSRF plano descripción edificios

Objetivos de la ampliación

El proyecto de reforma consistió en añadir a la casa un nuevo ala. Eso dio lugar a la aparición de nuevas habitaciones y cuartos de baño. Pero una de las acciones más importantes estaba centrada en el diseño del nuevo tejado. Había que optimizar la producción de energía de los paneles solares que se iban a colocar encima. Esta instalación fotovoltaica convierte a la casa en un edificio de energía neta cero.

Descripción de la solución

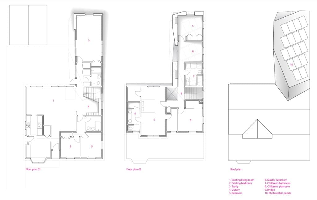
Ampliación de vivienda en dos pisos

Probablemente con una ampliación de vivienda en una sola planta, la familia habría tenido suficiente. Pero eso hubiera dado lugar a una cubierta demasiado baja (en sombra). Ese fue el motivo principal para construir dos pisos. El inferior se ha utilizado para adecuar un estudio, baño, y varios armarios; mientras que en la planta alta se ha colocado un dormitorio infantil con una sala de juegos previa, además de un cuarto de baño completo. El resto de la planta alta se ha reorganizado para configurar otro dormitorio y una estupenda suite.

vivienda SLRSRF plano justificacion cubierta solar

La solución de la cubierta

El cuerpo nuevo añadido a la vivienda posee una forma que puede parecer caprichosa. Se debe al tamaño, posición, y orientación que necesitaba tener el faldón del tejado para alojar los paneles solares. Además, hay que tener en cuenta que se necesitaba una superficie de 42m2.

En el proceso de diseño primero se estableció un ángulo de inclinación de la cubierta de 17º. Luego se amplió su superficie. El siguiente cambio consistió en girarla 22º para orientarla hacia el sur; y por último, reorganizar los paneles para que encajaran en la geometría resultante. Con este diseño, se ha conseguido la posición óptima para la producción de energía limpia.

SLRSRF ampliación de vivienda fachada

 

Escalera de madera con libros

La escalera también es nueva. El lugar más indicado para ello era justo entre la parte existente y la obra nueva, pero había un problema: que ahí estaba la biblioteca, y no se quería cambiar. La solución consistió en una original escalera de madera que integra parte de la estantería de libros. Esto dio lugar a un híbrido entre ambos elementos.

SLRSRF nueva escalera de madera

La ampliación de vivienda SlrSrf fue realizada por los arquitectos de Open Source Architecture. Fotos de Fotoworks.

Reseña
Fachada
8.3
Organización
8.7
Diseño interior
7.4
Sostenibilidad
7.2
Calidad de ejecución
9.0
Adfer Dazne
Arquitecto español fundador de IS-ARQuitectura en 2006. Es autor de miles de artículos en los que se han analizado obras de numerosos profesionales de la arquitectura y el diseño.
ampliacion-de-vivienda-slrsrfEs un placer encontrarse con un proyecto en el que el equipo de arquitectos se haya preocupado en explicar con dibujos el diseño. Eso era algo que la ampliación de esta casa requería. La solución dada a la cubierta para que la instalación fotovoltaica funcionara óptimamente, demuestra que diseño y tecnología pueden (y deben) ir de la mano. La organización interior de los espacios es muy racional, pero lo que más se recodará será su escalera flanqueada de libros. Lo peor: Al faltar información sobre otros aspectos de esta obra (materiales, interior de habitaciones), se nos hace difícil encontrarle defectos. Las placas solares instaladas hacen que (en teoría) esta casa funcione exclusivamente con la electricidad producida en el edificio. Pero hubiera estado bien saber si el proyecto tuvo en cuenta otras estrategias para hacerlo aún más verde.

DEJA UNA RESPUESTA

Los datos de carácter personal proporcionados en este formulario serán tratados por Fermín Gómez, como responsable de esta web. La finalidad es añadir dicho comentario al artículo. La legitimación es tu consentimiento. Destino: los datos facilitados quedan guardados en nuestro servidor, y no son compartidos con terceros. Derechos: Podrás ejercer tus derechos de acceso, rectificación, limitación, y suprimir los datos en info@IS-ARQuitectura.com, así como el derecho a presentar una reclamación ante una autoridad de control. Hay información adicional y detallada en nuestra Política de Privacidad.

Por favor ingrese su comentario!
Por favor ingrese su nombre aquí

He leído y acepto la política de privacidad de este blog. *

[Todos los comentarios son moderados, ten paciencia, el tuyo se publicará pronto!]