Torre de estructura híbrida en Västerås (Suecia)

0
284

Estos renders y planos pertenecen a un trabajo surgido a raíz de un concurso de ideas, para una torre residencial en Västerås (Suecia). Es ek bloque de pisos Sjömärket, que se ubica en el barrio de Lillåudden, muy próximo al lago Mälaren. Es un proyecto en altura que posee una estructura híbrida, a base de elementos de madera maciza y hormigón armado. También se hace notar por tener una fachada con salientes, formando terrazas.

torre residencial en Västerås CF Moller

Su diseño está inspirado en el movimiento del agua. Por eso la fachada se compone de grandes paneles de vidrio, que hacen que la luz penetre hacia el interior de cada apartamento.

La torre de madera Sjömärket tiene un jardín panorámico en el piso 15. En realidad desde la base hasta ese nivel la estructura es de hormigón. A partir de ese punto, y hasta su coronación (7 plantas más arriba), se hace de madera. Sus 22 pisos de altura no están nada mal, pero no alcanza el tamaño de la torre de madera HoHo Tower.

interior exterior torre residencial en Västerås Suecia

torre apartamentos en Västerås Suecia

Las fachadas presentan un acabado de madera natural, que está protegida por los voladizos de los balcones en cada piso. Las terrazas tienen la ventaja de que se pueden cerrar durante el invierno. Esto permite a los residentes crear un jardín de invierno doméstico.

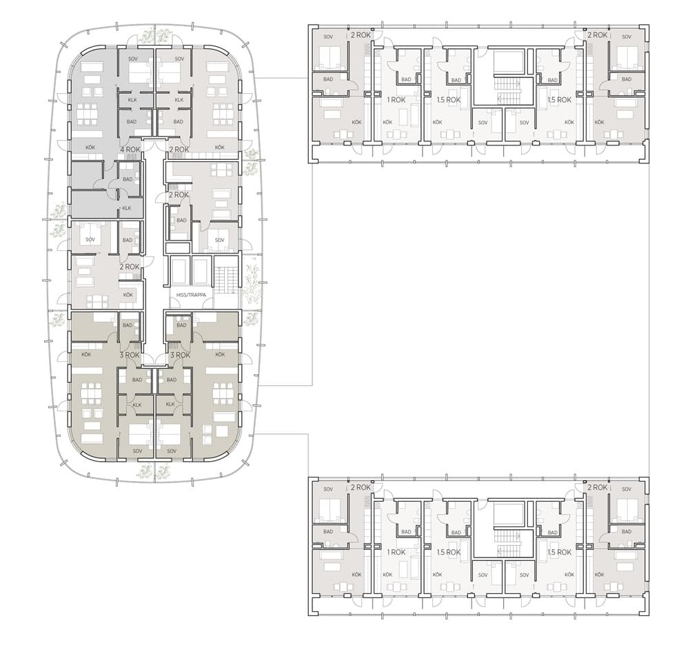
Según se puede ver en los planos de planta, la torre de madera de Västerås alberga apartamentos de diferentes tamaños. En planta baja se deja espacio para locales comerciales.

Planos torre residencial en Västerås

Ola Jonsson, un arquitecto que trabajó en este proyecto, dijo lo siguiente:

La arquitectura y los detalles de las fachadas están inspiradas en los reflejos de luz del lago Mälaren. El resultado es una composición de fachada tridimensional y dinámica, que es emocionante tanto de cerca como de lejos. [..] El jardín panorámico es un punto focal para la ciudad, y una zona común fantástica para los residentes. Nuestro objetivo fue optimizar las sinergias entre la ciudad, la construcción, y el verde urbano.

El proyecto para la torre residencial en Västerås fue realizado por el estudio de CF Møller.

Adfer Dazne
Arquitecto español fundador de IS-ARQuitectura en 2006. Es autor de miles de artículos en los que se han analizado obras de numerosos profesionales de la arquitectura y el diseño.

DEJA UNA RESPUESTA

Los datos de carácter personal proporcionados en este formulario serán tratados por Fermín Gómez, como responsable de esta web. La finalidad es añadir dicho comentario al artículo. La legitimación es tu consentimiento. Destino: los datos facilitados quedan guardados en nuestro servidor, y no son compartidos con terceros. Derechos: Podrás ejercer tus derechos de acceso, rectificación, limitación, y suprimir los datos en info@IS-ARQuitectura.com, así como el derecho a presentar una reclamación ante una autoridad de control. Hay información adicional y detallada en nuestra Política de Privacidad.

Por favor ingrese su comentario!
Por favor ingrese su nombre aquí

He leído y acepto la política de privacidad de este blog. *

[Todos los comentarios son moderados, ten paciencia, el tuyo se publicará pronto!]