Arbre Blanc: torre residencial con grandes balcones

0
268

El proyecto de esta torre de 17 plantas fue el ganador en el concurso Architectural Folie of the 21st Century . Se trata de la Torre Arbre Blanc Montpellier (Francia). Es un bloque de apartamentos que tiene restaurante y galería de arte en planta baja. También posee algunas oficinas, así como un bar con vistas panorámicas y un espacio comunitario en la azotea. Su posición es bastante estratégica, entre el centro de la ciudad y los nuevos distritos de Port Marianne y Odysseum, dominando vistas hacia al mar, la montaña, y el río Lez.

Arbre Blanc Montpellier

Torre Arbre Blanc vista desde el rio

Este bloque de pisos no se parece a ninguna de las torres residenciales que ya pasaron por nuestro blog. Es una torre impregnada por el carácter del estilo de vida mediterráneo, pero también de la cultura japonesa. El interior y el exterior se unen con fuerza, diluyéndose la frontera entre la habitación y el balcón, algo que salta a la vista en el primer vistazo que se le echa al proyecto.

Torre Arbre Blanc vistas exteriores

Torre Arbre Blanc parte alta - seccion

Te puede interesar:

Un concepto diferente de edificio en altura

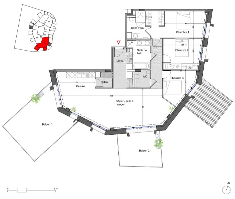
Cada propietario tiene la posibilidad de elegir entre varias configuraciones. Por eso hay diferentes tamaños de apartamentos, y de varios dormitorios. En lugar de entregar una “vivienda llave en mano” se ofrecen espacios interiores modulares, para que el cliente pueda elegir entre un variado catálogo. Esta torre residencial funciona también como un edificio público de interés para los turistas que visiten la ciudad.

La torre se “alimenta” como un árbol, de los recursos naturales que están disponibles a nivel local. Eso reduce su huella de carbono, pero también incorpora en estrategias pasivas que no interfieren la comodidad y el uso. Un ejemplo de ellas es la posibilidad de enfriar los apartamentos mediante chimeneas solares.

El gran vuelo de los balcones se ha solucionado con un tirante a cada lado, según se aprecia en el siguiente esquema que indica ciertos aspectos sostenibles:

Torre Arbre Blanc Montpellier- balcones - esquema sostenibilidad

El proyecto Arbre Blanc Montpellier fue diseñado por el arquitecto Sou Fujimoto, Nicolas Laisné Associés, y Manal Rachdi Oxo Architects. Imágenes renderizadas de RSI-Studio.

Adfer Dazne
Arquitecto español fundador de IS-ARQuitectura en 2006. Es autor de miles de artículos en los que se han analizado obras de numerosos profesionales de la arquitectura y el diseño.

DEJA UNA RESPUESTA

Los datos de carácter personal proporcionados en este formulario serán tratados por Fermín Gómez, como responsable de esta web. La finalidad es añadir dicho comentario al artículo. La legitimación es tu consentimiento. Destino: los datos facilitados quedan guardados en nuestro servidor, y no son compartidos con terceros. Derechos: Podrás ejercer tus derechos de acceso, rectificación, limitación, y suprimir los datos en info@IS-ARQuitectura.com, así como el derecho a presentar una reclamación ante una autoridad de control. Hay información adicional y detallada en nuestra Política de Privacidad.

Por favor ingrese su comentario!
Por favor ingrese su nombre aquí

He leído y acepto la política de privacidad de este blog. *

[Todos los comentarios son moderados, ten paciencia, el tuyo se publicará pronto!]