Como su nombre indica, Maison Conteneur es una vivienda unifamiliar que está íntegramente construida con contenedores de carga. Se ubica al pie de la colina Mourepiane (cerca de L’Estaque, en Marsella). Allí antes había playa, pero luego esa zona de la costa francesa fue ocupada por el puerto de la ciudad.
La alteración hecha a los contenedores de esta casa defiere de la mayoría de arquitectura-container que ya habíamos visto. Eso lo explicamos más adelante, señalando además las ventajas e inconvenientes de la solución adoptada.
Maison Conteneur
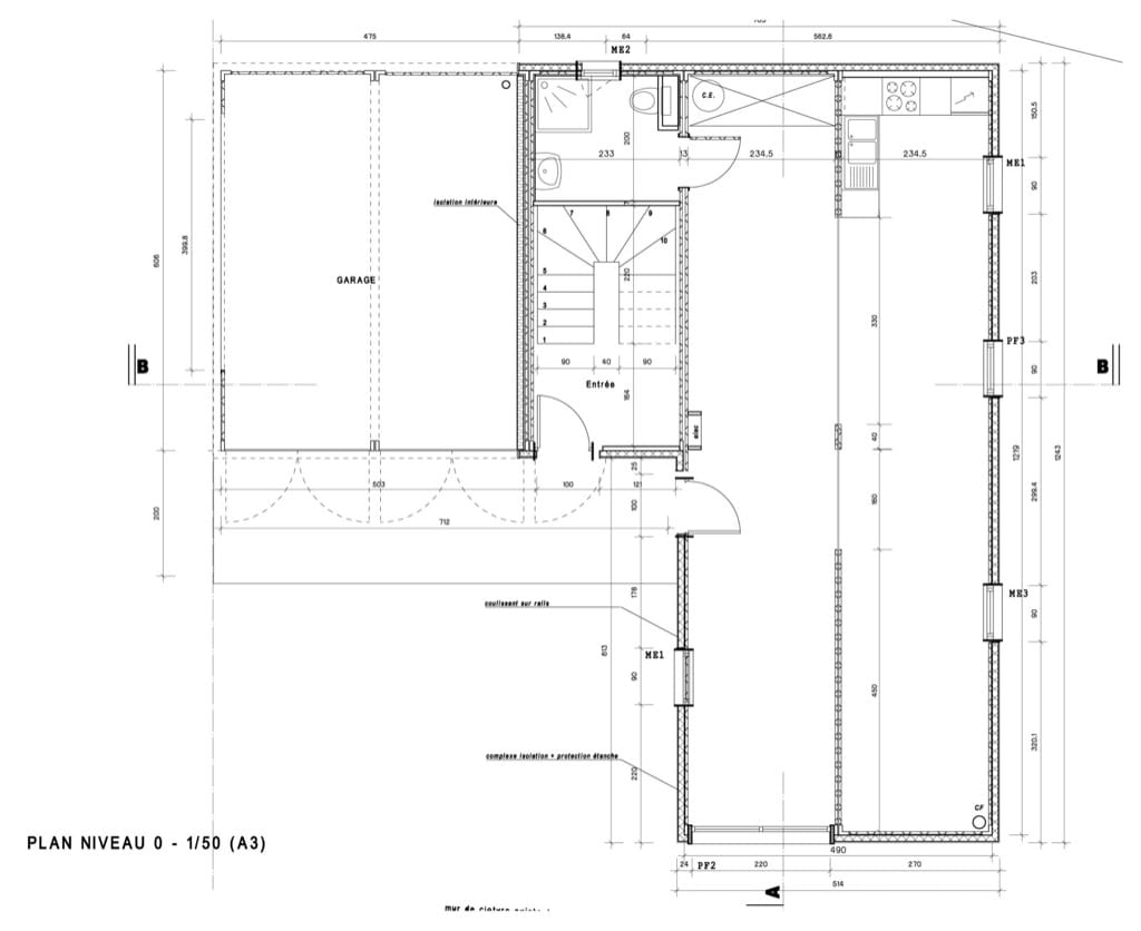
Para el diseño de la Maison Conteneur el arquitecto optó por una solución bastante sencilla. La planta del edificio adquirió forma de “L”, y se desarrolla en tres pisos, logrados apilando contenedores. La agrupación de los módulos de acero es bastante simple, y fácil de identificar en los planos de planta. En cada piso hay tres contenedores de 20 pies, y dos de 40 pies.
En la planta baja, el espacio resultante de unir dos contenedores se ha utilizado de garaje. El tercer contenedor sirve para el núcleo de escalera y un baño. Los dos contenedores más grandes crean los espacios de vida de la Maison Conteneur: cocina, sala, y comedor.

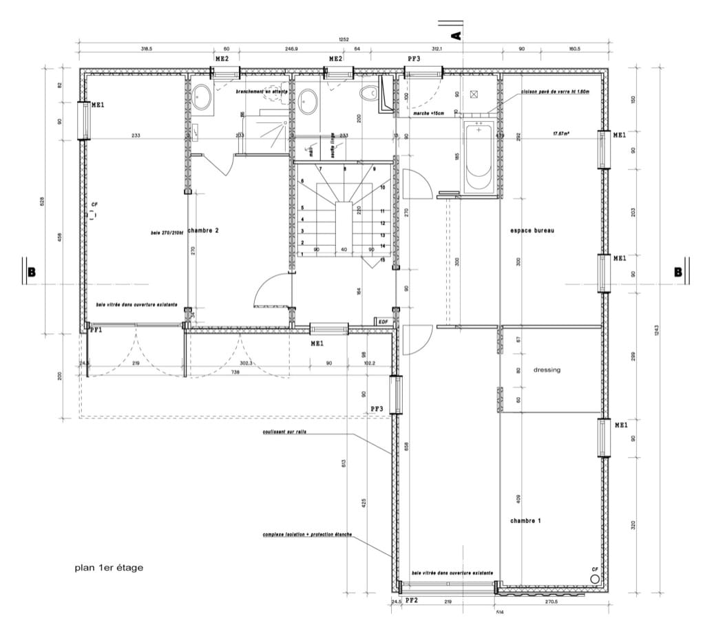
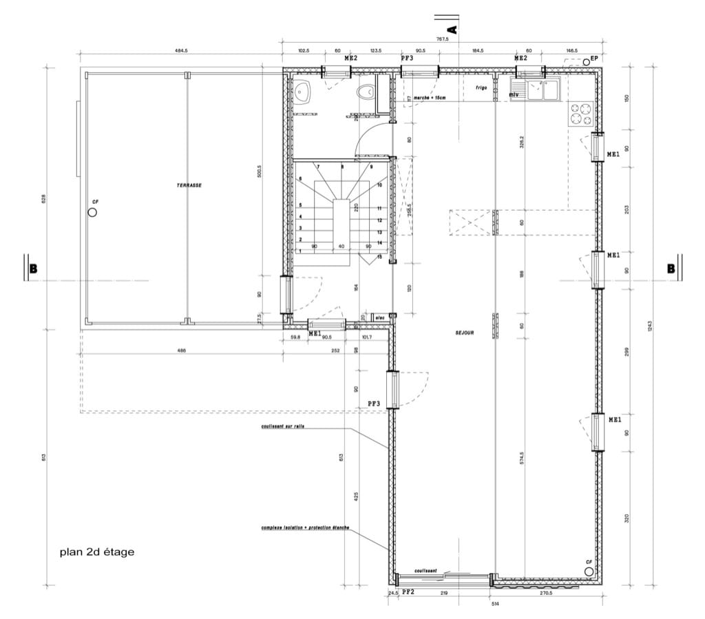
La planta primera tiene un gran dormitorio con vestidor, cuarto de baño, y un estudio. Al otro lado de la escalera hay otra habitación con baño. Aparte de la vivienda, el programa de esta casa-contenedor incluye un loft en la segunda planta. Es un espacio de 65m2 que los propietarios acomodaron para su alquiler a huéspedes. También en este piso hay una terraza cubierta, que ocupa la superficie de dos contenedores de 20 pies.
Un proyecto de estas características presenta muchos retos para el arquitecto: trazado de instalaciones, materiales a utilizar para el revestimiento exterior/interior. Aquí hay que inventar cada detalle constructivo. Algunas de las fotos incluidas así lo demuestran, y se explican en el siguiente apartado.
Alteración de contenedores y aislamiento
Para llevar a cabo esta vivienda se le tuvieron que recortar a los contenedores las partes correspondientes a las ventanas. También se suprimieron los laterales que sobraban a la hora de crear espacios más anchos dentro de la casa.
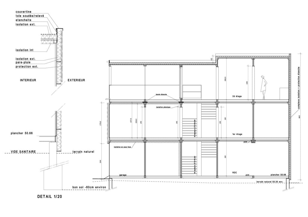
Lo habitual en una casa container es añadir la capa de material aislante en la cara interior del contenedor. Ese revestimiento incluye un acabado liso, a la vez que facilita el paso de las instalaciones. Pero en la Maison Conteneur se hizo al revés: el aislante de paneles de poliestireno se aplicó en la cara exterior. Encima del aislamiento se colocó una chapa metálica ondulada, de color oscuro, que define una fachada bastante interesante.
Por falta de presupuesto, se dejó vista la superficie interior corrugada de los contenedores. Esto tiene una clara ventaja en el tamaño de las habitaciones, pero implica un acabado interior menos estético. El paso de las instalaciones agujereando esta chapa resultó ser una mala idea (ver galería de fotos). Por eso se recurrió a adosar tablones horizontales de madera en la parte baja de las paredes, dejando un pequeño hueco para pasar cables y tuberías. Los recorridos verticales también van ocultos, tras otros tablones colocados en posición vertical.


La Maison Conteneur es un proyecto de Claire Helene Drouin y Jean Marie Sánchez. Hay más detalles en el sitio web creado exclusivamente para este proyecto.
Hola, estoy haciendo un trabajo para arquitectura, y tengo que desarrollar una vivienda en esta tipología, como célula tridimensional en contenedores. Quiero alguna informacion más especifica en tecnología con respecto a los revestimientos que usaste en la vivienda, espero tu respuesta gracias.
Me parece increíble que con este tipo de material podamos tener una bella vivienda. Soy de Venezuela, me gustaría hacer una, pero de dos viviendas independientes, de tres habitaciones, dos baños, sala, cocina, comedor. Me encanta. Gracias.