Desde el 2012 Philippe Starck comenzó a trabajar con Riko, una firma presente en muchos países, que pone empeño en el cuidado del medio ambiente. Riko está considerada como una de las principales compañías europeas de madera para la construcción prefabricada. Su prestigio es grande, pues ofrece los más altos estándares ecológicos en sus edificios. Riko y P. Starck crearon PATH, una manera rápida de referirse a Prefabicated Accesible Technological Homes. Por tanto, las casas P.A.T.H. fueron creadas por Starck with Riko.
Estas viviendas llave en mano provienen de una línea de fabricación industrial. En ella se combina un diseño de estilo atemporal con alta tecnología, confort, y sostenibilidad. En estas casas la madera es el material principal, por ser natural, renovable, y reciclable. La marca PATH de casas prefabricadas ofrece al cliente un total de 33 modelos, a partir de cuatro diseños básicos. Esa gama se amplía con diferentes configuraciones de fachada y tejado, e incluso de acabados interiores y accesorios.
Está todo pensado para que el propietario pueda configurar la casa que mejor se adapte a sus necesidades. Cuentan con la ventaja de podérseles añadir sistemas de producción de energía renovable (fotovoltaica, eólica, bombas de calor…), y recogida de aguas pluviales. De esta forma no es muy difícil conseguir una vivienda de energía cero.
Todos los elementos de las casas PATH se fabrican en taller. Cuando la cimentación se ha realizado, solo se necesitan unas semanas para montar la vivienda en el sitio. Una vez ensamblada la estructura, bastarán dos meses para completar las instalaciones eléctricas y mecánicas, así como el resto de acabados.
Casas Montfort
Unos 6 meses es el tiempo total que se necesita para tener una vivienda PATH. Ello es posible gracias a un método prefabricado de producción en taller, seguido de unas tareas de ensamblaje y acabado en el sitio. Estas casas llave en mano además de venir acreditadas por el diseñador Philippe Starck, reúnen muchas características de la arquitectura sostenible.
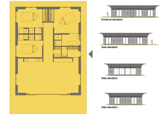
Montfort es una de las cuatro gamas disponibles de modelos PATH a partir de las cuales el cliente puede configurar su vivienda. Este edificio es compacto, de planta rectangular, y permite en su interior programas de 1 hasta 6 dormitorios. Las superficies van desde 172m2 hasta los 274m2. Este diseño facilita su producción, pero provoca un largo pasillo en los modelos más grandes, como se puede ver en uno de los planos de planta.
En total hay 12 versiones diferentes de casas Montfort, según número de dormitorios, y si tiene o no garaje.



Modelos Montfort de 2 plantas
Seguramente la presencia del genial creador Philippe Starck en este negocio ha tenido que ver con su éxito mediático. Solo falta comprobar si estos originales y sostenibles modelos son demandados por el público real.
Ya supimos del envío de las primeras casas a sus propietarios. También se hicieron públicas las fotografías de una vivienda PATH construida en Montfort-l’Amaury (París). Originalmente este modelo era conocido por R+1 Family, pero más tarde se denominó Montfort de 2 plantas. La que aparece en estas imágenes es precisamente una de esas viviendas de dos pisos, configurada con cuatro dormitorios. Su estructura es de acero y la fachada de vidrio. Además, es un modelo con cubierta tipo “cornisa” con jardineras. La planta es casi cuadrada, y sus cuatro fachadas son idénticas. A este modelo se le ha añadido una terraza que conecta con el salón mediante grandes puertas correderas.
Este diseño tiene una superficie útil total de 293m2, con un gran espacio principal ocupado por el salón, cocina y comedor de 122m2, que conecta con la planta superior mediante una escalera helicoidal. A ambos lados de ella hay dos módulos compactos que contienen los muebles de la cocina, el aseo, lavadero, caldera, y armarios de almacenaje. Los dormitorios son bastante espaciosos, de dos tipos, y están dispuestos de manera simétrica, donde cada uno de ellos está equipado con baño propio.
También con características sostenibles
Vemos en las fotos que esta casa Montfort está equipada con dos aerogeneradores de eje vertical (diseño de Starck). También posee un sistema perimetral con toldos que quedan perfectamente camuflados en la fachada cuando no están extendidos. Están ahí para controlar mejor las ganancias solares. El edificio dispone de soluciones ecológicas innovadoras, relacionadas con el aislamiento y la impermeabilidad. Incluso de otros sistemas que puedan hacer que funcione de manera autosuficiente (paneles solares). Este fabricante puede añadir una instalación para la recogida y almacenamiento de las aguas pluviales.
Hay que decir que las casas PATH están diseñadas para consumir un tercio de la energía que consume una vivienda convencional. Y también para producir más de la que necesita para su funcionamiento, como lo hace este prototipo que se construyó en Francia.
Configuraciones posibles
Los 9 modelos posibles que se pueden configurar de esta tipología tienen dos niveles. La planta inferior está muy despejada, mientras que en el piso superior hay dormitorios en suite. Pero pueden variar de tamaño, de 2 hasta 8 dormitorios, consiguiendo viviendas que van desde los 238m2 hasta los 421m2 de superficie construida (bruta). Algunas de ellas permiten la posibilidad de añadirle garaje, y grandes cuartos de baño al modelo de 5 habitaciones.
El resto de posibilidades son las que ya conocemos de estas casas.
Modelos Formentera
El modelo Formentera ofrece viviendas de una sola planta, que pueden tener 3, 4, 5, e incluso 6 dormitorios. Los tamaños van desde los 185m2 hasta los 300m2. La gran ventaja frente a la opción Montfort es que las casas Formentera ofrecen un mejor aprovechamiento del espacio. No tienen pasillo, en cambio la sala principal es zona de paso obligado para ir de un dormitorio a otro. Con esta disposición todas las dependencias menores van formando una U, dejando la sala en la parte central.
En total hay 9 modelos de casa Formentera, y solo dos de ellos con garaje.

Diseños OutHouses
Los diseños OutHouses son los más pequeños de todo el catálogo PATH, y existen en 3 modelos diferentes. Son construcciones prefabricadas que pueden servir como estudio, garaje, o tener esas dos funciones a la vez. La versión Studio R+1 alcanza una superficie útil de 114m2, y se desarrolla en dos niveles. En planta baja hay un garaje para dos vehículos, y arriba está la vivienda. Al estudio se accede por una escalera helicoidal, y se compone de un espacio multifuncional con cocina. Dispone de armario, y cuarto de baño dividido en váter + aseo con ducha y lavabo.
Si solo se quiere un estudio, entonces la opción sería el Studio RDC, de una planta. Esta versión es bastante más compacta que la anterior, pues solo alcanza 27m2 de superficie. El módulo de aseo + ducha divide el espacio, dejando a un lado la cama, y en el contrario la zona de cocina. Para sacarle un buen partido a esta casita prefabricada se hace indispensable el uso de muebles convertibles.
Por último tenemos la versión Garage Garden Shelter, que tiene el mismo tamaño que el modelo anterior, pero para utilizarlo como garaje.
Materiales
Los modelos Montfort y Formentera pueden adquirirse en Madera (Wood), Vidrio (Glass), o Combinado (Combined). Las pequeñas construcciones Outhouses solo están disponibles en madera.
La versión Wood de estas casas PATH posee una estructura de madera, con paredes exteriores e interiores de gran aislamiento térmico. Los huecos van de suelo a techo en toda la gama, y parece que es posible aplicar un revestimiento exterior personalizado.
En la variante Glass la estructura básica de la casa es de acero, permitiendo espacios habitables abiertos y grandes. La denominación Glass le viene dada por la cantidad de vidrio de su fachada, de suelo a techo, con robustos marcos de aluminio. Con esta configuración, es casi seguro que la vivienda va a necesitar de elementos que frenen la radiación solar en determinadas épocas del año. Todas las habitación van a recibir mucha luz natural, y tendrán buenas vistas hacia el exterior. La tabiquería está hecha de madera.
La versión Combined pretende ofrecer lo mejor de ambos mundos. Son casas con fachada panorámica, pero con el toque natural que aporta la madera. Los dormitorios conservan el mismo grado de privacidad que en la versión Wood. En cambio es el salón el que se ve más acristalado, pero dependerá principalmente del modelo de casa que se elija.
Además de las tres opciones estructurales (madera, vidrio, y combinado) que afectarán principalmente al diseño de la fachada, también hay cuatro posibilidades relacionadas con la cubierta. La casa puede tener una gran cornisa, cubierta plana, a dos aguas, o cubierta a dos aguas con un voladizo perimetral. Independientemente de las preferencias estéticas que se tenga, es importante tener en cuenta la localización final de la casa, orientación, y climatología, a la hora de decidirse por una de estas características.
Más información en el sitio web de StarwithRiko.