Empresas prestigiosas dedicadas al negocio de las casas prefabricadas, saben que deben renovarse para no quedar ancladas en el pasado. Por ese motivo los constructores Method Homes se unieron con los arquitectos de Bogue Trondowski, para crear el modelo Paradigm. Es una versión bastante contemporánea de vivienda prefabricada, cuyo prototipo se llegó a exhibir en una Greenbuild. Por si no lo sabías, es la feria internacional de construcción ecológica más importante del mundo.
El diseño original de Paradigma alcanzaba una superficie de 71,72m2. Sus características ecológicas apuntaban alto, pues permitía conseguir certificación LEED Platino. Se convertía también en una casa prefabricada de energía neta cero.

Características sostenibles de Paradigm
La serie Paradigm es una construcción razonablemente pequeña, pero con todo lo que pide un cliente preocupado por la sostenibilidad.
A continuación añadimos un listado con los detalles más destacables que hacen de Paradigma una casa prefabricada ecológica:
- Dispone de una envolvente super-aislada, hecha con aislamiento de espuma reciclable.
- Tiene revestimientos de madera certificada.
- Puertas y ventanas con triple acristalamiento.
- Instalación de placas solares en su cubierta (elemento debidamente orientado).
- La climatización va por mini-splits.
- Viene equipada con electrodomésticos de alta eficiencia.
- Tiene armarios y pisos de bambú (libres de formaldehído).
- Posee ventilación HRV (con recuperación de calor).
- Su iluminación es de tecnología LED,
- Domótica.
- Recogida y almacenamiento de agua de lluvia.
- Reciclado de aguas grises.
- Inodoro de compostaje tipo Eco Dry.

Como se puede apreciar, sus especificaciones son tremendas! Probablemente las más destacables sean las relacionadas con el agua. Esta casa puede capturar aguas pluviales, y reciclar aguas grises. Para ello utiliza un depósito de acero galvanizado de casi 19.000 litros. El sistema Flotender se encarga de filtrar el agua de uso doméstico (fregadero, lavabo, y ducha), para luego utilizarla en el riego de un huerto tipo Organics Sunnyside.
Con todo ese equipamiento, una casa Paradigm puede funcionar completamente desenchufada de las redes municipales.

Fotos del prototipo en GreenBuild
En este apartado añadimos y comentamos las fotografías tomadas durante una feria Greenbuild de San Francisco (California).

Para este prototipo, en el apartado energético se utilizaron paneles fotovoltaicos de la marca LG (4kW). Pero para nuestra sorpresa no se colocaron sobre la original estructura de chapa perforada que vimos en los renders. Se hizo directamente sobre la cubierta, con lo que ese elemento de su diseño quedó sin sentido alguno.
El interior de esta casa ecológica es bastante agradable. Tiene mucha luminosidad, y un estilo sencillo que hace uso de muebles modernos, algunos abatibles. Un ejemplo de ello es la estantería convertible en cama.

3 Diseños de esta moderna casa industrializada
Desde que el 2012 el famoso constructor Method Homes anunciara su moderna vivienda industrializada Paradigm, ha mostrado al mundo un prototipo, y ampliado la serie con varios modelos.

Paradigm es una de las casas prefabricadas más modernas que existen en el mercado. La vivienda está resuelta con la zona de día muy abierta, y habitaciones con muchos armarios empotrados. Hay tres modelos disponibles, en los que se puede elegir diferentes paquetes, según el grado de sostenibilidad deseado. También existen varias opciones de configuración, por lo que es una casa bastante personalizable.
Los tres diseños de esta serie están basados en un sistema modular, y tienen las siguientes características:
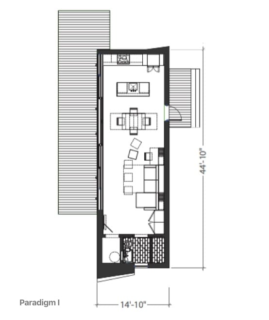
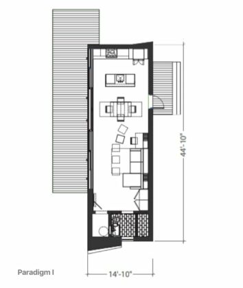
- Paradigm I. Es el modelo más pequeño, de 61m2 (656 pies cuadrados). Todo su programa está incluido en un módulo. Es un estudio que incluye todo lo básico para vivir, con opciones para terraza, ventanas, revestimientos y acabados.
- Paradigm II. Supone la opción intermedia, y está resuelta con dos módulos. Por tanto alcanza los 122m2 (1.312 pies cuadrados), suficientes para tener un gran salón con cocina y comedor, y dos dormitorios. Esta casa prefabricada tiene un cuarto de baño completo, y un aseo. Posee las mismas opciones de personalización que el anterior.
- Paradigm III. Esta vivienda es de dos plantas. La planta inferior se organiza con dos módulos, y aporta casi lo mismo que el modelo anterior, paro sin aseo, ya que necesita espacio para la escalera. El nivel superior se consigue con un tercer módulo (más pequeño), gana un dormitorio más, otro baño, y una habitación de estudio. Además incluye una azotea de 37m2. Si se elige un sistema de energía solar, las placas estarían colocadas sobre la cubierta del tercer módulo. En total, este modelo tiene una superficie de 174m2 (1.868 pies cuadrados).
Con certificación LEED Platino
Incluyendo todas las características sostenibles, es posible conseguir un edificio de certificación LEED Platino. El fabricante ofrece en el precio de llave en mano los electrodomésticos, los trabajos de cimentación necesarios, así como los de ensamblaje. También la entrega dentro de un radio de 400 millas, desde las instalaciones de Seatle.
Puede haber más información sobre esta moderna vivienda industrializada en el sitio web de Method Homes. Estas casas prefabricadas fueron diseñadas por Bogue Trondowski Architects, en colaboración con Method Homes.












