Casa prefabricada en Cedeira (España)

0
293

Este artículo está dedicado a la Casa HK. Fue proyectada por la firma madrileña de arquitectos MYCC, que se dedica también al diseño de casas prefabricadas. Pero lo hace desde un enfoque más alejado de la estandarización y más próximo al cliente. Ellos piensan que:

«La vivienda prefabricada no tiene que derivar obligatoriamente en una pieza de catálogo, teniendo incluso ventajas desde diversos puntos de vista. Prefabricación no es estricta estandarización, ni igualar soluciones independientemente de los usuarios. El proyecto se debe adecuar a las necesidades de los usuarios y no al contrario. Debe tener en cuenta el lugar de ubicación, orientaciones, necesidades de programa, clima, tipo de uso, gustos estéticos o modos de vida.»

exterior Casa HK

casa de hormigón y acero cerca del mar

Casa HK

fachada casa prefabricada en Cedeira

HK es una vivienda de vacaciones fabricada en Madrid (en 3 meses), y luego montada en tres días en Cedeira (Galicia), a 598km. Se trata de una sencilla propuesta de un único volumen, con cubierta a dos aguas. El edificio se ubicó en una ladera cercana al mar, y está rodeado de un bosque de eucaliptos. Los dos materiales con los que se reviste el exterior dialogan con este entorno. Cubierta y fachadas laterales son de Viroc® (prefabricado de cemento y virutas de madera). Las fachadas frontales lo hacen con paneles perforados de acero Corten. Ese proceso crea un hermoso dibujo de siluetas de árboles en fachada.

casa HK sala y espacio superior

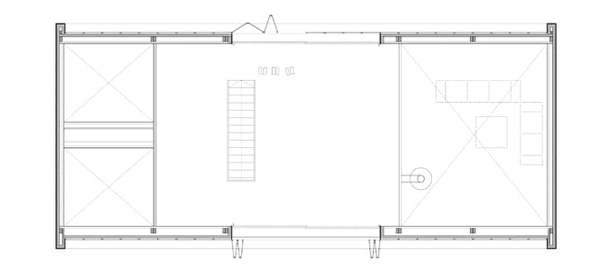
Es importante señalar que la Casa HK tiene sótano, y que se realizó in situ. La parte fabricada en taller se compone por 6 módulos, que unidos organizan la parte superior y vividera del edificio. En el primer módulo se tiene un dormitorio que puede dividirse en dos, gracias a un tabique oculto; el segundo módulo es para baño, armarios, y zona de paso; el tercero lo ocupa la escalera y zona de cocina, mientras que los tres últimos forman el salón. Arriba queda un espacio bajo la cubierta que tiene un uso indefinido.

esquema modular Casa HK

 

Prefabricada con estructura de acero y hormigón

La estructura modular de esta casa prefabricada tiene vigas y soportes de acero galvanizado, con forjados de hormigón armado. Los cerramientos se crean con paneles sándwich formados por dos láminas de aluminio lacado y una placa de poliuretano de 80mm de espesor. Hacia el interior tiene una cámara de aire de 20cm para dejar pasar la estructura, con un revestimiento perimetral de placas de yeso con 46mm de lana de roca. El espesor total del cerramiento es de 30cm.

Tras los tres días de montaje, se emplearon dos semanas para completar los acabados. El resultado final tiene bastante calidad, y cumple con los más altos estándares de eficiencia energética. Durante su fabricación apenas se generaron residuos, aunque su huella de carbono no sea precisamente cero (hormigón, transporte,…). Tampoco hay más datos de otras características verdes (energéticas, de ahorro de agua, climatización…), necesarias para poder calificar de sostenible una vivienda.

transportando montando casa prefabricada hormigón

Nosotros pensamos que esta filosofía está muy bien cuando el cliente no está buscando la solución más económica. También hay que tener en cuenta que quienes buscan soluciones prefabricadas más baratas no les importa tener que adaptarse a modelos existentes. Por eso probablemente la solución intermedia sea la mejor: dejar que el cliente personalice modelos prefabricados. Y eso es algo que ya permite cualquier empresa seria de casas prefabricadas.

fachada acero corten con dibujo perforado

Fotos de Fernando Guerra / FG+SG, y de la web de MYCC.

Adfer Dazne
Arquitecto español fundador de IS-ARQuitectura en 2006. Es autor de miles de artículos en los que se han analizado obras de numerosos profesionales de la arquitectura y el diseño.

DEJA UNA RESPUESTA

Los datos de carácter personal proporcionados en este formulario serán tratados por Fermín Gómez, como responsable de esta web. La finalidad es añadir dicho comentario al artículo. La legitimación es tu consentimiento. Destino: los datos facilitados quedan guardados en nuestro servidor, y no son compartidos con terceros. Derechos: Podrás ejercer tus derechos de acceso, rectificación, limitación, y suprimir los datos en info@IS-ARQuitectura.com, así como el derecho a presentar una reclamación ante una autoridad de control. Hay información adicional y detallada en nuestra Política de Privacidad.

Por favor ingrese su comentario!
Por favor ingrese su nombre aquí

He leído y acepto la política de privacidad de este blog. *

[Todos los comentarios son moderados, ten paciencia, el tuyo se publicará pronto!]