Pequeña vivienda para el teletrabajo

0
226

La vivienda sobre ruedas MIO se diseñó para quienes trabajan en el hogar. Pero también resulta interesante porque está pensada para llevar un estilo de vida sencillo. Es una pequeña vivienda de madera, cuyo diseño exterior no tiene muchas pretensiones, pero una vez dentro, te atrapa.

Para quienes pasan muchas horas delante del ordenador, este diminuto hogar debe ser toda una revelación.

Vivienda sobre ruedas MIO

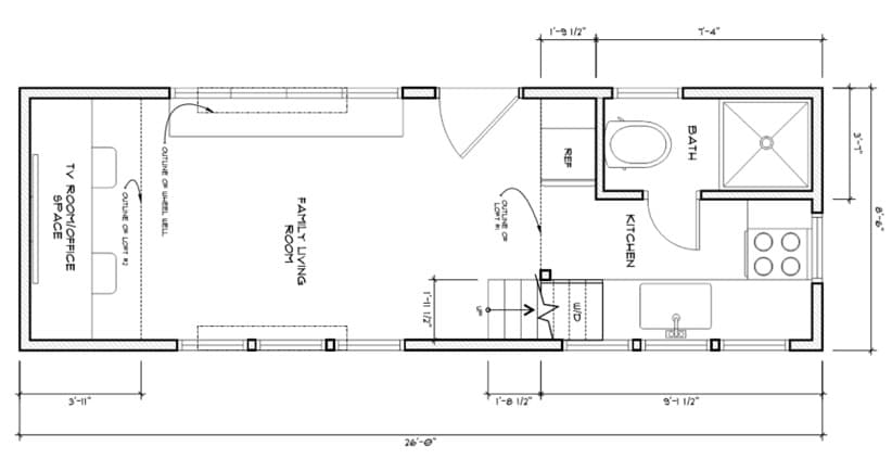
MIO tiene unas dimensiones externas de 7,92 x 2,58m. Eso significa que ocupa una superficie de 20,43m2, lo cual está bastante bien. Lo primero que debiera llamarnos la atención de esta propuesta móvil es su mesa de escritorio, ubicada en un extremo. Tiene un monitor de 55 pulgadas, estantes laterales, y todo un frontal de madera maciza, en su color natural. Si nos fijamos más, entonces encontraremos multitud de conexiones USB, repartidas por todos los rincones.

vivienda sobre ruedas MIO

Un dato importante: la vivienda sobre ruedas MIO viene equipada con control inteligente de la iluminación, calefacción, y seguridad.

El extremo opuesto de esta casa sobre remolque se ha utilizado para la cocina y el baño. Reconozco que no soy muy fan de esta configuración, pero algo hay que sacrificar si quieres un buen espacio de trabajo. Me gusta que la cocina tenga cuatro fogones, horno, varias ventanas, y además campana extractora de humos. Hay un fregadero de dos senos, y un buen frigorífico (con puerta superior de congelador). Dispone de varios armarios inferiores, y otro electrodoméstico en uno de los extremos (supuestamente una lavadora/secadora).

El cuarto de baño es el habitual de estas construcciones. Está compuesto por un inodoro y una ducha, aunque hubiera estado bien ver alguna foto de su interior, pero no fue posible.

El resto es una sala que puede funcionar como espacio de descanso (sofá) y comedor. Hay una gran ventana junto a la puerta de entrada, que tiene un tablero de madera en la parte inferior.

El dormitorio está arriba, en un altillo, y se accede a él por una escalerilla de madera.

interior MIO vivienda movil Covo Tiny House

Algunas interrogantes

El proyecto de la vivienda sobre ruedas MIO fue realizado por Covo Tiny House Co. Pero a este constructor le faltó añadir en dicha web un buen listado de características. Es de suponer que con el tiempo meta más información, pero mientras eso ocurre tenemos varias interrogantes:

  • Si nos limitamos en las fotos y en el plano de planta, no queda muy claro dónde se come. Es posible que la mesa del escritorio se pueda desplazar, pero para ello el monitor tendría que estar fijado a la pared, algo que no parece ocurrir. Entonces solo queda la opción del tablero que hay bajo la ventana, que no es gran cosa.
  • Detrás de la nevera hay un estrecho armario para colgar ropa. ¿Es el único? eso parece, porque el armario del altillo es bajo.

Es todo un acierto que el interior esté pintado de blanco, hace más luminosa la vivienda. El acabado en madera de algunos muebles, la encimera, y el suelo, crea un contraste muy elegante. Este hogar se ve confortable y espacioso, dan ganar de quedarse ahí a trabajar.

Adfer Dazne
Arquitecto español fundador de IS-ARQuitectura en 2006. Es autor de miles de artículos en los que se han analizado obras de numerosos profesionales de la arquitectura y el diseño.

DEJA UNA RESPUESTA

Los datos de carácter personal proporcionados en este formulario serán tratados por Fermín Gómez, como responsable de esta web. La finalidad es añadir dicho comentario al artículo. La legitimación es tu consentimiento. Destino: los datos facilitados quedan guardados en nuestro servidor, y no son compartidos con terceros. Derechos: Podrás ejercer tus derechos de acceso, rectificación, limitación, y suprimir los datos en info@IS-ARQuitectura.com, así como el derecho a presentar una reclamación ante una autoridad de control. Hay información adicional y detallada en nuestra Política de Privacidad.

Por favor ingrese su comentario!
Por favor ingrese su nombre aquí

He leído y acepto la política de privacidad de este blog. *

[Todos los comentarios son moderados, ten paciencia, el tuyo se publicará pronto!]