Casas de hormigón proyectado

0
331

Estas imágenes tienen que ver con unas estructuras habitables de hormigón proyectado. Se llaman Monolithic Cabin, y son una especie de casas monolíticas con forma de cúpula. Por su diseño y sistema constructivo, este modelo difiere bastante de la típica casa móvil de madera, tan habitual en esta sección de nuestro blog.

Monolithic Cabin

casas cupula Monolithic Cabin

Las estructuras Monolithic Cabin se construyen a partir de una losa de hormigón armado sobre la que se infla una estructura hinchable que hará de molde (airform). Luego se vierte una primera capa interior de espuma de poliuretano (de 7.5cms de espesor), que servirá de base para las armaduras de acero de la estructura (formando una malla). Este mallado se coloca encima de una segunda capa de aislante. El proceso se completa con una mezcla de hormigón, que se proyecta sobre la superficie interior de la cúpula.

Debido a su método constructivo, estas pequeñas casas se asemejan a ciertas construcciones inflables. Las que vemos en las fotos están hechas en Texas, para luego ser transportadas en camión al sitio del cliente. Son por tanto pequeñas estructuras prefabricadas que pueden utilizarse como vivienda, taller, oficina, sala de juegos, habitación para huéspedes, almacén.

proceso constructivo casas cupula de hormigon proyectado

Se puede elegir entre tres tamaños diferentes, según su longitud: 15, 18 ó 24 pies (4.65, 5.58, 7.44m). Pero a pesar de los formatos establecidos, el fabricante permite ciertas modificaciones para adaptarse a las exigencias del cliente. Lo único que se debe tener preparado en el terreno, es una base acondicionada y nivelada, con las infraestructuras de electricidad, alcantarillado y agua ya listas.

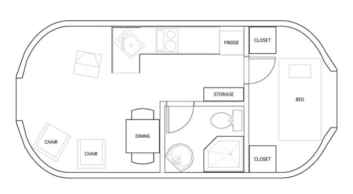
La planta y fotos del interior se corresponden a un modelo de 24 pies de longitud, y 24m2 de superficie útil. En su versión estándar se incluye el mobiliario, y cuesta unos $34.248 (27.809€).

exterior casa Monolithic Cabin

Hay más información sobre las casas cúpula Monolithic Cabin, en el sitio web del fabricante.

Adfer Dazne
Arquitecto español fundador de IS-ARQuitectura en 2006. Es autor de miles de artículos en los que se han analizado obras de numerosos profesionales de la arquitectura y el diseño.

DEJA UNA RESPUESTA

Los datos de carácter personal proporcionados en este formulario serán tratados por Fermín Gómez, como responsable de esta web. La finalidad es añadir dicho comentario al artículo. La legitimación es tu consentimiento. Destino: los datos facilitados quedan guardados en nuestro servidor, y no son compartidos con terceros. Derechos: Podrás ejercer tus derechos de acceso, rectificación, limitación, y suprimir los datos en info@IS-ARQuitectura.com, así como el derecho a presentar una reclamación ante una autoridad de control. Hay información adicional y detallada en nuestra Política de Privacidad.

Por favor ingrese su comentario!
Por favor ingrese su nombre aquí

He leído y acepto la política de privacidad de este blog. *

[Todos los comentarios son moderados, ten paciencia, el tuyo se publicará pronto!]