Casa mínima MIO, repleta de tecnología

0
195

En el fascinante universo de las casas pequeñas, donde la simplicidad y la innovación convergen, encontramos la casa MIO. Este modelo fue creado por Covo Tiny House Co, con sede en Oregón. Se erige como la vanguardia de la vida compacta y tecnológica, a partir de un precio de $60,000. Esta súper vivienda redefine el concepto de hogar pequeño al integrar dispositivos domésticos inteligentes.

casa minima MIO

Diseño inteligente para una vida pequeña y conectada

La casa MIO se presenta como una minicasa inteligente, ofreciendo un espacio compacto repleto de comodidades tecnológicas. Controlada con un smartphone, la iluminación, cerraduras de puertas, y el sistema de sonido Bluetooth proporcionan un ambiente funcional. La conectividad USB y el Amazon Echo complementan la experiencia, brindando un control completo sobre el entorno.

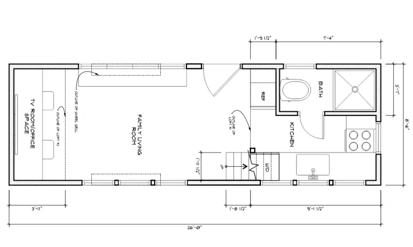
casa MIO por dentro

Además de las características tecnológicas, la casa MIO no escatima en lo esencial. Equipada con estufa, horno, ducha, sofá, climatización, y barra para comer, garantiza una vida cómoda en un espacio compacto. El interior cuenta con un diseño inteligente que incluye dos lofts. Uno de ellos para dormir y otro para almacenamiento, maximizando cada centímetro cuadrado.

La casa MIO también abraza la sostenibilidad con un casillero de almacenamiento exterior, lo suficientemente grande para equiparse con paneles solares. Esta opción permite a los propietarios vivir fuera de la red, contribuyendo a un enfoque más ecológico.

cocina casa diminuta MIO

La casa MIO de Covo Tiny House Co representa la armoniosa fusión entre la vida sencilla y la tecnología avanzada. Con un diseño inteligente y comodidades esenciales, esta minicasa promete una experiencia de vida única. Según exploramos las posibilidades de las casas diminutas modernas, MIO destaca como un faro de innovación y confort.

Datos Técnicos

  • Dimensiones: 7,92m de largo
  • Espacio habitable: 30,66m2
  • Precio inicial: $60,000

dormitorio en altillo

Puede haber información sobre la casa MIO: en la web de Covo Tiny House.

Adfer Dazne
Arquitecto español fundador de IS-ARQuitectura en 2006. Es autor de miles de artículos en los que se han analizado obras de numerosos profesionales de la arquitectura y el diseño.

DEJA UNA RESPUESTA

Los datos de carácter personal proporcionados en este formulario serán tratados por Fermín Gómez, como responsable de esta web. La finalidad es añadir dicho comentario al artículo. La legitimación es tu consentimiento. Destino: los datos facilitados quedan guardados en nuestro servidor, y no son compartidos con terceros. Derechos: Podrás ejercer tus derechos de acceso, rectificación, limitación, y suprimir los datos en info@IS-ARQuitectura.com, así como el derecho a presentar una reclamación ante una autoridad de control. Hay información adicional y detallada en nuestra Política de Privacidad.

Por favor ingrese su comentario!
Por favor ingrese su nombre aquí

He leído y acepto la política de privacidad de este blog. *

[Todos los comentarios son moderados, ten paciencia, el tuyo se publicará pronto!]