Cuando la casa también es sala de exposición

0
262

Generalmente las pequeñas viviendas sobre ruedas que hemos visto están pensadas para gente que se conforma con espacios reducidos. Pero ¿cómo tendría que ser esa casa si fuera para un artista? Teniendo en cuenta la movilidad de la mayoría de casas mínimas, habría que plantear el proyecto como un estudio ambulante.

Este artículo muestra una colección de planos y renders de una interesante propuesta que resuelve ese problema.

Estudio ambulante para artistas

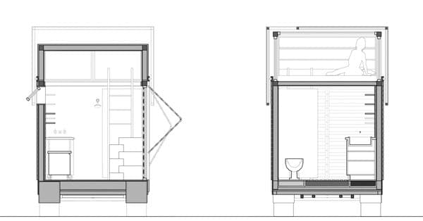
El estudio ambulante en cuestión estaría construido sobre un remolque, de esa manera obtendríamos la movilidad. En este caso se ha utilizado uno de doble eje de ruedas, con dimensiones apropiadas para desplazarse por cualquier carretera.

Es importante señalar que esta casa móvil cuenta con todo lo que se necesita para vivir. Su espacio interior está ajustado de la misma manera a como estamos acostumbrados a ver en cualquier otra casa diminuta. Además de los espacios esenciales (sala, baño, cocina), dispone del típico altillo para dormir.

Según se aprecia en las ilustraciones, su estructura está prevista con perfiles metálicos (steel frame).

Pero el aspecto más interesante de esta tiny house está relacionado con la profesión de su ocupante. En cierta medida, estamos también ante una casa expandible. Una vez se ha llegado a destino, puede abrirse al paisaje, e incluso funcionar como una mini-exposición ambulante. Por eso este estudio ambulante puede llegar a ser tan atractivo, y por las posibilidades que ofrece su ‘fachada activa’. Tiene paneles plegables exteriores, abatibles o deslizantes. Un tablero deslizante está en la parte inferior, que funciona de plataforma exterior. Hay otro arriba, junto al altillo, que gracias a un panel abatible ayuda a crear más espacio. Estos elementos pueden proporcionar sombra, o una superficie extra de exhibición.

Las imágenes renderizadas y planos de este estudio ambulante son obra de Jennifer Pecenka, quien tuvo la brillante idea.

Adfer Dazne
Arquitecto español fundador de IS-ARQuitectura en 2006. Es autor de miles de artículos en los que se han analizado obras de numerosos profesionales de la arquitectura y el diseño.

DEJA UNA RESPUESTA

Los datos de carácter personal proporcionados en este formulario serán tratados por Fermín Gómez, como responsable de esta web. La finalidad es añadir dicho comentario al artículo. La legitimación es tu consentimiento. Destino: los datos facilitados quedan guardados en nuestro servidor, y no son compartidos con terceros. Derechos: Podrás ejercer tus derechos de acceso, rectificación, limitación, y suprimir los datos en info@IS-ARQuitectura.com, así como el derecho a presentar una reclamación ante una autoridad de control. Hay información adicional y detallada en nuestra Política de Privacidad.

Por favor ingrese su comentario!
Por favor ingrese su nombre aquí

He leído y acepto la política de privacidad de este blog. *

[Todos los comentarios son moderados, ten paciencia, el tuyo se publicará pronto!]