Traveler: casa móvil con dos altillos

0
273

ESCAPE es una compañía que desde los años 1990 lleva construyendo casas que han sido elogiadas en todo el mundo. Sus cabañas situadas en Canoe Bay están consideradas por muchos como las mejores de Norte América. Pero también se atrevieron con modelos más reducidos, como la casa móvil Traveler. Este diseño de tiny house hace que sea realmente fácil irse de viaje, pero con todas las comodidades de un hogar compacto.

casa móvil Traveler remolcada

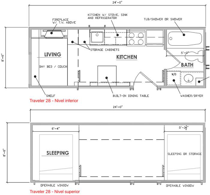
Este fabricante sigue manteniendo el compromiso con la sostenibilidad en todo lo que hace. Por eso la pequeña casa prefabricada cuenta con un diseño que la hace funcionar de una manera muy eficiente. Además tiene el aliciente de estar hecha a mano, utilizando materiales reciclados. Su volumen se completa con una cubierta inclinada, dispuesta de tal manera que permite la ubicación de un par de altillos para dormir, uno a cada extremo. Esta organización casi obliga que la entrada esté ubicada en un lateral. El espacio central está ocupado por la cocina-comedor; mientras que el cuarto de baño se sitúa a un lado, y la zona con el sofá y la tele en el opuesto.

casa móvil Traveler altillo

Viendo las fotos y planos de planta, uno entiende a la primera que la casa móvil Traveler ofrezca a sus propietarios bastante más que muchas de las casas móviles de otros constructores, pues a pesar de tratarse de espacios de reducido tamaño, su equipamiento sigue siendo casi el de una casa normal.

Versiones de la casa móvil Traveler

Hay una versión original llamada Traveler 28, que tiene una longitud de 7,32 metros, y una anchura de 2,59 m. En total, la superficie útil alcanza los 25m2, de los cuales 9,27m2 están en los altillos. Por eso es capaz de ofrecer alojamiento a seis personas, pues el sofá de la sala se puede convertir en una cama.

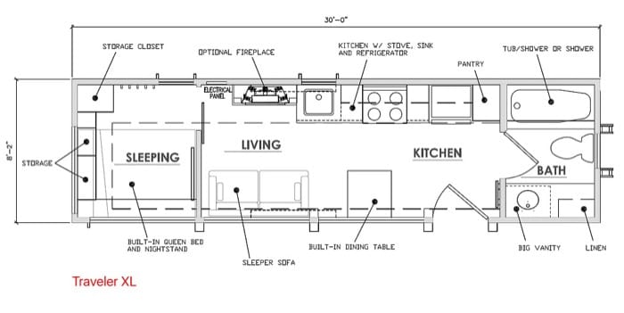
También hay una versión más completa de casa sobre remolque, denominada Traveler XL, de 9,14 m de largo por 2,59 m de ancho. Esta casita prefabricada alcanza una superficie útil de 31,96m2.

La versión XL tiene las mismas características de la anterior, pero se le ha añadido un dormitorio con cama grande. Esta edición limitada viene equipada con todos los muebles, y muchos electrodomésticos. Se incluye la lavadora/secadora, televisor con Blu Ray, chimenea, y bomba de calor.

casa móvil Traveler interior

Especificaciones de casitas prefabricadas Traverler

A continuación, un resumen de todas las características de esta bonita casa móvil:

  • El exterior está revestido con madera de cedro, además de tener ciertos elementos de acero y paneles de protección.
  • El acabado interior está realizado con tablones de Dakota Planking. Están hechos al 100% con material reciclado y cuenta con certificación ecológica; pero también existe la opción de paneles de yeso pintados, de pino, o de cedro.
  • El suelo es de vinilo, y la puerta del baño de madera de arce, roble, e incluso de vidrio esmerilado.
  • La casa móvil Traveler está aislada con una espuma fabricada a partir de productos reciclados (R22 en paredes, R30 en el piso, y R40 en el techo).
  • Dispone de ventanas de baja emisividad térmica.
  • La calefacción se realiza por un calentador de zócalo con termostato (baseboard heater). Pero opcionalmente se puede instalar una bomba de calor (split) de la marca LG.
  • Hay múltiples armarios para usar como almacenamiento, de diferentes tamaños y formatos. Todos ellos fabricados con madera de roble (opcional: arce y cerezo); esta pequeña casa también dispone de varias estanterías de aluminio.

Hay más información de casa móvil Traveler en el sitio web Oficial.

Adfer Dazne
Arquitecto español fundador de IS-ARQuitectura en 2006. Es autor de miles de artículos en los que se han analizado obras de numerosos profesionales de la arquitectura y el diseño.

DEJA UNA RESPUESTA

Los datos de carácter personal proporcionados en este formulario serán tratados por Fermín Gómez, como responsable de esta web. La finalidad es añadir dicho comentario al artículo. La legitimación es tu consentimiento. Destino: los datos facilitados quedan guardados en nuestro servidor, y no son compartidos con terceros. Derechos: Podrás ejercer tus derechos de acceso, rectificación, limitación, y suprimir los datos en info@IS-ARQuitectura.com, así como el derecho a presentar una reclamación ante una autoridad de control. Hay información adicional y detallada en nuestra Política de Privacidad.

Por favor ingrese su comentario!
Por favor ingrese su nombre aquí

He leído y acepto la política de privacidad de este blog. *

[Todos los comentarios son moderados, ten paciencia, el tuyo se publicará pronto!]