Residencia Yerger: vivienda con programa de lujo

0
250

La Residencia Yerger es una vivienda que está situada en Phoenix (Arizona, EE.UU.). Tiene una superficie de 361m2 y un diseño que aprovecha las hermosas vistas hacia las colinas de Camelback. Por este motivo todas sus habitaciones principales disfrutan de una magnífica panorámica. Pero este proyecto también es una vivienda unifamiliar en ladera, resuelta además con un programa de lujo.

Residencia Yerger con programa de lujo

El programa de lujo de la Residencia Yerger

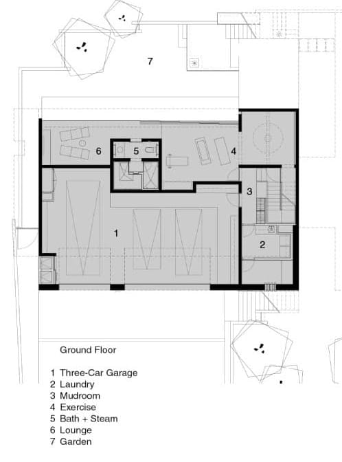
La vivienda Yerger tiene la distribución de una vivienda de lujo de dos plantas. Bien es cierto que la planta inferior está prácticamente destinada a un amplio garaje, con capacidad para tres vehículos. En ese nivel también hay un lavadero, y una sala de gimnasio (con sauna) que se abre al jardín trasero.

En la planta superior nos encontramos con un gran salón. Ahí se incluye la cocina y el comedor, siendo zona de paso a dos dormitorios. La distribución está muy bien fragmentada, colocando un baño dentro de una de estas habitaciones. Casi todo este volumen compone la fachada principal, que está completamente acristalada, y presidida por una amplia terraza.

Pero la estructura de esta vivienda está ‘partida’ por el eje de entrada desde la calle. Según accedemos, a la izquierda encontramos el volumen que contiene todo el programa antes descrito; a la derecha hay otro más pequeño, destinado para el dormitorio principal. Es una suite con un espectacular cuarto de baño, vestuario, y sala de estudio.

Residencia Yerger con lamina de agua

Residencia Yerger cocina y terraza

La importancia de los materiales y el agua

Esta vivienda es también un proyecto que exhibe una gran variedad de materiales. Los principales fueron el hormigón visto, el acero corten y el vidrio. Pero también aparecen unos muros realizados con un formato grande de ladrillo gris, en la zona del dormitorio principal.

La lámina de agua que marca la entrada de la vivienda, es simplemente un anticipo de la piscina que se sitúa al fondo del eje de acceso. Además sirve para separar aún más el área del dormitorio principal del resto de habitaciones. Unas velas estratégicamente colocadas aportan una agradable sombra al patio trasero.

Residencia Yerger - cuarto baño suite

piscina y patio trasero Residencia Yerger

La residencia Yerger es un proyecto de Chen + Suchart Studio LLC. Fotos de Bill Timmerman.

Reseña
Fachada
8.6
Organización
9.0
Diseño interior
8.8
Sostenibilidad
3.5
Calidad de ejecución
9.3
Adfer Dazne
Arquitecto español fundador de IS-ARQuitectura en 2006. Es autor de miles de artículos en los que se han analizado obras de numerosos profesionales de la arquitectura y el diseño.
residencia-yerger-con-programa-de-lujoLa Residencia Yerger destaca principalmente por su fachada, y por su adaptación a la pendiente del terreno. El programa de lujo se ha organizado con mucha lógica y pragmatismo. Los materiales (incluido el agua) se emplearon a conciencia, y proporcionaron un hogar con una decoración elegante y moderna. Por las fotos y planos de planta, el edificio parece tener un buen comportamiento solar pasivo. Lo peor: Los muros de ladrillo gris resultaron ser el punto más negativo de todo el proyecto. Ante la potencia estética del hormigón visto y el acero corten, la zona de la suite parece pertenecer a otro tipo de vivienda, más humilde. Además, la aparición de un espacio residual en forma de patio triangular, aporta un exceso de dramatismo al proyecto. Esta vivienda con programa de lujo no se merecía eso. Se echaron en falta estrategias sostenibles.

DEJA UNA RESPUESTA

Los datos de carácter personal proporcionados en este formulario serán tratados por Fermín Gómez, como responsable de esta web. La finalidad es añadir dicho comentario al artículo. La legitimación es tu consentimiento. Destino: los datos facilitados quedan guardados en nuestro servidor, y no son compartidos con terceros. Derechos: Podrás ejercer tus derechos de acceso, rectificación, limitación, y suprimir los datos en info@IS-ARQuitectura.com, así como el derecho a presentar una reclamación ante una autoridad de control. Hay información adicional y detallada en nuestra Política de Privacidad.

Por favor ingrese su comentario!
Por favor ingrese su nombre aquí

He leído y acepto la política de privacidad de este blog. *

[Todos los comentarios son moderados, ten paciencia, el tuyo se publicará pronto!]